
|
今天給大家分享一套兩層簡歐別墅。
建筑信息如下 建筑面積:236.6㎡ 基地面積:164.7㎡ 建筑尺寸:13m×8.7m 占地面積:117.5㎡ 戶型概況:4室3廳2衛1廚1衣帽1書房 建筑結構:磚混結構
建筑整體為簡歐風格,外墻采用暗灰色真石漆,一層底部貼了一米高的文化磚,頂部是黑色坡頂,貼了瓦礫裝飾。
建筑以屋頂的人字形尖頂為中軸線,相連的墻體作了三十公分的外凸,打破單調感,勾勒出墻面的立體性。
入戶位置設立在正面左側,之間有一段拱門形的回廊,入戶門設立在回廊里。這也是今天這處設計的最大亮點。
背面造型相對簡單,沒有浮華的設計。
下面來看下平面設計圖:
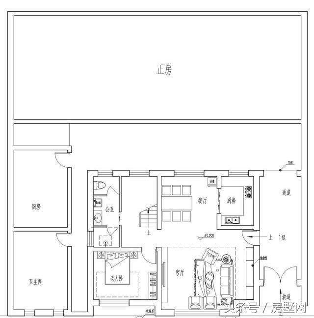
一層平面圖。一層入戶門在東側中間位置,整個空間相對較為獨立。
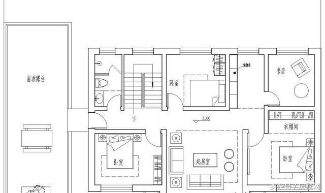
二層平面圖。二層主要用作起居空間,書房位于東北角,三間臥室公用一間衛生間。南側客廳上方設計為起居室,使得二層擁有一個公共區域。西側過道直通屋頂露臺。 圖紙之家-專注農村別墅/自建房設計18年,集合國內200余位經驗豐富的設計師,被評為口碑最好的農村建筑設計公司! |

帶車位的鄉村二層別墅建筑結構設計圖,全套施工圖140平
占地:139.85平方米
50萬以內的歐式三層房屋別墅施工設計圖紙及效果圖
占地:169平方米
120平米二層別墅樓設計圖,簡約省錢也能建的漂亮
占地:121.74平方米
2026新款戶型三層新農村別墅房屋設計圖紙,外觀對稱
占地:160平方米
新農村三層小別墅設計圖紙,占地160平左右,好看不貴
占地:160平方米
兄弟合建中式一層四合院設計圖,古樸雅致代代相傳,永不過時
占地:468.03平方米
帶車庫二層別墅設計圖及效果圖,帶車庫的農村二層樓房推薦
占地:123平方米
小戶型徽派建筑別墅設計方案大全,三層別墅設計圖推薦
占地:95平方米
新中式三層雙拼別墅設計圖,外觀圖片美觀、大氣
占地:176平方米
新款鄉村二層半別墅設計圖紙帶效果圖,三層別墅外觀圖片大全
占地:108.795平方米
125平方米新農村二層房屋施工設計CAD圖紙加效果圖
占地:125平方米
11x13米兩層半現代風別墅設計圖,??看過的都后悔建早了!
占地:126.02平方米
高端大氣三層別墅設計圖,建好就是村里最靚的
占地:120平方米
農村宅基地建房二層別墅設計圖,適合回鄉自建!
占地:137.5平方米
230平(單戶115平)雙拼別墅房屋設計圖及效果圖大全
占地:230平方米
50萬左右農村豪華二層別墅設計圖 ,大廳中空,外觀精美
占地:210平方米
10套農村經典二層樓房設計圖紙,多戶型,多尺寸,總有一款適合
占地:多種
新農村兩層半小洋樓房設計圖,預算33萬左右
占地:多種戶型
140平方米新農村三層房屋設計圖,磚混結構帶地下室
占地:138平方米左右
12米×10米左右一層別墅平房戶型圖及設計圖,造價低
占地:110平方米
推薦:10套新農村自建房設計圖,2026年最新設計
閱讀次數:4825737次
100套鄉村別墅圖片大全,2026年最新設計
閱讀次數:2492203次
6款農村蓋一層平房的設計圖,10萬元就能建起來
閱讀次數:1852637次
這11個一層農村自建房別墅火爆了朋友圈!我最喜歡戶型十!你呢
閱讀次數:750268次
農村6萬元建一層小別墅圖,你敢相信嗎
閱讀次數:567686次
農村5萬塊就能自建房,6套普通房子設計圖分享,你沒看錯!
閱讀次數:419410次
8套農村漂亮三間平房圖片,非常適合在農村修建!
閱讀次數:411197次
農村自建房化糞池怎么做?附方案及施工過程
閱讀次數:391783次
農村一層三間平房設計圖,告別土氣養老房,讓人忍不住點贊
閱讀次數:350581次
新農村二層樓房圖片造價12萬,挑一套回家建房吧!
閱讀次數:349126次
