
|
農村現在蓋房,隨著審美觀念的提高,更多人希望自己的房子能夠獨樹一幟,不像傳統的清一色的歐式,更多的是希望極具現代感的房子,中秋佳節馬上到了,正好可以和家人商量蓋房的戶型,下面推薦3款現代別墅。 第一款 年輕人的農村住宅,蓋完絕對全村第一棟!
清雅素凈的外觀立面造型,線條感充足,一線一轉角都能找到呼應的細節。立體感非常墻,室內也盡量是素雅的裝修風格,通透明澈。 平面圖
現代風格的戶型就沒有歐式那么多的建筑元素,什么旋轉樓梯、羅馬柱不存在的。
更簡單直白,一目了然的彰顯出業主想要表達的生活態度。
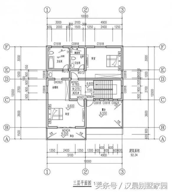
這一款面積稍微大點,露臺和陽臺比較多,到處點綴有燈光。
平面圖 雙車庫設計半開放式, 廚房和衛生間的開門設計比較獨特。客人房和獨立的衛生間的門在外面,起夜不方便。
戶外茶室還是蠻喜歡的,室內外也形成了高度差。
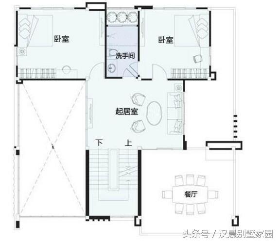
起居室的面積超大,有一個套間帶有獨衛,同時有陽臺和露臺方便休息娛樂。
第三款的戶型差不多,但是外觀造型卻大不相同。
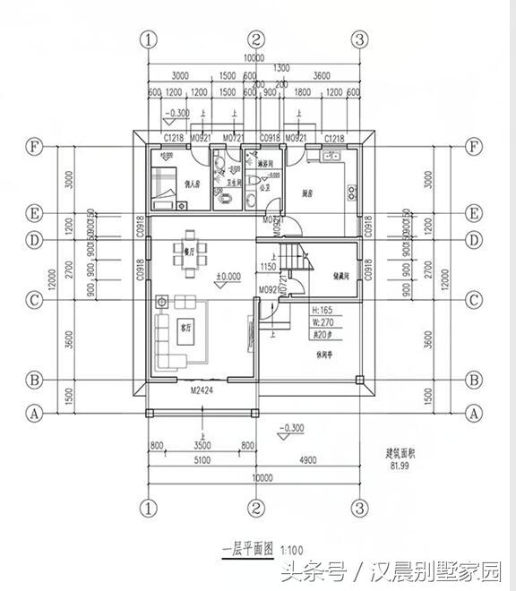
對比上面的戶型圖,效果感覺是鏡像作用,樓梯間有儲藏室,不浪費面積。
二層有一個戶外餐廳,平時喜歡在這里用餐,風景優美。也可以作為棋牌室,茶室等。
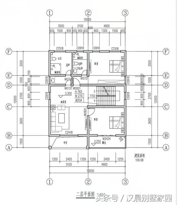
二層三間臥室,一個套間帶有衣帽間和衛生間,兩間次臥共一個衛生間,提高利用率。 圖紙之家-專注農村別墅/自建房設計18年,集合國內200余位經驗豐富的設計師,被評為口碑最好的農村建筑設計公司! |

農村最漂亮二層歐式別墅設計圖,面寬16.5米(含車庫)
占地:180.366
自建一層農村別墅圖,經濟實用新選擇,建房必備參考戶型!
占地:142.88平方米
80-90平米二層經典小別墅房屋設計圖,左右對稱外觀
占地:88.46平方米
150平方米二層別墅設計及效果圖展示下載,17X10米
占地:150平方米
挑空客廳戶型歐式二層別墅設計圖紙,高端大氣帶車庫
占地:236.09平方米
大氣農村三層歐式雙拼別墅全套施工圖紙,帶堂屋設計,外觀圖片
占地:196.056平方米
自建小樓二層農村別墅設計圖,大氣好看,13米乘14米
占地:181.62
三層帶車庫農村別墅設計圖紙(含外觀效果圖)
占地:147.7平方米
農村三層復式自建樓房設計圖,外觀圖大氣
占地:130平方米
農村二層半雙拼別墅設計圖,客廳中空,帶大露臺
占地:270平方米
30萬農村小別墅設計圖片,30萬別墅設計戶型推薦
占地:130平方米
面寬9米的三層農村自建房設計圖,適合鄉下地區自建
占地:121.94平方米
小戶型三層別墅設計圖,戶型經典,外觀精致、美觀
占地:95平方米
農村二層半樓房效果圖及全套設計圖紙,自建房簡單實用
占地:121平方米
140平方米一層歐式新農村平房設計圖,主體造價僅11萬
占地:141.218平方米
130平左右三層樓房設計圖,新農村住宅自建推薦
占地:128平方米
兩層半20多萬復式農村自建房設計圖,經典不過時戶型
占地:120平方米
新款漂亮農村三層別墅建筑設計圖紙帶效果圖片,3種戶型
占地:125平方米
農村二層四合院設計圖,秒殺各種洋別墅
占地:220平方米
農村三層自建房子圖紙設計方案,開間11米左右
占地:151.96平方米
推薦:10套新農村自建房設計圖,2026年最新設計
閱讀次數:4825737次
100套鄉村別墅圖片大全,2026年最新設計
閱讀次數:2492203次
6款農村蓋一層平房的設計圖,10萬元就能建起來
閱讀次數:1852637次
這11個一層農村自建房別墅火爆了朋友圈!我最喜歡戶型十!你呢
閱讀次數:750268次
農村6萬元建一層小別墅圖,你敢相信嗎
閱讀次數:567686次
農村5萬塊就能自建房,6套普通房子設計圖分享,你沒看錯!
閱讀次數:419410次
8套農村漂亮三間平房圖片,非常適合在農村修建!
閱讀次數:411197次
農村自建房化糞池怎么做?附方案及施工過程
閱讀次數:391783次
農村一層三間平房設計圖,告別土氣養老房,讓人忍不住點贊
閱讀次數:350581次
新農村二層樓房圖片造價12萬,挑一套回家建房吧!
閱讀次數:349126次
