
|
在農村,選擇蓋四層樓房的通常是大家庭,由于家里人口數量多,需蓋四層才能滿足居住需求,也有的為了后代考慮而加高樓層。對于想要建造四層樓的朋友,今天小編在此分享2款四層帶挑空客廳大氣農村別墅施工圖,1造價40萬,2造價75萬!來看看哪一款更適合您家! 【戶型1】
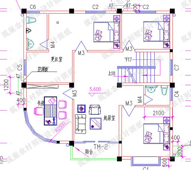
戶型1 本戶型共有 四層, 框架結構,開間11.55米,進深11.975米,占地面積 121平方米,建筑面積:390平方米,建筑高度11.6米,主體造價: 40萬 本戶型外觀設計十分大氣,利用弧線柔化棱角,給人的視覺感受不至于那么死板強硬,且采永弧形大窗戶裝飾,采光通風,還有凸窗設計,窗戶的花樣多,為外立面增加立體感。屋頂有觀景涼亭和大露臺,提供休閑場所。 設計功能 一 層: 廚房、餐廳、挑空客廳、公衛、臥室 二 層: 2臥室、公衛、起居室 三 層: 起居室(帶陽臺)、臥室(帶衛生間、更衣室)、2次臥、書房、公衛 三層:大露臺、活動廳 平面圖展示:
一層平面圖
二層平面圖
三層平面圖
四層平面圖 【戶型2】
層數: 四層 結構形式: 框架結構 主體造價: 75萬 開間:17.2米 進深: 13.2米 占地面積: 206平方米 建筑面積: 745.4平方米 戶型2在外觀設計上相對1復雜一些,立面感也更豐富,有超大落地窗,還有多個陽臺設計,室內擁有多個臥室套間,四樓有健身房,屋頂的大露臺可以做空中花園,晨起聞花香,夜晚吹晚風,好不愜意! 功能設計 一 層: 套房(附衛生間)、門廊、過廳、客廳、飯廳、廚房、雜物房 二 層: 套房(附衛生間、陽臺)、套房(附衛生間)、休閑廳、陽臺 三 層: 套房(附衛生間、陽臺)、套房(附衣帽間、衛生間、陽臺)、套房(附衛生間)、休閑廳、陽臺 四 層: 種植草屋面、神廳、2露臺、門廊、健身室 平面圖展示
一層平面圖
二層平面圖
三層平面圖
四層平面圖
圖紙之家-專注農村別墅/自建房設計18年,集合國內200余位經驗豐富的設計師,被評為口碑最好的農村建筑設計公司! |

農村三層帶電梯小別墅設計施工圖,120平方米左右12.2x10.8米
占地:123平方米
一層平屋頂自建房圖,簡單而舒適,既省錢不說還不愁沒地曬糧食
占地:106平方米
適合小面寬宅基地的兩開間別墅設計圖,8.5米乘13.5米
占地:107.66平方米
帶配房的農村三層別墅設計圖,全家享精致生活
占地:167.29平方米
帶車庫現代三層樓房設計圖,外觀效果圖時尚、美觀
占地:160平方米
14米乘10米農村二層別墅新款,外觀對稱設計,經久耐看!
占地:140平方米
三層小別墅40萬造價,大氣農村三層新中式自建房設計圖紙
占地:171.656平方米
120平方米農村經典二層房屋設計圖紙,造型精致好看
占地:121平方米
徽派自建房一層設計圖,七字型設計,獨立餐廚便捷實用
占地:171.65平方米
二層帶車庫歐式尊貴別墅圖,客廳中空,美觀,大氣,實用
占地:300平方米
大氣農村一層自建別墅方案,絕對讓人羨慕的“平房”
占地:158.39平方米
農村一層小別墅設計圖,經濟大氣,16米乘9米
占地:124.12平方米
簡單漂亮實用的三層自建房設計圖,帶露臺,占地170平方米
占地:170平方米
三間二層最好看別墅設計圖,簡單實用美到爆炸,農村建房新潮流
占地:121.51平方米
豪華別墅設計圖紙(含效果圖),三層歐式別墅方案精選
占地:117平方米
精致小巧新農村二層別墅設計圖紙,占地90平米左右,造價15萬左
占地:90平方米
120平方米新農村四層別墅設計圖紙12X10米50萬以內
占地:120平方米
開間20米雙拼別墅三層設計圖,兄弟合建省時省力又省心
占地:205.8平方米
農村建房兄弟雙拼兩層住宅設計圖,單戶150平米左右
占地:300平方米
農村自建房別再做傳統客廳!“客廳+茶室”一體設計,寬敞明亮
占地:143.73平方米
推薦:10套新農村自建房設計圖,2026年最新設計
閱讀次數:4825737次
100套鄉村別墅圖片大全,2026年最新設計
閱讀次數:2492203次
6款農村蓋一層平房的設計圖,10萬元就能建起來
閱讀次數:1852637次
這11個一層農村自建房別墅火爆了朋友圈!我最喜歡戶型十!你呢
閱讀次數:750268次
農村6萬元建一層小別墅圖,你敢相信嗎
閱讀次數:567686次
農村5萬塊就能自建房,6套普通房子設計圖分享,你沒看錯!
閱讀次數:419410次
8套農村漂亮三間平房圖片,非常適合在農村修建!
閱讀次數:411197次
農村自建房化糞池怎么做?附方案及施工過程
閱讀次數:391783次
農村一層三間平房設計圖,告別土氣養老房,讓人忍不住點贊
閱讀次數:350581次
新農村二層樓房圖片造價12萬,挑一套回家建房吧!
閱讀次數:349126次
