項目名稱:福建三層簡歐別墅
項目地點:福建省
建筑面積:409.72㎡
建筑尺寸:18.94m×12.84m
占地面積:163.14㎡
圖紙編號:579
戶型概況:5室3廳4衛1廚1書房1車庫
建筑結構:框架結構
設計機構:軒鼎建筑
土建參考造價:61萬元(不包含室內裝修費用)
圖紙設計
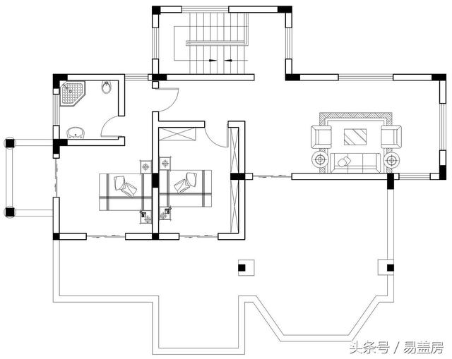
△一層平面圖
平面以大開間為主,整體空間通透開闊。入戶玄關讓客廳得到一定遮擋,客廳與餐廳、廚房相鄰,通過U型樓梯接入二層空間。客廳采用通高設計,八角窗與豎向延伸使得室內大氣感頓生。西南側主臥配有獨立衛生間,較大面積與雙向采光讓室內擁有更好居住環境。
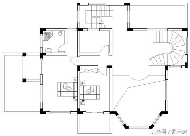
△二層平面圖
二層主要是起居空間,整層空間與一層相對開敞的空間相比,私密性更強。臥室占據南側,擁有較好采光面。主臥與一層配置相同,西側露臺讓主臥具有更多可能性。書房與樓梯間相鄰,中間空白部分作為交通轉換,讓業主在使用上更加舒適。
△三層平面圖
三層起居室與整層大露臺相通,不規則的露臺流線配合建筑外觀形成極具個性和亮點的視覺感。室外活動區域增多讓建筑具有多樣觀景角度,室內兩間臥室與二層一致,其余空間作為緩沖和家庭廳使用。
造型設計
△西南側效果圖
建筑整體為歐式風格,顏色選擇極為經典的配色,暖色系配合立面華麗裝飾渲染出優雅和大氣。門頭占據兩層高度,拱形頂與兩側通高拱形窗豎向拉伸主體,使得西側露臺與整體更加協調。
露臺護欄以及貫通圓柱配合屋頂形成豐富立面。主體屋頂層次較多,空間上的突出和退讓配合室內布局讓三層位置得到升華。







































