
|
過去人們建房或許只是為了居住,而現在人們建房出了居住之外,更重要的是能滿足精神上的享受,在外面工作學習累了,回到家能感到舒適溫馨,可以讓人忘卻煩惱,所以現在農村也越來越盛行建筑別墅,今天小編精選一款30萬內9×12米9臥帶屋頂花園+老人房農村三層別墅施工圖,分享給大家。 圖紙詳情 層數: 三層 結構形式: 框架結構 主體造價: 28萬 開間: 8.55米 進深: 11.6米 占地面積: 123.2平方米 建筑面積: 282.35平方米
這款設計圖給人印象最深刻的,就是二三層的拱形聯體通窗玻璃,時尚大氣,同時還增加了室內的采光效果。外墻采用暗紅色和淺黃色裝飾,色彩明暗對比強烈,屋頂使用比較鮮艷的橙色裝飾,色調優雅大氣。室內布局從現代人的生活習慣來合理設計,二樓設有多個臥室套房,十分舒適。 設計功能
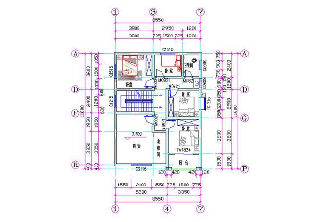
一層平面圖 一 層: 客廳、餐廳、廚房、老人房、衛生間
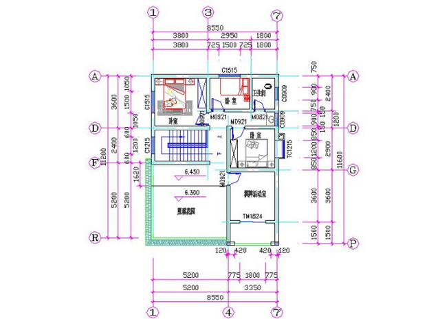
二層平面圖 二 層: 臥室(帶衣帽間)、臥室(帶陽臺)、臥室×3、公衛
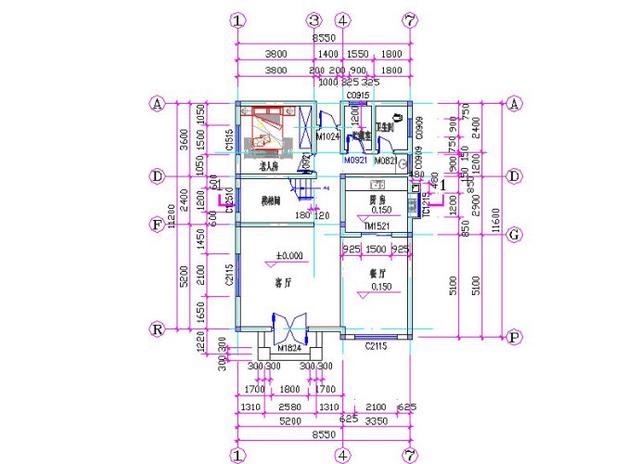
三層平面圖 三 層: 臥室×3、屋頂花園、棋牌活動室、公衛 圖紙之家-專注農村別墅/自建房設計18年,集合國內200余位經驗豐富的設計師,被評為口碑最好的農村建筑設計公司! |

小型中式一層三合院別墅設計圖,小宅基地照樣建合院
占地:119.73平方米
農村自建三層別墅設計圖,開間17米進深13米,外觀對稱設計
占地:187.6平方米
大面寬一層別墅設計圖紙,新中式風格兩款戶型
占地:多戶型可選
150平米左右農村二層房屋設計圖,造價25萬左右漂亮實用
占地:150平方米
180平高端歐式三層別墅圖紙設計,大戶型復式客廳
占地:182.016
南方北方新農村房屋設計圖紙(含效果圖),三層住宅設計圖紙
占地:164平方米
現代田園風格一層農村別墅設計圖效果圖,帶閣樓設計
占地:220平方米
農村房子設計圖三層獨棟別墅方案,占地130平方米
占地:130平方米
帶配房的農村三層別墅設計圖,全家享精致生活
占地:167.29平方米
經典三層農村房屋設計圖紙,占地100平米左右,外觀典雅精致,內
占地:100平方米
12.8乘10米一層平房別墅設計圖,四室二廳南北通透
占地:128.85平方米
三層小別墅40萬造價,大氣農村三層新中式自建房設計圖紙
占地:171.656平方米
西班牙風格農村二層樓房設計圖及效果圖,實用美觀
占地:170平方米
農村10萬元一層小別墅設計圖,農村一層自建房屋設計圖
占地:多種戶型
帶地下室三層別墅設計圖紙(含外觀效果圖),別墅設計方案
占地:134平方米
占地200平米時尚現代三層農村別墅設計圖,簡簡單單百看不厭
占地:202.95平方米
120平方米農村四層別墅施工設計圖紙及效果圖
占地:120平方米
最實用中式一層三合院別墅設計圖,簡約精致布局實用
占地:162.49平方米
230平米歐式帶地下室三層自建別墅設計施工圖紙及效果圖
占地:230平米
20萬左右農村雙拼別墅住宅設計圖,簡單小戶型設計
占地:120平方米
推薦:10套新農村自建房設計圖,2026年最新設計
閱讀次數:4825737次
100套鄉村別墅圖片大全,2026年最新設計
閱讀次數:2492203次
6款農村蓋一層平房的設計圖,10萬元就能建起來
閱讀次數:1852637次
這11個一層農村自建房別墅火爆了朋友圈!我最喜歡戶型十!你呢
閱讀次數:750268次
農村6萬元建一層小別墅圖,你敢相信嗎
閱讀次數:567686次
農村5萬塊就能自建房,6套普通房子設計圖分享,你沒看錯!
閱讀次數:419410次
8套農村漂亮三間平房圖片,非常適合在農村修建!
閱讀次數:411197次
農村自建房化糞池怎么做?附方案及施工過程
閱讀次數:391783次
農村一層三間平房設計圖,告別土氣養老房,讓人忍不住點贊
閱讀次數:350581次
新農村二層樓房圖片造價12萬,挑一套回家建房吧!
閱讀次數:349126次
