
|
隨著農村生活水平的提高,人們對房屋住宅標準化更高,互聯網的普及,現如今的農村自建房,款式多樣化,為了能夠擁有一棟漂亮而且居住舒適的高的房子,不管有錢還是沒錢的,建房者們都會請來設計師幫忙規劃自建房或者上網查找符合自家需求的房屋設計圖,畢竟建房子在農村人來說是人生中的一件大事,馬虎不得,因此花點錢在設計費上還是很有必要的。 今天小編就分享一款有客戶反饋回來的建房案例實景圖,建出的效果是極好的。 實景圖:
客戶采用淺粉色裝飾外墻,溫暖的色調,營造一個溫馨舒適的家。有飄窗、落地窗、半封閉陽臺等時尚功能結合設計,從別墅外觀上看,非常漂亮時尚。客戶把左邊的陽光房改為了露臺,方便晾曬。 效果圖:
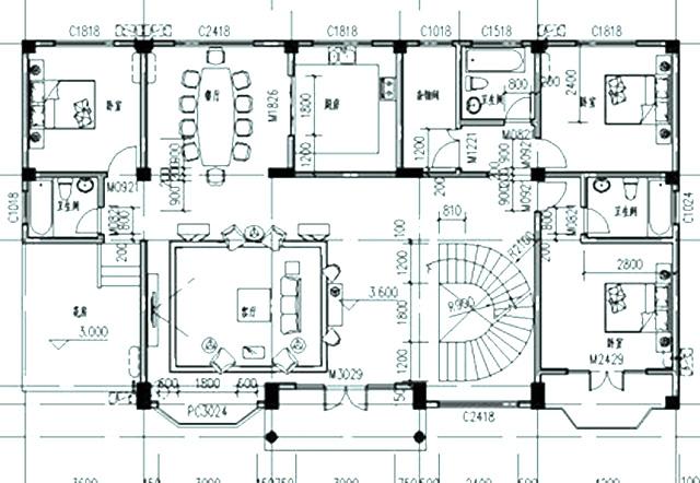
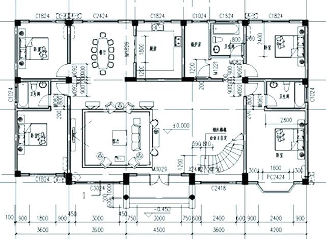
效果圖外觀采用黃色為主色調,左邊為陽光花房設計,其余的與客戶實景圖相差無幾。 房屋介紹 層數: 二層 結構形式: 框架結構 主體造價: 35-40萬 開間: 20米 進深: 11.2米 占地面積: 227.66平方米 建筑面積: 452.66平方米 平面布局圖:
一層平面圖 —層:客廳、餐廳、廚房、臥室4間、衛生間3個、鍋爐房;
二層平面圖 二層:臥室3間、衛生間3個、客廳、廚房、餐廳、花房、雜物房;
圖紙之家-專注農村別墅/自建房設計18年,集合國內200余位經驗豐富的設計師,被評為口碑最好的農村建筑設計公司! |

六開間三層農村自建別墅設計圖,盡享豪華舒適生活
占地:341.91平方米
現代二層樓房圖片造價25萬,含全套設計圖,風格獨特
占地:多戶型可選
17X12米三層雙拼別墅自建房設計圖,歐式風格,戶型方正
占地:190平方米
150平米農村兩層樓房設計圖,簡單大氣時尚
占地:150平方米
帶地下室三層豪華大氣新農村房屋設計圖,占地150平米左右
占地:150平方米
五十萬二層半鄉村別墅,客廳挑空設計,占地200平米左右
占地:200平方米
鄉村三層別墅施工圖紙帶效果圖,田園別墅設計圖紙推薦
占地:178平方米
簡約偏現代三層別墅設計圖紙及效果圖,鄉村蓋房推薦方案
占地:130平方米左右
復式別墅農村四層霸氣豪宅設計圖紙,建好你就是村里第一
占地:136.356平方米
80平方米農村四層房屋設計圖紙及效果圖
占地:80平方米
農村超級好看的現代風格兩層小樓圖,清新優雅
占地:多種戶型
新農村中式三層四合院別墅設計戶型圖,農村自建四合院效果圖
占地:多種戶型
三層獨棟帶露臺房屋設計圖,含外觀圖片大全
占地:110平方米
12x13米豪華三層農村別墅設計圖,宅基地上的貴族人生
占地:156平方米
新農村三層小別墅設計圖紙,占地160平左右,好看不貴
占地:160平方米
110平方米二層自建小別墅設計CAD施工圖紙帶效果圖,12x13米
占地:110平方米
簡單平房農村自建一層別墅設計圖,時尚大氣,造價經濟
占地:166平方米
簡歐二層別墅設計圖紙含效果圖片,寶家鄉墅經典風格
占地:137.34平方米
超實用超現代兩層自建小樓圖,純粹極簡風格
占地:184平方米左右
青瓦仿古中式大型三層別墅設計圖,韻味十足復古大氣
占地:300平方米
推薦:10套新農村自建房設計圖,2026年最新設計
閱讀次數:4825737次
100套鄉村別墅圖片大全,2026年最新設計
閱讀次數:2492203次
6款農村蓋一層平房的設計圖,10萬元就能建起來
閱讀次數:1852637次
這11個一層農村自建房別墅火爆了朋友圈!我最喜歡戶型十!你呢
閱讀次數:750268次
農村6萬元建一層小別墅圖,你敢相信嗎
閱讀次數:567686次
農村5萬塊就能自建房,6套普通房子設計圖分享,你沒看錯!
閱讀次數:419410次
8套農村漂亮三間平房圖片,非常適合在農村修建!
閱讀次數:411197次
農村自建房化糞池怎么做?附方案及施工過程
閱讀次數:391783次
農村一層三間平房設計圖,告別土氣養老房,讓人忍不住點贊
閱讀次數:350581次
新農村二層樓房圖片造價12萬,挑一套回家建房吧!
閱讀次數:349126次
