
|
如果一套別墅的外觀裝飾華麗、色彩出眾,就容易引起別人的注意,且容易加深印象。鮮艷的色彩一般都能直達人的心靈。下面6套三層別墅設計,都是外觀色彩上比較鮮艷的,室內配置齊全豐富,更是容易打動人心。 第一套
正面效果圖
鳥瞰圖 占地面積:11.76m*12.5m,147平方米左右; 建筑高度:12.2米(含屋頂); 設計功能: 一層:大堂、神位、客廳、廚房、餐廳、衛生間、雜物間、老人房 二層:主臥(帶衛生間和衣帽間)、起居室、臥室X2、衛生間、臥室(帶雜物間); 三層:起居室、客房、衛生間、雜物間、書房、娛樂室、大露臺
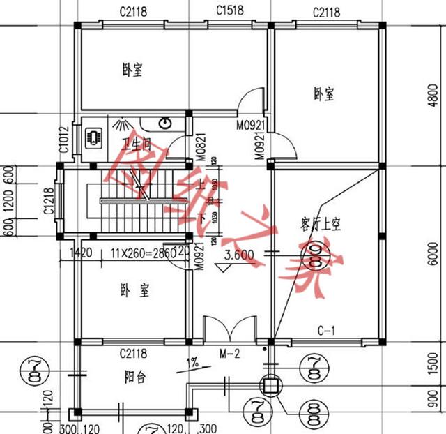
一層平面圖
二層平面圖
三層平面圖
立面圖 第二套
別墅效果圖一
別墅效果圖二 占地面積:9.50m*12.2m,115平方米左右; 建筑高度:12.14米(含屋頂); 設計功能: 一層:客廳、側廳(施工時可以自行做成臥室)、廚房、餐廳、衛生間、老人房、洗衣間; 二層:主臥(帶衛生間帶書房或衣帽間)、臥室x3、衛生間、陽臺; 三層:主臥(帶衛生間帶露臺)、臥室x3、衛生間、露臺(屋頂花園);
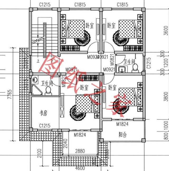
一層平面圖
二層平面圖
三層平面圖
立面圖 第三套
別墅效果圖 占地面積:14.1m*12.9m,180平方米左右; 建筑高度:12.5米(含屋頂); 設計功能: 一層:門廳、客廳、餐廳、廚房、老人房(主臥)、衛生間、棋牌室(次臥); 二層:起居室(小客廳)、主臥(帶衣帽間、衛生間)、臥室x2、衛生間; 三層:起居室(客廳)、主臥(帶衣帽間、帶衛生間)、書房、大露臺;
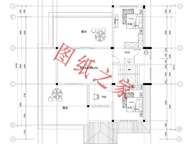
一層平面圖
二層平面圖
三層平面圖
立面圖 第四套
別墅效果圖 占地面積:13.96m*14.74m,200平方米左右; 建筑高度:11.83米(含屋頂); 設計功能: 一層:客廳、餐廳、廚房、臥室、主臥(帶衛生間)、衛生間、入戶花園、雜物間; 二層:客廳、主臥(衛生間)、臥室x3(其中1個臥室帶陽臺)、書房、衛生間; 三層:活動室、臥室x2、書房、衛生間、大露臺x2;
一層平面圖
二層平面圖
三層平面圖
立面圖 第五套
別墅效果圖 占地面積:11.00m*13.2m,145平方米左右; 建筑高度:12.06米(含屋頂); 設計功能: 一 層:客廳、廚房、餐廳、臥室、衛生間、儲藏間; 二 層:休閑廳、臥室x3、衛生間、陽臺; 三 層:臥室x2、衛生間、涼亭、露臺;
一層平面圖
二層平面圖
三層平面圖
立面圖 第六套
別墅效果圖 占地面積:8.94m*10.64m,90平方米左右; 建筑高度:9.60米(含屋頂); 設計功能: 一層:客廳、廚房、餐廳、臥室、衛生間、儲藏間(樓梯下); 二層:客廳、臥室x2、書房、衛生間; 三層:房間x2(可根據實際情況做儲藏間或臥室、書房、棋牌室等)、露臺;
一層平面圖
二層平面圖
三層平面圖
立面圖 這6套別墅的設計圖,你最喜歡哪一套? 圖紙之家-專注農村別墅/自建房設計18年,集合國內200余位經驗豐富的設計師,被評為口碑最好的農村建筑設計公司! |

農村一層平房別墅設計圖紙,130平米左右,主體十幾萬
占地:130平方米左右
95平米二層別墅必蓋戶型圖,造型洋氣,布局接地氣,趕緊回村建
占地:95.38平方米
一層三間別墅設計圖,經濟實用 + 好看不貴,養老自住都適配
占地:119.31平方米
12x12農村三層別墅設計圖,自建房屋推薦戶型
占地:148平方米
110平米一層小別墅設計方案,布局四室兩廳一廚兩衛
占地:110.5平方米
農村三間三層豪宅設計圖,自建別墅推薦戶型,帶地下室
占地:170平方米
預算20萬的農村三層房屋設計圖方案,帶外觀效果圖
占地:115平方米
歐式二層農村別墅設計圖,140平方米戶型方正的好方案
占地:142.51平方米
農村二層半房子設計圖 ,占地110平米和160多平兩個戶型圖
占地:多種戶型
經典三層小別墅設計圖紙(效果圖+全套cad建筑圖),新農村自建
占地:120平方米
農村一層四開間自建別墅,美麗住宅如詩如畫里15米乘10米
占地:142平方米
帶院子的四間二層別墅房屋設計圖,帶獨立車庫
占地:350平方米
新農村復試兩層半樓房設計圖,帶大露臺,簡單經濟實用大氣
占地:190平方米
農村四間兩層樓房設計圖,含外觀圖片
占地:138平方米
16×12米二層歐式帶車庫農村小別墅,既舒適又美觀
占地:180平方米
130平方米農村兩層別墅圖紙及效果圖12X11米
占地:133平方米
新中式風格二層住宅設計圖,農村自建房不土氣
占地:144.5平方米
造價33萬左右超漂亮的三層別墅圖紙設計圖,旋轉樓梯戶型設計
占地:121.59平方米
開間9到10米簡約別墅設計圖紙帶效果圖,全套別墅設計方案
占地:122平方米
現代風格精致兩層農村自建房住宅設計圖,帶儲藏室
占地:163平方米
推薦:10套新農村自建房設計圖,2026年最新設計
閱讀次數:4825737次
100套鄉村別墅圖片大全,2026年最新設計
閱讀次數:2492203次
6款農村蓋一層平房的設計圖,10萬元就能建起來
閱讀次數:1852637次
這11個一層農村自建房別墅火爆了朋友圈!我最喜歡戶型十!你呢
閱讀次數:750268次
農村6萬元建一層小別墅圖,你敢相信嗎
閱讀次數:567686次
農村5萬塊就能自建房,6套普通房子設計圖分享,你沒看錯!
閱讀次數:419410次
8套農村漂亮三間平房圖片,非常適合在農村修建!
閱讀次數:411197次
農村自建房化糞池怎么做?附方案及施工過程
閱讀次數:391783次
農村一層三間平房設計圖,告別土氣養老房,讓人忍不住點贊
閱讀次數:350581次
新農村二層樓房圖片造價12萬,挑一套回家建房吧!
閱讀次數:349126次
