
|
如果您打算在農村自建房,但又覺得平時看到的那些房子都太過普通,想要更獨特的設計,那么您可以選擇在網上挑選現成的圖紙,也可以找專業的設計師幫忙設計,這樣子戶型不論在外觀還是布局上都是經過優化的,建造出來的房子也會比較理想。下面給大家分享5款造價20萬左右農村二層自建房小別墅全套施工效果圖,來看看哪一款適合您家。 【戶型1】 圖紙詳情 層數: 二層 結構形式: 磚混結構 主體造價: 12-20萬 開間: 10.44米 進深: 9.14米 占地面積: 89.66平方米 建筑面積: 174.61平方米
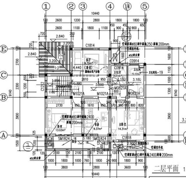
戶型1 這款二層自建房外墻均采用墻漆裝飾,帶有橫條,色彩拼接美觀大氣,二樓的陽臺上栽種藤蔓,給整棟房子增添了不少生機,讓人感覺更有生氣。 屋頂采用近幾年農村建房比較流行的坡屋頂設計,利于排水且十分美觀。 布局上,共設置了4間臥室,對于家里只有4~6口人來說已經足夠,書房也可以當臥室使用,是一款具有靈活性較強的戶型設計方案。 設計功能
一層平面圖 一 層: 廚房、餐廳、客廳、老人臥室、儲藏間、衛生間
二層平面圖 二 層: 2間臥室、主臥室、書房、衛生間、陽臺 【戶型2】
戶型3 層數: 二層結構形式: 磚混結構主體造價: 22萬 開間: 12.7米進深: 15.2米占地面積: 132平方米建筑面積: 253.8平方米 設計功能 一 層:臥室、客廳、餐廳、廚房、起居室、衛生間 二 層:書房、臥室、主臥室、起居室、衛生間、露臺、洗衣間、陽臺 【戶型3】
戶型3 層數: 兩層 結構形式: 磚混結構 主體造價: 25萬 開間: 8.04米 進深: 12.64米 占地面積: 93.3平方米 建筑面積: 241.6平方米 設計功能 一 層: 客廳、臥室、廚房、餐廳、雜物間、衛生間、內庭院 二 層: 起居室、主臥(附衛生間)、臥室(附曬臺)、臥室、衛生間;閣樓:家庭室、活動室、儲藏室、曬臺 【戶型4】
戶型4 層數: 二層 結構形式: 磚混結構 主體造價:25萬 開間: 14米 進深: 11.5米 占地面積: 141.55平方米 建筑面積: 270平方米 設計功能 一 層: 走廊、客廳、父母房、客房、廚房、餐廳、衣帽間、衛浴間、衛生間、洗衣間 二 層: 主臥(附衣帽間,衛浴間,露臺)、2臥室、衛浴間、洗漱間、露臺 【戶型5】
戶型5 層數: 二層 結構形式: 磚混結構 主體造價:20萬 開間: 11.4米 進深: 10.3米 占地面積:105.95平方米 建筑面積: 210平方米 設計功能 一 層: 走廊、客廳、臥室、廚房、餐廳、衛生間 二 層: 客廳(附陽臺)、臥室(附陽臺)、臥室(附書房)、臥室、衛生間 圖紙之家-專注農村別墅/自建房設計18年,集合國內200余位經驗豐富的設計師,被評為口碑最好的農村建筑設計公司! |

110平方米農村兩層別墅設計效果圖及圖紙,12X12米
占地:110平方米
150平方米大平層別墅設計圖,時尚大氣舒適實用
占地:149.43平方米
小戶型三層別墅房屋設計圖紙,占地80多平米,麻雀雖小五臟俱全
占地:80平方米
農村中式一層三合院自建房設計圖,古典大氣白墻黛瓦
占地:177.62平方米
農村四間兩層別墅房屋設計圖,含外觀圖片
占地:160平方米
110平農村二層房屋設計圖,戶型特別接地氣,造價經濟還實用
占地:110.05平方米
農村四層樓房設計圖,占地120平方米,歐式風格,高端大氣
占地:120平方米
農村120平方房子設計圖,三層房屋設計圖精選
占地:120平方米
12.5乘12米大氣優雅二層自建房設計圖,精美舒適布局實用
占地:149.27平方米
帶電梯農村建房三層小洋樓,樓中樓結構,帶露臺
占地:110平方米
農村自建房三間設計圖,花錢少效果好12米乘9米,經濟適用性價比
占地:108.9平方米
100-140平多戶型二層經典新農村小別墅設計建筑圖紙
占地:多種戶型
二層新中式別墅設計施工圖,廚房在配房,占地140平米
占地:141平方米
七字型設計新中式一層別墅設計圖,類合院風格
占地:267.3平方米
新中式風格農村自建房二層設計圖,15.5米乘12米
占地:186平方米
爆火農村養老房設計:16 米面寬一層戶型,自住養老全拿捏
占地:169.87平方米
鄉村最美四合院設計圖及外觀效果圖片,國人的理想住宅
占地:280.62平方米
帶露臺陽光房二層建房別墅設計圖,13米乘12米,享受農村悠然慢
占地:143.54平方米
新農村三層豪華歐式別墅,復式高端自建房設計圖紙及效果圖
占地:多種戶型
美爆的三層經典復式別墅設計圖紙及效果圖,建好更漂亮
占地:130平方米左右
推薦:10套新農村自建房設計圖,2026年最新設計
閱讀次數:4825737次
100套鄉村別墅圖片大全,2026年最新設計
閱讀次數:2492203次
6款農村蓋一層平房的設計圖,10萬元就能建起來
閱讀次數:1852637次
這11個一層農村自建房別墅火爆了朋友圈!我最喜歡戶型十!你呢
閱讀次數:750268次
農村6萬元建一層小別墅圖,你敢相信嗎
閱讀次數:567686次
農村5萬塊就能自建房,6套普通房子設計圖分享,你沒看錯!
閱讀次數:419410次
8套農村漂亮三間平房圖片,非常適合在農村修建!
閱讀次數:411197次
農村自建房化糞池怎么做?附方案及施工過程
閱讀次數:391783次
農村一層三間平房設計圖,告別土氣養老房,讓人忍不住點贊
閱讀次數:350581次
新農村二層樓房圖片造價12萬,挑一套回家建房吧!
閱讀次數:349126次
