
|
以前住著鄉下的老房子,總是羨慕別人住新房子,等到自己建房子了,卻不知道什么樣的房子才適合自己。現在不像以前可以隨便建房,在條件的約束下,每個人都希望自己的房子經濟美觀,而且獨一無二。房子款式千千萬,究竟哪款是最適合自己的呢?
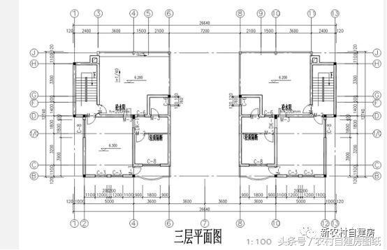
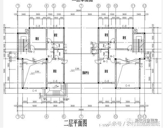
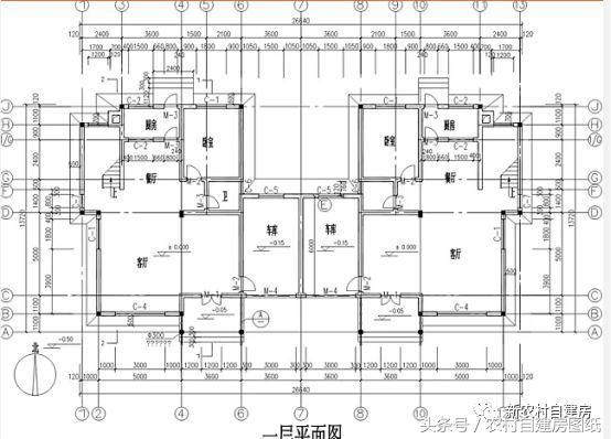
房屋基本信息: 開間:12.2米 進深:13.6米 占地面積:125平方米 建筑面積:330.6平方米 建筑結構:框架結構 入戶門庭設計個性十足,而且非常貼心。大氣的羅馬風格石柱,浪漫從容的花瓶式欄桿,顯眼的弧形落地窗從二層蔓鋪設到一層,溫暖又美觀。優雅莊重的靛藍色西瓦,外墻以白色相間,落地窗檐以文化石砌邊,層次感強,個個都相得益彰。多面開窗營造房子的溫暖感,打造輕盈的形態。
一層設計車庫、客廳、餐廳、臥室、廚房、衛生間。車庫相對獨立,方便車子進出,也為愛車提供遮風擋雨的場所。客廳、餐廳空間寬敞,提供舒適的生活、就餐環境。
二層設置主臥(帶衛生間)、2間臥室、公共衛生間。臥室帶衛生間為生活提供了便利性。多臥室的設計符合農村的熱情好客的需求,一般逢年過節親朋戚友較多,多臥室方便招待客人。如果家里不需要這么多臥室,可以改成兒童房、書房、棋牌室、影音室等。
既可以雙拼,又可以獨棟,完全根據家庭需求靈活設置,好的房子無論從哪個方面看,都能帶給我們不一樣的視覺體驗,室內布局無論怎么看都無可挑剔。 ![]()
圖紙之家-專注農村別墅/自建房設計18年,集合國內200余位經驗豐富的設計師,被評為口碑最好的農村建筑設計公司! |

預算10萬左右新農村自建房屋設計圖紙,帶效果圖
占地:82平方米
外觀看起來高端、奢華的二層小別墅設計圖,推薦
占地:130平方米
面寬18米二層農村大別墅設計圖,可帶電梯,舒適又實用
占地:138.29平方米
2026二層農村新款別墅圖片及施工圖,新中式風格古典大氣
占地:200平方米
農村四間三層豪華別墅設計方案圖,造型輕奢雅致
占地:200平方米
三層蓋房子歐式挑空客廳別墅設計圖,外觀漂亮戶型實用
占地:多種戶型
新式帶挑空客廳三層鄉村別墅設計圖,占地170平左右
占地:170平方米
“L”字形二層別墅設計圖,獨立餐廚加連體露臺,太美了
占地:多戶型可選
南方新農村三層房屋設計圖大全,預算30萬內
占地:145平方米
農村三間四層樓房設計圖,農村輕奢型四層別墅
占地:160平方米
130平米新農村自建房屋施工建筑圖紙及效果圖
占地:132平米
2026新款農村三層雙拼自建房設計圖,占地150平米左右
占地:150平方米
90平方米農村二層房屋設計施工圖紙及效果圖,11x8.5米
占地:90平方米
帶車庫二層165平別墅房屋設計圖,含效果圖
占地:165平方米
120平農村三層自建房屋設計圖,旋轉樓梯復式別墅戶型方案
占地:119.23平方米
經濟型實用歐式一層小樓房別墅平房設計圖,11X10米
占地:103平方米
農村一層中式三合院別墅戶型圖,這才是適合中國人建的好房子
占地:218.77平方米
新款鄉村二層半別墅設計圖紙帶效果圖,三層別墅外觀圖片大全
占地:108.795平方米
130平方米新農村自建三層別墅設計施工圖,13x11米
占地:130平方米
農村七字形獨棟一層別墅設計圖,設計感十足
占地:274.51平方米
推薦:10套新農村自建房設計圖,2026年最新設計
閱讀次數:4825737次
100套鄉村別墅圖片大全,2026年最新設計
閱讀次數:2492203次
6款農村蓋一層平房的設計圖,10萬元就能建起來
閱讀次數:1852637次
這11個一層農村自建房別墅火爆了朋友圈!我最喜歡戶型十!你呢
閱讀次數:750268次
農村6萬元建一層小別墅圖,你敢相信嗎
閱讀次數:567686次
農村5萬塊就能自建房,6套普通房子設計圖分享,你沒看錯!
閱讀次數:419410次
8套農村漂亮三間平房圖片,非常適合在農村修建!
閱讀次數:411197次
農村自建房化糞池怎么做?附方案及施工過程
閱讀次數:391783次
農村一層三間平房設計圖,告別土氣養老房,讓人忍不住點贊
閱讀次數:350581次
新農村二層樓房圖片造價12萬,挑一套回家建房吧!
閱讀次數:349126次
