
|
現在回農村建房的人越來越多,但是國家對宅基地的審批卻是越來越嚴格,大部分宅基地的面積都在120平方米左右,這些朋友都是需要小戶型的設計。今天給大家推薦的3套三層別墅就很適合他們,外觀靚麗、布局實用,建成之后氣派有面子! 第一套
正面效果圖
鳥瞰效果圖
背面效果圖 9.5m*10.0m,一層占地90平方米左右(含外門庭); 建筑層高:三層; 建筑高度:10.7米(含屋頂); 設計功能: 一層別墅戶型:客廳、廚房、餐廳、臥室、衛生間、車庫; 二層別墅戶型:臥室(帶衣帽間)、臥室x2、衛生間、書房、儲藏間、陽臺; 三層別墅戶型:臥室(帶衣帽間)、臥室、活動室、衛生間、大露臺;
一層平面圖
二層平面圖
三層平面圖 第二套
正面效果圖
鳥瞰效果圖
背面效果圖 占地面積:10.0m*12.0m,一層占地120平方米左右(含外門庭); 建筑層高:三層; 建筑高度:12.0米(含屋頂); 設計功能: 一層別墅戶型:客廳、廚房、餐廳、臥室(帶衛生間)、臥室、儲藏室、衛生間; 二層別墅戶型:客廳、臥室(帶衛生間)、臥室x2、書房、衛生間、露臺; 三層別墅戶型:臥室x3、書房、衛生間、大露臺;
一層平面圖
二層平面圖
三層平面圖 第三套
正面效果圖
鳥瞰效果圖
背面效果圖 占地面積:11.9m*10.9m,一層占地130平方米左右(含外門庭); 建筑層高:三層; 建筑高度:13.08米(含屋頂); 設計功能: 一層別墅戶型:客廳、廚房、餐廳、臥室(帶衛生)、臥室、休閑室、衛生間; 二層別墅戶型:起居室、臥室(帶衛生間)、臥室x2、衛生間、儲藏間、陽臺; 三層別墅戶型:臥室(帶衛生間)、臥室x2、衛生間、儲藏間、陽臺;
一層平面圖
二層平面圖
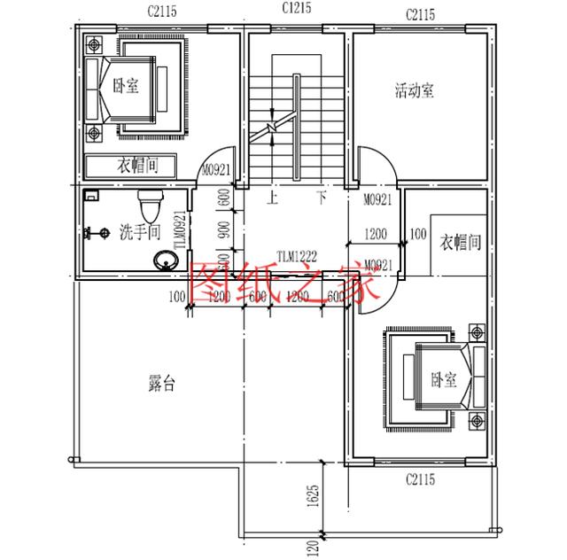
三層平面圖 這三套別墅的設計圖,你最喜歡哪一套? 我們提供數千套自建別墅設計圖,讓您建房無憂。需要查看詳情或更多圖紙請關注【圖紙之家】或點擊下面圖片。 圖紙之家-專注農村別墅/自建房設計18年,集合國內200余位經驗豐富的設計師,被評為口碑最好的農村建筑設計公司! |

帶地下室三層豪華大氣新農村房屋設計圖,占地150平米左右
占地:150平方米
農村自建三層別墅設計圖,開間17米進深13米,外觀對稱設計
占地:187.6平方米
農村2026新式三間二層樓房,12×11.6米,戶型經典,造價實惠
占地:120平方米
造價30萬多的三層簡歐新農村別墅設計施工圖紙及效果圖
占地:133平方米左右
120平方兩層房子設計圖及圖片,外觀大方好看,內部結構合理
占地:120平方米
造價12萬一層簡單自建房設計戶型圖,占地面積140平方米左右
占地:137.76平方米
歐式二層5大間別墅設計圖,新穎獨特的外觀,面寬20米
占地:180.14平方米
省錢美觀一層自建房子設計圖,父母養老住很適合
占地:117平方米
農村建房的“面子天花板”!新中式簡歐結合三層別墅,進門就被
占地:225.98平方米
中式復古四層別墅房屋設計圖紙,含外觀效果圖
占地:90平方米
11x13米兩層半現代風別墅設計圖,??看過的都后悔建早了!
占地:126.02平方米
2026最新兄弟簡歐雙拼別墅設計圖紙,單戶130平米左右
占地:260平方米
70平農村小戶型二層別墅設計圖,小宅基地的福音
占地:70平方米
230平米歐式帶地下室三層自建別墅設計施工圖紙及效果圖
占地:230平米
頂配三拼三層別墅設計,獨立入戶+共享庭院,兄弟三家共享奢華
占地:367.44平方米
農村三層帶車庫、帶露臺別墅設計圖,經典自建別墅設計方案
占地:160平方米
農村四間二層別墅設計方案圖,外觀精致、時尚
占地:152平方米
90平農村自建房二層新款,占地不大但很實用,
占地:88平方米
新中式三層歐式別墅設計圖,盡顯貴族風范,占地135平
占地:134.37平方米
二層農村自建四合院設計圖,中式外觀古樸有質感200-300平方米
占地:270平方米左右
推薦:10套新農村自建房設計圖,2026年最新設計
閱讀次數:4825737次
100套鄉村別墅圖片大全,2026年最新設計
閱讀次數:2492203次
6款農村蓋一層平房的設計圖,10萬元就能建起來
閱讀次數:1852637次
這11個一層農村自建房別墅火爆了朋友圈!我最喜歡戶型十!你呢
閱讀次數:750268次
農村6萬元建一層小別墅圖,你敢相信嗎
閱讀次數:567686次
農村5萬塊就能自建房,6套普通房子設計圖分享,你沒看錯!
閱讀次數:419410次
8套農村漂亮三間平房圖片,非常適合在農村修建!
閱讀次數:411197次
農村自建房化糞池怎么做?附方案及施工過程
閱讀次數:391783次
農村一層三間平房設計圖,告別土氣養老房,讓人忍不住點贊
閱讀次數:350581次
新農村二層樓房圖片造價12萬,挑一套回家建房吧!
閱讀次數:349126次
