
|
現在的農村自建房大致可以分成幾個時間段,土坯房、磚瓦房、小套房,然后就是現在的小洋樓和小別墅;按層數又能分成二層、三層和小高層,可以說是花樣齊全。農村人口比較多,最適合的還是三層別墅。下邊給大家推薦3套農村三層別墅,120平方米7個臥室,全家都能住得下,來看看有沒有你喜歡的! 第一套
正面效果圖
鳥瞰效果圖
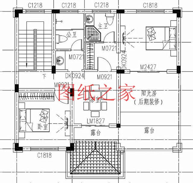
背面效果圖 占地面積:11.0m*12.0m,一層占地127平方米左右(含外門庭); 建筑高度:14.1米(含屋頂); 設計功能: 一 層:客廳、廚房、餐廳、茶吧、臥室、衛生間; 二 層:臥室(帶衣帽間)、臥室(帶主衛,書房)、臥室、衛生間; 三 層:女兒房(帶衛生間)、臥室×2、公衛、露臺;
一層平面圖
二層平面圖
三層平面圖 第二套
別墅效果圖 占地面積:11.7m*11.1m,126平方米左右; 建筑高度:11.41米(含屋頂); 設計功能: 一 層:客廳(中空)、臥室、廚房、餐廳、衛生間、車庫 二 層:小客廳、臥室(附陽臺)、2臥室、衛生間 三 層:小客廳、臥室(附陽臺)、2臥室、衛生間、露臺
一層平面圖
二層平面圖
三層平面圖 第三套
別墅效果圖 占地面積:11.00m*11.60m,128平方米左右; 建筑高度:11.97米(含屋頂); 設計功能: 一 層:玄關、客廳、廚房、餐廳、臥室、衛生間、車庫(可做臥室); 二 層:娛樂廳(可做小客廳)、客廳(可做大臥室)、臥室x3、書房、衛生間、陽臺; 三 層:娛樂廳、臥室x3、衛生間、大露臺(屋頂花園);
一層平面圖
二層平面圖
三層平面圖
圖紙之家-專注農村別墅/自建房設計18年,集合國內200余位經驗豐富的設計師,被評為口碑最好的農村建筑設計公司! |

一層半帶閣樓別墅設計圖,悠閑舒適,養老度假皆可
占地:161.94平方米
130平帶閣樓兩層半別墅房屋設計圖,含外觀效果圖
占地:130平方米
鄉村典型自建房中式二層四合院別墅設計圖,左右對稱設計
占地:430平方米
回老家蓋房就選這款新中式一層設計,16乘8米大小正合適
占地:130.1平方米
農村自建三層別墅設計圖,開間17米進深13米,外觀對稱設計
占地:187.6平方米
農村自建二層樓房設計圖及效果圖,二層房屋圖推薦
占地:105平方米
農村小戶型三層別墅設計圖,平屋頂,造價20萬左右
占地:80平方米
農村三層雙拼別墅設計圖,帶外觀效果圖,推薦
占地:190平方米
130平方米歐式實用農村二層樓別墅圖紙帶外觀圖12X13米
占地:132平方米
145平方米新農村二層別墅設計效果圖及施工圖,12.6米x11.4米
占地:147平方米
農村4間2層樓房設計圖,帶車庫,外觀時尚,帶屋頂花園
占地:210平方米
140平方米現代偏中式實用型三層房屋設計圖紙,新農村建房推薦
占地:142平方米
小戶型三層別墅房屋設計圖紙,占地80多平米,麻雀雖小五臟俱全
占地:80平方米
二層帶地下室樓房設計方案,效果圖+全套施工圖
占地:160平方米
全新農村簡歐風格三層房屋別墅效果圖,110和210兩個戶型,帶電梯
占地:多種戶型
二層農村房屋設計圖紙,帶效果圖和全套施工方案圖
占地:多種戶型
二層帶架空層的農村別墅設計圖,功能齊全,超越十里八村
占地:130平方米
12米乘9米占地百平一層平房戶型設計圖,布局寬敞大氣又舒適
占地:108平方米
最漂亮的農村二層小樓房自建別墅設計圖紙及效果圖
占地:168平方米
巴洛克風格農村二層別墅設計圖(偏法式),對稱式設計,太講究
占地:210.25平方米
推薦:10套新農村自建房設計圖,2026年最新設計
閱讀次數:4825737次
100套鄉村別墅圖片大全,2026年最新設計
閱讀次數:2492203次
6款農村蓋一層平房的設計圖,10萬元就能建起來
閱讀次數:1852637次
這11個一層農村自建房別墅火爆了朋友圈!我最喜歡戶型十!你呢
閱讀次數:750268次
農村6萬元建一層小別墅圖,你敢相信嗎
閱讀次數:567686次
農村5萬塊就能自建房,6套普通房子設計圖分享,你沒看錯!
閱讀次數:419410次
8套農村漂亮三間平房圖片,非常適合在農村修建!
閱讀次數:411197次
農村自建房化糞池怎么做?附方案及施工過程
閱讀次數:391783次
農村一層三間平房設計圖,告別土氣養老房,讓人忍不住點贊
閱讀次數:350581次
新農村二層樓房圖片造價12萬,挑一套回家建房吧!
閱讀次數:349126次
