
|
現在人們在鄉下建房,要求越來越嚴苛,外觀要求漂亮大方,室內布局又要功能合理,而且造價還得經濟,術業有專攻,對檢方的要求越高,如果不找專門的設計師設計圖紙的話,實在是有點強人所難。專門的設計師不僅可以幫你節約省錢,往往還能達到事半功倍的效果。今天給大家帶來的這款三層別墅,無論是外觀還是室內布局,都能看得到設計師花了不少心思。
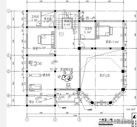
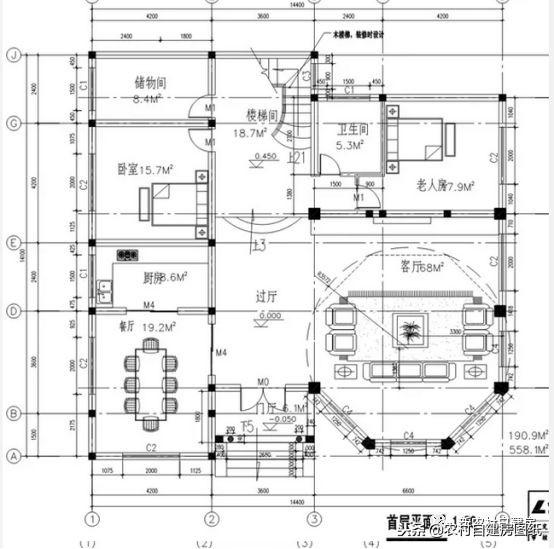
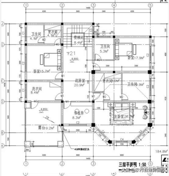
房屋基本信息: 開間:14.4米 進深:14.1米 占地面積:190.9平方米 建筑面積:558.1平方米 建筑結構:磚混結構 這樣有著宮廷風格的歐式三層建筑,在農村絕對屬于獨樹一幟的存在。不規則的斜屋頂設計,讓整個建筑看起來造型豐富,不拘一格。右側墻體的圓弧設計,讓整個里面層次豐富,輕盈飄逸。歐式風格以奢華大氣為主,但是這棟建筑使用多種色彩的搭配,讓雍容華貴的宮廷風多了一點現代的小清新,給人以柔和寧靜的感覺。
一層設計門廳、過廳、餐廳、廚房、臥室、儲物間、老人房、衛生間、客廳。進門是門廳,有一個過廳過渡,避免過于突兀。客廳寬敞、視野開闊,還可以作為堂屋使用。樓梯間處設立儲物間,合理利用空間,餐廳和廚房相連,方便平時就餐。老人房靠近衛生間,方便老人家起夜,可以說考慮非常他貼心。
二層設計茶室、健身房、陽臺、臥室(帶衛生間、更衣間)、臥室(帶衛生間)。和一樓不同,二樓更注重娛樂功能,茶室娛樂室平時可以喝茶聊天,還可以擺上麻將桌,沒事邀上三五好友一起搓麻將。高配置的臥室,帶給主人高品質的生活。
三層設置祭祖房、露臺、洗衣間、臥室(帶衛生間、更衣間)、起居室、臥室(帶衛生間)、主臥(帶衛生間、更衣間),三間臥室都有衛生間,隱私性強,無論是來了客人還是自住,都不會干擾到彼此。起居室可以用來團聚、娛樂,洗衣房方便生活,祭祖房可以說是非常接地氣的設計,在農村逢年過節都要祭祖,以示孝敬不忘本。而且這個設計在三樓別有用心,不僅避免俗世打擾,而且民間有話稱一生二,二生三,三生萬物。你有被設計師的良苦用心打動嗎?
建好后的案例更是完美大氣,這樣的歐式你心動嗎? 圖紙之家-專注農村別墅/自建房設計18年,集合國內200余位經驗豐富的設計師,被評為口碑最好的農村建筑設計公司! |

簡歐風格別墅設計圖帶外觀效果圖,三層140平米戶型方案
占地:140平方米
農村四間房屋設計圖經典戶型,這樣設計美觀、實用
占地:169平方米
進深14米的二層小別墅設計圖,農村自建房好方案
占地:144平方米左右
三層新農村自建小型別墅設計圖及效果圖,三間三層樓房戶型
占地:114平方米
面寬12米簡歐三層農村別墅設計圖,低調又奢華鄉村別墅
占地:132.64平方米
農村三層樓房設計圖三層別墅圖片,占地面積135平米
占地:135平方米
占地80平四層平頂別墅設計圖,現代風房子效果圖
占地:80平方米
經典小戶型二層新農村房屋設計圖紙,客廳中空,造價20萬
占地:94平方米
農村兩層新中式自建房屋設計圖,受歡迎的帶小配房戶型
占地:多戶型可選
15萬左右新中式二層別墅設計圖平面圖,占地110平米左右
占地:110平方米
面寬15米一層四間現代風別墅,外觀漂亮布局實用,養老度假超巴
占地:180平方米
新款240平方米三層雙拼別墅設計圖,歐式兄弟雙拼圖片
占地:240平方米
帶車庫的三層房屋方案設計圖,帶堂屋全套圖紙
占地:163.8平方米
帶車庫二層165平別墅房屋設計圖,含效果圖
占地:165平方米
鄉村別墅現代風平屋頂四層自建房設計圖,簡約時尚
占地:144.7平方米
二層現代風格雙拼別墅設計圖,平屋頂,帶地下室設計
占地:192.47平方米
簡約精致的二層房子設計圖,農村自建經濟實用
占地:89.76平方米
四層農村別墅設計圖,一二層都有廚房和餐廳的戶型方案
占地:128.52平方米
不帶廚房的一層別墅設計圖,三臥二廳超巴適,室外獨立廚房
占地:120平方米
新農村歐式時尚二層別墅設計圖紙,120平方米自建房
占地:多種戶型
推薦:10套新農村自建房設計圖,2026年最新設計
閱讀次數:4825737次
100套鄉村別墅圖片大全,2026年最新設計
閱讀次數:2492203次
6款農村蓋一層平房的設計圖,10萬元就能建起來
閱讀次數:1852637次
這11個一層農村自建房別墅火爆了朋友圈!我最喜歡戶型十!你呢
閱讀次數:750268次
農村6萬元建一層小別墅圖,你敢相信嗎
閱讀次數:567686次
農村5萬塊就能自建房,6套普通房子設計圖分享,你沒看錯!
閱讀次數:419410次
8套農村漂亮三間平房圖片,非常適合在農村修建!
閱讀次數:411197次
農村自建房化糞池怎么做?附方案及施工過程
閱讀次數:391783次
農村一層三間平房設計圖,告別土氣養老房,讓人忍不住點贊
閱讀次數:350581次
新農村二層樓房圖片造價12萬,挑一套回家建房吧!
閱讀次數:349126次
