
|
如今農村建房子與昔日不同,過去人們建房沒有太高要求,只要能住就行,外觀和布局也不怎么重視,現在生活水平有了提升,老百姓建房子的要求也高了起來,不僅要求外觀漂亮,布局還要舒適流暢,經濟實用,這就需要專業的設計了。 今天小編給大家分享5套農村二層自建房設計圖,喜歡戶型1的人最多,戶型5只要22萬,來看看有沒有您喜歡的戶型。 【戶型1】
戶型1 層數: 二層 結構形式: 磚混結構 主體造價: 25萬 開間: 12.5米 進深: 11米 占地面積: 128.75平方米 總建筑面積: 229.42平方米 戶型1很有設計感,正立面中間的八面體結構設計富有立體感,多個窗戶增加外觀的美感及室內采光,外墻用黃色為主色,有文化石點綴,客廳挑空設計,明廚明衛、二層的主臥帶書房衣帽間等功能性極強,是溫馨居家的選擇。 客廳挑空款室內布局:
一層平面圖 一層: 入室玄關、餐廳、客廳、廚房、雜物間、2間臥室、公用衛生間
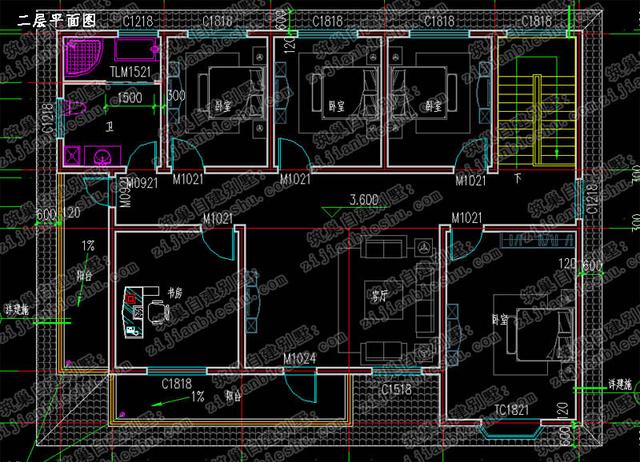
二層平面圖 二 層: 主臥室( 帶書房、帶露臺、帶衣帽間、帶衛生間)、前次臥室(帶露臺)、后次臥室、公用衛生間 【戶型2】 層數:二層 結構形式:磚混結構 主體造價:30萬 開間:16米 進深:12米 占地面積:184.38平方米 建筑面積:354.36平方米
戶型2 戶型2在外觀設計上清新自然,有常常的走廊,還有雙露臺設計,屋頂的造型線條優美,共設有7個臥室,一個書房,二層的主臥帶飄窗,整棟房屋的功能設計靈活性高,方便舒適。
鳥瞰圖
功能設計
一層平面圖
一層:客廳、3臥室、廚房、餐廳、2衛生間、洗漱區
二層平面圖 二層:客廳(帶露臺)、書房、4臥室、衛生間、露臺 【戶型3】 圖紙詳情 層數: 二層 結構形式: 磚混結構 開間:11.5米 進深:11.7米 占地面積: 129.18方米 建筑面積:220.89平方米 建筑高度7.35米 主體造價: 20萬
戶型3 戶型3屬于簡歐設計風格,客廳挑空設計,寬敞明亮,富有層次感。聯體通窗玻璃設計時尚大氣,金色的山花構件修飾高檔有氣質,二樓的陽臺衛住戶增加休閑空間。
功能設計
一 層: 門廳、挑空客廳、餐廳、廚房、主臥(帶陽臺)、次臥、衛生
二 層: 小客廳、陽臺、臥室×3、衛生間 【戶型4】 本戶型采用磚混結構,開間進深10.9×9.1m,一樓占地面積100㎡,總建筑面積180㎡,主體造價18萬元。
戶型4 戶型4與前面幾款戶型相比,屬于比較簡約大方的戶型,一二層外墻分別采用紅色、米黃色裝飾,沒有過多冗雜的修飾,容易施工,造價低,毛坯18萬左右可以建成。
背面效果圖
本套二層別墅功能設計平面圖展示:
一層平面圖
一層:客廳、老人房、活動室、儲藏室、廚房、餐廳、公衛
二層平面圖 二層:主臥(帶主衛)、書房、公衛、小孩房、露臺 【戶型5】 圖紙詳情 開間進深12×10米,首層占地面積129平方米,總建筑面積253.16平方米,采用磚混結構,主體造價大概22萬。
戶型5 戶型5采用平屋頂設計,風格簡單大方,灰白色裝飾十分耐看,一樓設有走廊,二樓有陽臺和露臺,帶給住戶充足的活動空間,室內布局側重使用的流暢性及舒適度,各空間尺寸劃分適宜。 設計功能:
一層平面圖 一層:堂屋、客廳、餐廳、廚房、臥室(帶內衛)、臥室、雜物房、衛生間。
二層平面圖 二層:客廳、臥室(帶內衛)、臥室x3、陽臺、衛生間。 圖紙之家-專注農村別墅/自建房設計18年,集合國內200余位經驗豐富的設計師,被評為口碑最好的農村建筑設計公司! |

徽派自建房一層設計圖,七字型設計,獨立餐廚便捷實用
占地:171.65平方米
現代風格三層別墅設計圖紙和效果圖,農村自建精選
占地:129平方米
三層現代平頂別墅設計圖,簡約時尚百看不厭,外觀令人驚艷!
占地:125.142平方米
帶架空層車庫/地下室自建一層別墅設計圖,隔潮又能儲物
占地:91.32平方米
二層農村自建小別墅設計圖,歐式風格,占地160平方米
占地:160平方米
大氣、簡約三層雙拼別墅設計圖,適合和父母同住,既相互關照又
占地:260平方米
農村七字形獨棟一層別墅設計圖,設計感十足
占地:274.51平方米
農村一層別墅設計圖,3室2廳帶書房,占地面積200平米左右
占地:200平方米
30萬農村小別墅設計圖片,30萬別墅設計戶型推薦
占地:130平方米
小開間三層新中式小別墅設計圖,外觀圖優雅大氣,讓人心動!
占地:103.18平方米
10萬農村別墅設計圖小戶型,經濟、耐看、實用
占地:多種戶型
高端大氣三層半別墅客廳挑空設計,豪華農村自建房圖
占地:179.52平方米
三層平頂現代風格,農村自建房設計圖,可帶電梯,百看不厭
占地:259.55平方米
16x14米三層雙拼別墅設計圖,外觀精致大氣內里實用,兄弟建房上
占地:217.28平方米
帶車庫的三層房屋方案設計圖,帶堂屋全套圖紙
占地:163.8平方米
180平米農村二層小別墅設計圖,外觀漂亮,帶露臺
占地:180平方米
農村四間二層別墅設計圖,七室二廳帶車庫,室內寬敞鄰居都羨慕
占地:217.1平方米
帶配房的農村三層別墅設計圖,全家享精致生活
占地:167.29平方米
現代風格精致兩層農村自建房住宅設計圖,帶儲藏室
占地:163平方米
兄弟雙拼三層小戶型別墅設計圖紙,160平方米(單戶80平)
占地:163平方米
推薦:10套新農村自建房設計圖,2026年最新設計
閱讀次數:4825737次
100套鄉村別墅圖片大全,2026年最新設計
閱讀次數:2492203次
6款農村蓋一層平房的設計圖,10萬元就能建起來
閱讀次數:1852637次
這11個一層農村自建房別墅火爆了朋友圈!我最喜歡戶型十!你呢
閱讀次數:750268次
農村6萬元建一層小別墅圖,你敢相信嗎
閱讀次數:567686次
農村5萬塊就能自建房,6套普通房子設計圖分享,你沒看錯!
閱讀次數:419410次
8套農村漂亮三間平房圖片,非常適合在農村修建!
閱讀次數:411197次
農村自建房化糞池怎么做?附方案及施工過程
閱讀次數:391783次
農村一層三間平房設計圖,告別土氣養老房,讓人忍不住點贊
閱讀次數:350581次
新農村二層樓房圖片造價12萬,挑一套回家建房吧!
閱讀次數:349126次
