
|
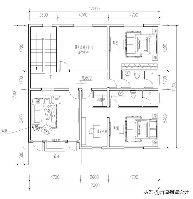
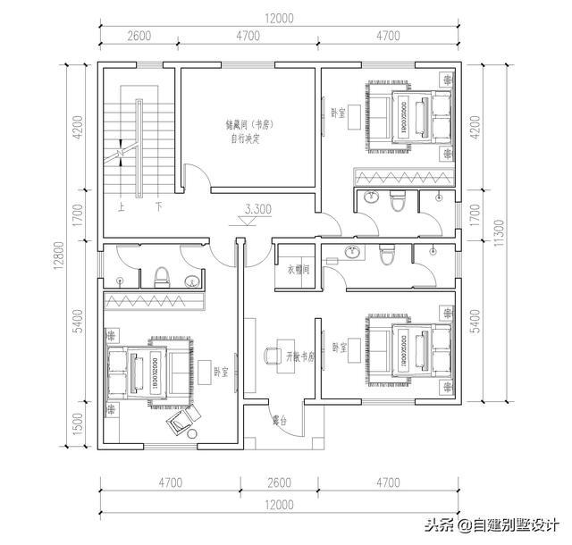
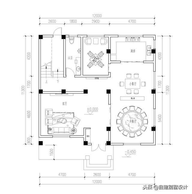
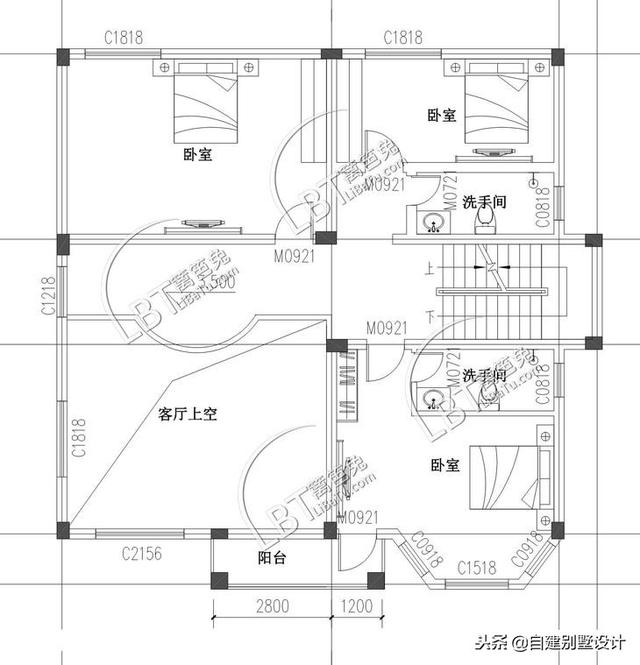
設計理念:安全、實用、美觀! 方案一 :層數/高:3層/12.3m 開間:12.7米進深:11.4米 結構形式:框架結構占地面積:146㎡ 建筑面積:381㎡主體造價:40萬左右
方案二 :層數/高:3層 開間:13.7米進深:11.4米 結構形式:框架結構占地面積:157㎡ 建筑面積:435㎡主體造價:42萬左右
方案三 :層數/高:3層/12.3m 開間:12.3米進深:11.4米 結構形式:框架結構占地面積:150㎡ 建筑面積:385㎡主體造價:40萬左右
方案四 :層數/高:3層/12.3m 開間:12.5米進深:11.4米 結構形式:框架結構占地面積:150㎡ 建筑面積:390㎡主體造價:40萬左右
全套圖紙包括以下內容:建筑施工圖、結構施工圖、給排水施工圖、電氣施工圖、外觀效果圖, 圖紙之家-專注農村別墅/自建房設計18年,集合國內200余位經驗豐富的設計師,被評為口碑最好的農村建筑設計公司! |

四開間2層別墅設計圖,外觀圖配色清新淡雅,占地200平米
占地:200平方米
高端二層新中式四合院別墅設計圖,含全套CAD施工圖
占地:217平方米
農村三層帶地下室小樓房設計圖,客廳中空,帶書房,旋轉樓梯
占地:130平方米
戶型方正的三層平頂小別墅設計圖,占地面積100平
占地:100.19平方米
鄉村中式四合院二層別墅設計圖,中式韻味十足
占地:223平方米左右
2026戶型方正三層農村小別墅設計圖紙(含外觀圖片)
占地:150平方米
小型中式一層三合院別墅設計圖,小宅基地照樣建合院
占地:119.73平方米
農村三層歐式別墅豪宅戶型圖設計方案,復式中空客廳+旋轉樓梯
占地:134.84平方米
100平方米實用二層半小別墅設計圖紙(帶閣樓層),住著安逸
占地:100平方米左右
新中式徽派帶露臺別墅設計圖,構思精巧,自然得體
占地:124.82平方米
帶閣樓的一層半平房設計圖,比樓房還舒適,12米×13米
占地:170.1平方米
鄉村三層別墅施工圖紙帶效果圖,田園別墅設計圖紙推薦
占地:178平方米
二層半新中式別墅設計圖,農村自建24萬,帶庭院規劃設計
占地:140.68平方米
農村18萬元二層小樓圖紙,漂亮實用的農村二層樓房設計圖
占地:140平方米
農村四層樓房設計圖,占地120平方米,歐式風格,高端大氣
占地:120平方米
簡歐風格別墅設計圖帶外觀效果圖,三層140平米戶型方案
占地:140平方米
五間二層別墅設計圖紙,樓梯設計的無比大氣
占地:300平方米
二層簡歐別墅設計圖挑空客廳+旋轉樓梯,看過的人都說氣派
占地:154.699平方米
簡單時尚二層住宅設計圖紙,簡單的設計,不平凡的視覺感受
占地:110平方米
爆火農村養老房設計:16 米面寬一層戶型,自住養老全拿捏
占地:169.87平方米
推薦:10套新農村自建房設計圖,2026年最新設計
閱讀次數:4825737次
100套鄉村別墅圖片大全,2026年最新設計
閱讀次數:2492203次
6款農村蓋一層平房的設計圖,10萬元就能建起來
閱讀次數:1852637次
這11個一層農村自建房別墅火爆了朋友圈!我最喜歡戶型十!你呢
閱讀次數:750268次
農村6萬元建一層小別墅圖,你敢相信嗎
閱讀次數:567686次
農村5萬塊就能自建房,6套普通房子設計圖分享,你沒看錯!
閱讀次數:419410次
8套農村漂亮三間平房圖片,非常適合在農村修建!
閱讀次數:411197次
農村自建房化糞池怎么做?附方案及施工過程
閱讀次數:391783次
農村一層三間平房設計圖,告別土氣養老房,讓人忍不住點贊
閱讀次數:350581次
新農村二層樓房圖片造價12萬,挑一套回家建房吧!
閱讀次數:349126次
