
|
現在宅基地越來批的越小,蓋一層的房子著實不夠用,沒奈何只能向上發展空間。其實對于養老房沒必要貪大求全,不然將來真的養老使用光是打掃就要麻煩死。養老房居住生活的要求不多,有自己的臥室,將來子女或探望或照顧有房間可住。如此也就可以了。而度假別墅更是如此,一家三五口人能都同時住下,少了說只需要2間臥室,多了不過4-5個房間。更是沒必要蓋個好幾層,勞神又費力。 戶型1
這一棟嚴格區分起風格,可能要算是東南亞風格。
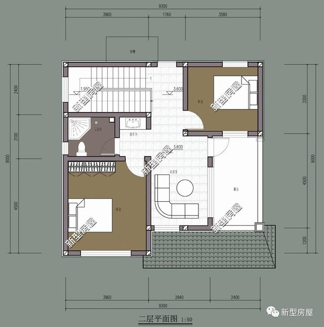
老人房帶衣帽間,并且挨著衛生間,居住生活更加舒適,方便。
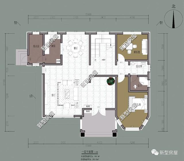
二層在露臺內側設置一個大客廳,室內的通風采光更好。 戶型2
一棟現代造型的三合院住宅。造型時尚,三面圍合私密性更強。
入戶正對的客廳可以根據農村生活習慣做堂屋使用。
二層4間臥室都是套房,獨立性更強。客臥可以容納兩張單人床,更是方便了家中留宿親友。 戶型3
大氣歐式風格,沉穩端莊。
如何玄關、客廳、餐廳連成一體,空間開闊。動靜分離,居住私密性更強。
二層4間臥室,主臥套房設計帶衣帽間和套衛,舒適Max。 戶型4
簡約歐式風格,采用紅瓦更符合農村習慣。
附屬房設置廚房餐廳,使得室內避免了油煙的困擾。
東側露臺迎朝霞,避西曬。兩間臥室彼此獨立,居住者隱私得到有效保障。 戶型5
法式二層別墅,造型周正。整體端莊穩重。
入戶首先進入一個由客廳與餐廳連通的大的開敞空間,帶來一種視覺的震撼。
二層作為主要居住空間,主臥一應布置齊全,提供最高級的居住享受。露臺,棋牌室同時豐富了休閑娛樂生活。 戶型6
配色尤顯沉穩,上人屋頂的設置,在不減少居住面積的情況下增加了一個大露臺,很是實用。
入戶餐廳可能讓人覺得奇怪,其實餐廳可以根據需要布置成堂屋。該戶型坐南朝北,北側客廳所在才是大門方向。
二層書房、起居室功能較多,同時備用房的設置可以根據需要靈活調整。
看了這六套圖紙,你更喜歡哪套呢? 圖紙之家-專注農村別墅/自建房設計18年,集合國內200余位經驗豐富的設計師,被評為口碑最好的農村建筑設計公司! |

小戶型三層別墅房屋設計圖紙,占地80多平米,麻雀雖小五臟俱全
占地:80平方米
115平旋轉樓梯三層復式別墅房屋設計圖,含外觀效果圖
占地:115平方米
省錢美觀一層自建房子設計圖,父母養老住很適合
占地:117平方米
150平米田園風格二層別墅設計圖紙,沉穩大氣有內涵
占地:150平方米
農村四間二層別墅設計方案圖,外觀精致、時尚
占地:152平方米
兩層半30萬農村自建房別墅設計圖紙,客廳挑空,帶大露臺
占地:130平方米
13×10米現代簡約風格三層別墅圖,坡屋頂和平屋頂完美結合
占地:120平方米
仿古中式三合院設計圖紙,帶堂屋,適合農村自建
占地:173平方米
農村自建房鄉村超現代平屋頂二層別墅圖設計方案,造價低,施工
占地:142平方米
三十萬農村別墅設計圖帶外觀圖片,30萬造價別墅展示
占地:125平方米
爆款二層自建房別墅設計圖,不追求奢華,建個溫馨實用的家
占地:100平方米
四間兩層農村別墅戶型圖,外觀時尚色調搭配和諧,占地超200平米
占地:212.95平方米
占地170平米2026新款三層別墅設計圖片及設計方案
占地:170平方米
175平大客廳三層別墅房屋設計圖,含外觀造型現代,美觀
占地:175平方米
鄉村一層帶閣樓歐式小別墅,“L”型七字設計戶型
占地:194.218平方米
歐式農村三層小別墅設計圖,占地120平米,客廳中空,空間利用率
占地:120平方米
鄉村三層別墅施工圖紙帶效果圖,田園別墅設計圖紙推薦
占地:178平方米
帶小院七字形一層自建房戶型設計圖,平屋頂圖紙
占地:201.08平方米
架空層設計的農村自建房別墅設計圖,既做車庫又做儲物間,太實
占地:230.62平方米
歐式四層(三層半)獨棟別墅設計圖復式,設計豪華時尚
占地:194平方米
推薦:10套新農村自建房設計圖,2026年最新設計
閱讀次數:4825737次
100套鄉村別墅圖片大全,2026年最新設計
閱讀次數:2492203次
6款農村蓋一層平房的設計圖,10萬元就能建起來
閱讀次數:1852637次
這11個一層農村自建房別墅火爆了朋友圈!我最喜歡戶型十!你呢
閱讀次數:750268次
農村6萬元建一層小別墅圖,你敢相信嗎
閱讀次數:567686次
農村5萬塊就能自建房,6套普通房子設計圖分享,你沒看錯!
閱讀次數:419410次
8套農村漂亮三間平房圖片,非常適合在農村修建!
閱讀次數:411197次
農村自建房化糞池怎么做?附方案及施工過程
閱讀次數:391783次
農村一層三間平房設計圖,告別土氣養老房,讓人忍不住點贊
閱讀次數:350581次
新農村二層樓房圖片造價12萬,挑一套回家建房吧!
閱讀次數:349126次
