
|
現在農村并不像以前那樣臟亂差,空氣清新,白云悠悠,天藍水清,一棟棟別墅拔地而起。你知道哪些別墅外觀好看自住又方便嗎?如果你已經規劃已久還沒有選到心儀的自建房圖紙,那么可以看看這6款即將成為2019年爆款的戶型,如果有一見鐘情的趕緊領回家。 戶型一 房屋基本信息: 開間:12.2米 進深:11.1米 占地面積:139.77平方米 建筑面積:253.3平方米 建筑結構:磚混結構
經典實用的二層農村自建房外觀,真石漆與文化石搭配的巧妙和諧,又是一款農村別墅設計的典范之作。室內布局更注重通透感和舒適感。
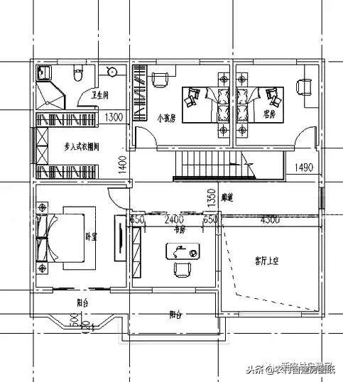
一層:客廳、餐廳、廚房、衛生間、2間臥室 二層:3間臥室、露臺、衛生間 戶型二 房屋基本信息: 開間:10.9米 進深:10.81米 占地面積:93.52平方米 建筑面積:177.98平方米 建筑結構:磚混結構
配色清新淡雅,線條流暢,造型靈動簡約,室內布局井然有序,空間利用率高,大露臺打造奢華生活享受。
一層:客廳、餐廳、廚房、衛生間、臥室 二層:3間臥室、衛生間、休閑區、露臺 戶型三 房屋基本信息: 開間:13.5米 進深:11.7米 占地面積:170.8平方米 建筑面積:332.72平方米 建筑結構:框架結構
雍容華貴的歐式風建筑,簡單的建筑線條,讓它多了一絲現代的灑脫與不凡。室內功能齊全,契合新農村人的居住需求。
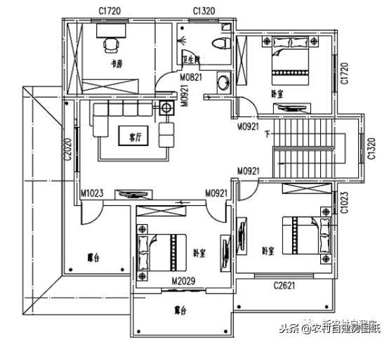
一層:門廳、客廳、廚房、餐廳、2間臥室、衛生間 二層:4間臥室、書房、2個陽臺、休閑區、衛生間 戶型四 房屋基本信息: 開間:10.8米 進深:9.3米 占地面積:100.4平方米 建筑面積:189.82平方米 建筑結構:磚混結構
富有層次的坡屋頂設計,帶來與眾不同的美感,清新的配色讓人眼前一亮。農村若是自建這套戶型,絕對不用擔心撞房。
一層設有大堂、廚房、餐廳、儲物室、臥室、衛生間; 二層設有起居室、主臥室、臥室、書房、儲物室、衛生間。 戶型五 房屋基本信息: 開間:14.34米 進深:11.34米 占地面積:148.92平方米 建筑面積:280.87平方米 建筑結構:框架結構
時尚經典的二層歐式風格,整體造型立體豐富,藍色西瓦屋頂清新簡約,洋溢著青春活力。室內布局功能豐富,滿足居住需求
一層:客廳、臥室、廚房、餐廳、主臥室(附衛生間)、衛生間、車庫; 二層:過廳、臥室附書房、2臥室(附陽臺)、臥室(附衣帽間,衛生間)、衛生間 戶型六 房屋基本信息: 開間:13.5米 進深:12.4米 占地面積:164.29平方米 建筑面積:463.47平方米 建筑結構:框架結構
外形方方正正,四平八穩,全景八角落地窗,大氣美觀,通風采光。屋檐、露臺、門廳飄瓦的層層遞進,營造非同一般的層次感。室內布局潔凈分區,動靜分離,非常人性化。
圖紙之家-專注農村別墅/自建房設計18年,集合國內200余位經驗豐富的設計師,被評為口碑最好的農村建筑設計公司! |

歐式三層樓房設計圖,客廳中空,旋轉樓梯,帶土灶房
占地:206平方米
農村最漂亮平頂三層別墅設計圖,10.5乘11.5米
占地:119.35平方米
簡約偏現代三層別墅設計圖紙及效果圖,鄉村蓋房推薦方案
占地:130平方米左右
10套農村經典二層樓房設計圖紙,多戶型,多尺寸,總有一款適合
占地:多種
230平(單戶115平)雙拼別墅房屋設計圖及效果圖大全
占地:230平方米
130平方米農村兩層別墅圖紙及效果圖12X11米
占地:133平方米
高端三層豪宅別墅設計方案圖,帶地下室,過悠然愜意生活
占地:127.06平方米
開間8米的小戶型二層別墅設計圖,2開間占地不到60平
占地:56平方米左右
架空層的一層三合院別墅設計圖紙,這樣設計太贊了
占地:172.06平方米
2026二層農村新款別墅戶型圖,占地不到110平米
占地:110平方米
農村平屋頂中式合院設計圖,帶車庫帶庭院
占地:210平方米
農村新款二層中式別墅設計圖效果圖,帶堂屋設計
占地:144平方米
最新三層農村別墅設計圖紙,推薦農村自建
占地:106平方米
135平復式別墅房屋設計圖,外觀時尚、漂亮
占地:135平方米
大氣自建三層雙拼別墅戶型圖方案,完美的戶型就是它
占地:287平方米
120平農村三層自建房屋設計圖,旋轉樓梯復式別墅戶型方案
占地:119.23平方米
二層新中式別墅設計施工圖,廚房在配房,占地140平米
占地:141平方米
150平農村三層歐式別墅設計圖紙,盡顯豪華與精致,讓人羨慕不已
占地:147.62平方米
鄉村一層帶閣樓歐式小別墅,“L”型七字設計戶型
占地:194.218平方米
開間20米雙拼別墅三層設計圖,兄弟合建省時省力又省心
占地:205.8平方米
推薦:10套新農村自建房設計圖,2026年最新設計
閱讀次數:4825737次
100套鄉村別墅圖片大全,2026年最新設計
閱讀次數:2492203次
6款農村蓋一層平房的設計圖,10萬元就能建起來
閱讀次數:1852637次
這11個一層農村自建房別墅火爆了朋友圈!我最喜歡戶型十!你呢
閱讀次數:750268次
農村6萬元建一層小別墅圖,你敢相信嗎
閱讀次數:567686次
農村5萬塊就能自建房,6套普通房子設計圖分享,你沒看錯!
閱讀次數:419410次
8套農村漂亮三間平房圖片,非常適合在農村修建!
閱讀次數:411197次
農村自建房化糞池怎么做?附方案及施工過程
閱讀次數:391783次
農村一層三間平房設計圖,告別土氣養老房,讓人忍不住點贊
閱讀次數:350581次
新農村二層樓房圖片造價12萬,挑一套回家建房吧!
閱讀次數:349126次
