
|
窮人的孩子早當家,以前農村的孩子只能在電視上看到城里的高樓大廈和豪華別墅,當時只能羨慕。現在農村的孩子都在城里混得風生水起,已經有足夠的能力讓自己和家人住上更好的別墅了,下面是武漢90后小伙回家蓋的三層別墅。
別墅正面效果圖 武漢90后小伙郭先生,畢業后就在廣州做IT俗稱“碼農”,幾年的奮斗幾乎禿頂,但聽說要蓋別墅了,村里人排著隊給介紹對象。
下面是具體的土建過程
基礎施工
地理環境還是比較舒適,周圍綠樹環繞,沒有汽車的尾氣和高樓大廈。
屋頂施工,天溝細節做得非常細致。
房子的主體用的是磚混結構,由于工作忙,沒有拍下細致的圖片。
主體外墻施工,外墻抹灰,左側拱形落地窗,右側玻璃窗也有很好的采光性。
別墅基本信息
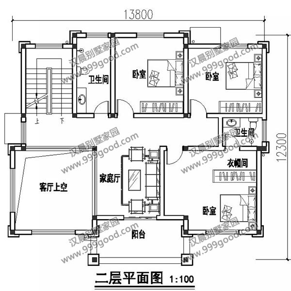
平面功能:室內的布局非常的實用,進門是堂屋,左邊客廳,右邊茶室,用于招待客人非常有面子。
農村親朋好友喜歡串門,臥室多設計,衛生間公衛和獨衛同時兼并,逢年過節來客也不怕。
![]()
圖紙之家-專注農村別墅/自建房設計18年,集合國內200余位經驗豐富的設計師,被評為口碑最好的農村建筑設計公司! |

新中式風格二層住宅設計圖,農村自建房不土氣
占地:144.5平方米
180平方米新農村三層別墅設計圖紙,效果圖+全套cad施工圖
占地:180平方米
二層農村房子圖片及全套施工圖紙,占地150平面左右
占地:150平方米
140平米一層農村自建房設計圖,好看不貴簡約耐看
占地:141.12平方米
農村一層別墅設計圖,3室2廳帶書房,占地面積200平米左右
占地:200平方米
農村四層樓房設計圖,復式結構、客廳中空,外觀效果圖+全套圖
占地:130平方米
面寬不到8米的農村二層半別墅建筑圖紙及效果圖
占地:96平方米左右
275平方米新農村雙拼樓中樓戶型別墅設計圖紙及效果圖21X14米
占地:275平方米
二層復式農村別墅設計圖,進深12米,戶型堪稱完美
占地:193.2平方米
農村120方三層自建房子圖,好看又不貴的三層農村別墅
占地:120平方米
兩層中式三合院別墅設計圖紙,堂屋套臥全都有,蓋一棟面子十足
占地:181.93平方米
農村二間二層房子設計方案圖,造型小巧精致,10米乘12米
占地:110平方米
四間兩層別墅房屋設計圖,外觀效果圖好看
占地:235平方米
造價25萬農村二層小別墅設計圖,外觀效果圖美觀、精致
占地:165平方米
開間20米雙拼別墅三層設計圖,兄弟合建省時省力又省心
占地:205.8平方米
經濟小戶型二層中式四合院(三合院)設計圖紙,帶堂屋和庭院
占地:143.544平方米
二層兄弟雙拼農村別墅圖新中式,兄弟這樣建房,大氣省錢
占地:143.412平方米
精致農村別墅圖,150平米一層三合院設計,四臥二廳舒適宜居
占地:149.43平方米
共用中堂雙拼兄弟三層別墅設計圖,簡歐式風格
占地:230平方米
一層農村必蓋戶型設計方案,養老自住兩相宜,經濟實惠又耐用!
占地:150.36平方米
推薦:10套新農村自建房設計圖,2026年最新設計
閱讀次數:4825737次
100套鄉村別墅圖片大全,2026年最新設計
閱讀次數:2492203次
6款農村蓋一層平房的設計圖,10萬元就能建起來
閱讀次數:1852637次
這11個一層農村自建房別墅火爆了朋友圈!我最喜歡戶型十!你呢
閱讀次數:750268次
農村6萬元建一層小別墅圖,你敢相信嗎
閱讀次數:567686次
農村5萬塊就能自建房,6套普通房子設計圖分享,你沒看錯!
閱讀次數:419410次
8套農村漂亮三間平房圖片,非常適合在農村修建!
閱讀次數:411197次
農村自建房化糞池怎么做?附方案及施工過程
閱讀次數:391783次
農村一層三間平房設計圖,告別土氣養老房,讓人忍不住點贊
閱讀次數:350581次
新農村二層樓房圖片造價12萬,挑一套回家建房吧!
閱讀次數:349126次
