
|
如今的農村,真的可以說是變化巨大,這也從側面反映了咱們生活水平的提高,拔地而起的別墅就是最好的證明。 隨著農村生活水平的提高,以前的住房不管是在實用上還是質量上,都再也滿足不了現代人的需求,于是家家戶戶都開始建新房。 圖紙詳情 層數:四層 結構形式:框架結構 主體造價:38-43萬 開間:12米 進深:10.9米 占地面積:136.35平方米 建筑面積:519.03平方米 效果圖:
這套戶型相對來說布局方正,二三層的規劃結構一樣,客廳還附帶了生活小陽臺,是較為理想的豪華別墅建房圖紙選擇。 建房實拍:
別墅毛坯房,正準備裝修
別墅看上去簡潔大氣,經典有格調。效果圖還原度99%
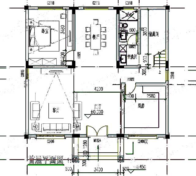
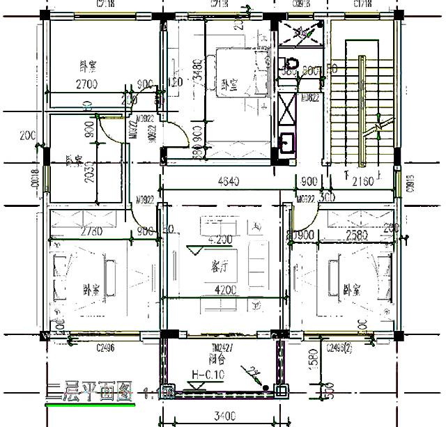
左右兩面連通體落地窗大氣通透 功能設計及部分平面圖: 一 層:門廳、客廳、餐廳、廚房、臥室、衛生間、儲藏間 二 層:客廳(帶陽臺)、臥室×5、衛生間 三 層:客廳(帶陽臺)、臥室×5、衛生間 四 層:臥室×4、衛生間、露臺花園
一層平面圖
二層平面圖
圖紙之家-專注農村別墅/自建房設計18年,集合國內200余位經驗豐富的設計師,被評為口碑最好的農村建筑設計公司! |

300平大戶型豪華三層別墅設計圖,帶總統套房
占地:300平方米
230平方米新農村二層自建別墅設計圖紙帶外觀圖,20X11米
占地:227平方米
備受好評二層半歐式別墅設計圖,五開間對稱設計,布局合理又實
占地:192.48平方米
獨棟經濟型二層小別墅房屋設計圖,含全套施工圖效果圖
占地:多種戶型
農村40萬房子圖片外觀設計效果圖,帶地下室,外觀時尚大氣
占地:110平方米
農村七字形獨棟一層別墅設計圖,設計感十足
占地:274.51平方米
140平三層別墅房屋設計圖,含外觀圖片,外觀現代時尚
占地:143平方米
10×12米三層別墅戶型,挑空大客廳設計,圈粉無數的爆款方案
占地:120平方米
農村中式一層三合院自建房戶型方案圖,帶庭院設計
占地:222平方米
復式大客廳帶旋轉樓梯二層別墅設計圖,大廳很闊氣
占地:193平方米左右
中式古風別墅設計圖,一層三合院設計,經濟舒適,時尚與傳統的
占地:275.7平方米
帶車庫的別墅設計圖紙,外觀效果圖二層半設計,全套建筑施工圖
占地:174平方米左右
農村一層房屋設計圖,自建一層房子圖紙推薦
占地:200平方米
農村自建房鄉村超現代平屋頂二層別墅圖設計方案,造價低,施工
占地:142平方米
現代一層(帶悶頂)別墅住宅設計圖,外觀現代時尚
占地:160平方米
面寬8米多小開間三層農村別墅設計圖,占地不足百平
占地:95.21
120平二層別墅房屋設計圖,造型美觀、現代
占地:120平方米
農村二層半雙拼別墅設計圖,客廳中空,帶大露臺
占地:270平方米
現代三層農村房屋設計圖紙及效果圖,帶全套cad建筑圖
占地:95平方米
開間8米的小戶型二層別墅設計圖,2開間占地不到60平
占地:56平方米左右
推薦:10套新農村自建房設計圖,2026年最新設計
閱讀次數:4825737次
100套鄉村別墅圖片大全,2026年最新設計
閱讀次數:2492203次
6款農村蓋一層平房的設計圖,10萬元就能建起來
閱讀次數:1852637次
這11個一層農村自建房別墅火爆了朋友圈!我最喜歡戶型十!你呢
閱讀次數:750268次
農村6萬元建一層小別墅圖,你敢相信嗎
閱讀次數:567686次
農村5萬塊就能自建房,6套普通房子設計圖分享,你沒看錯!
閱讀次數:419410次
8套農村漂亮三間平房圖片,非常適合在農村修建!
閱讀次數:411197次
農村自建房化糞池怎么做?附方案及施工過程
閱讀次數:391783次
農村一層三間平房設計圖,告別土氣養老房,讓人忍不住點贊
閱讀次數:350581次
新農村二層樓房圖片造價12萬,挑一套回家建房吧!
閱讀次數:349126次
