
|
別墅的美在于它以獨特的設計,和優雅的配色,讓人一見傾心,看一眼就能深刻記在腦海里,回味無窮。今天小編給大家分享一款12×10復式二層別墅圖紙,兩種配色方案任選,外觀布局無可挑剔,一起來看看。 圖紙詳情 層數: 二層 結構形式: 磚混結構 主體造價: 20萬 開間: 11.8米 進深: 10.3米 占地面積: 126平方米 建筑面積: 228平方米 這套別墅設有門廊,方形柱子柱和花瓶式欄桿歐式風十足,二樓寬敞的露臺是整個房屋的設計亮點,讓整個建筑有了層次感。一二層外墻色彩深淺逐層漸變,配色優雅,有以下連中配色方案:
配色方案1 方案1的一層外墻使用比較鮮艷的顏色搭配,屋頂寶藍色裝飾,腰線、窗套使用白色裝飾,色彩活躍優雅。
配色方案2 方案2配色與方案1略有不同,二樓使用灰色真石漆搭配,增添了一些穩重大氣的氣息。 設計功能
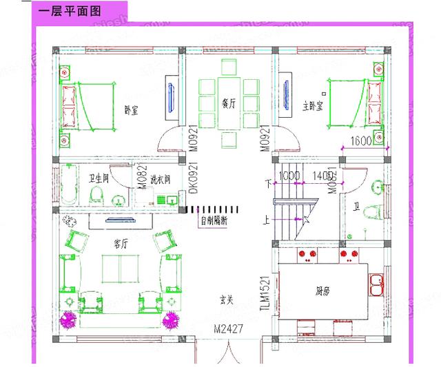
一層平面圖 一 層: 2臥室、客廳、衛生間、洗衣間、廚房、餐廳
二層平面圖 二 層: 3臥室、2衛生間、2陽臺、客廳、客廳上空 圖紙之家-專注農村別墅/自建房設計18年,集合國內200余位經驗豐富的設計師,被評為口碑最好的農村建筑設計公司! |

小戶型農村三層房屋設計圖,占地120平米,布局非常合理,外表典
占地:120平方米
16x14米三層雙拼別墅設計圖,外觀精致大氣內里實用,兄弟建房上
占地:217.28平方米
農村平屋頂中式合院設計圖,帶車庫帶庭院
占地:210平方米
面寬8米多的三層農村別墅設計圖,小開間宅基地推薦
占地:112.82平方米
復式別墅新農村二層房屋設計圖紙,屋頂錯落有致
占地:多戶型可選
現代三層農村房屋設計圖紙及效果圖,帶全套cad建筑圖
占地:95平方米
超漂亮的二層別墅設計圖,外觀對稱設計,建好很大氣
占地:255平方米
進深15米新農村三層房屋設計圖紙,農村住宅設計圖集
占地:128平方米
170平米自建三層房屋別墅設計圖紙及效果圖
占地:170平米
現代風平屋頂三層半農村小別墅設計圖,面寬僅7米
占地:90平方米
新農村中式三層四合院別墅設計戶型圖,農村自建四合院效果圖
占地:多種戶型
90平方米新農村住宅設計二層小別墅設計圖紙11x9米
占地:90平方米
二層門面房自建小樓設計圖紙及效果圖,占地150平
占地:151.83平方米
時尚四開間二層農村別墅,經典大氣,引領建房新潮流!
占地:159.6平方米
新農村復試兩層半樓房設計圖,帶大露臺,簡單經濟實用大氣
占地:190平方米
現代一層(帶悶頂)別墅住宅設計圖,外觀現代時尚
占地:160平方米
最漂亮的農村二層小樓圖,平屋頂的設計對于農村來說尤為便利
占地:170平方米
面寬20多米二層新中式雙拼別墅設計圖,外觀漂亮時尚
占地:246.66平方米左
歐式豪華三層別墅設計圖,占地面積170平米,高端大氣帶露臺
占地:170平方米
135平鄉村三層復式樓房設計圖,自建房推薦
占地:135平方米
推薦:10套新農村自建房設計圖,2026年最新設計
閱讀次數:4825737次
100套鄉村別墅圖片大全,2026年最新設計
閱讀次數:2492203次
6款農村蓋一層平房的設計圖,10萬元就能建起來
閱讀次數:1852637次
這11個一層農村自建房別墅火爆了朋友圈!我最喜歡戶型十!你呢
閱讀次數:750268次
農村6萬元建一層小別墅圖,你敢相信嗎
閱讀次數:567686次
農村5萬塊就能自建房,6套普通房子設計圖分享,你沒看錯!
閱讀次數:419410次
8套農村漂亮三間平房圖片,非常適合在農村修建!
閱讀次數:411197次
農村自建房化糞池怎么做?附方案及施工過程
閱讀次數:391783次
農村一層三間平房設計圖,告別土氣養老房,讓人忍不住點贊
閱讀次數:350581次
新農村二層樓房圖片造價12萬,挑一套回家建房吧!
閱讀次數:349126次
