
|
蓋一棟房子并不容易,各方面都要滿足家庭成員的需求才行,這樣一家人住在里面也會比較和諧快樂,如果僅滿足一人之需,那么一棟房子建造起來其實也沒多大意義了,今天小編給大家分享一款30萬以內三層帶車庫農村自建房,四面采光,這布局男女老少通吃!一起來看看。 圖紙詳情 層數: 三層結構形式: 磚混結構主體造價: 27萬 開間: 11.5米進深: 12.5米占地面積: 122.7平方米建筑面積: 317.1平方米
效果圖 這款是復式三層自建房設計,帶私家車庫,寬大的廚房、餐廳,輕松的用餐空間,內置室內景觀。外立面恢宏大氣,保證最大化的家居空間,功能分區明顯,大露臺設計,恣意享受陽光生活。這樣時尚大氣的外觀加上符合農村生活習慣的布局,四面采光,相信男女老少都無法拒絕! 設計功能
一 層:玄關、客廳、臥室、廚房、餐廳、衛生間、室內景觀、車庫
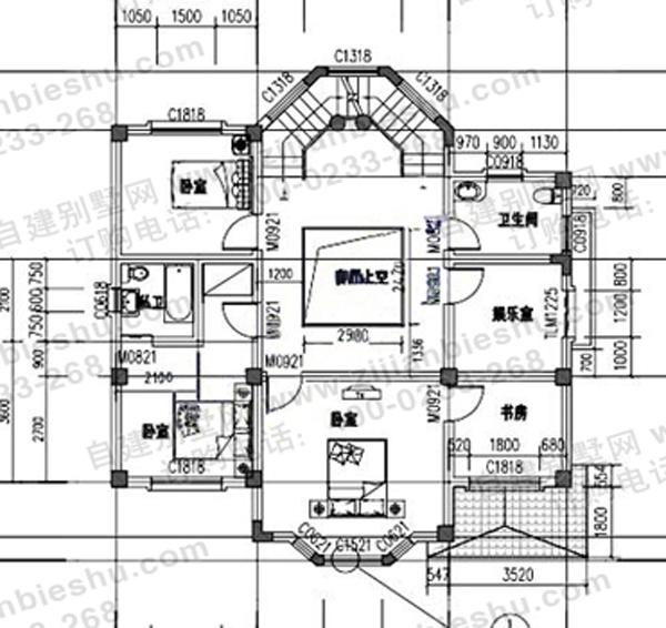
二 層:臥室(附書房)、臥室(附衛生間)、臥室、娛樂室(附陽臺)、衛生間
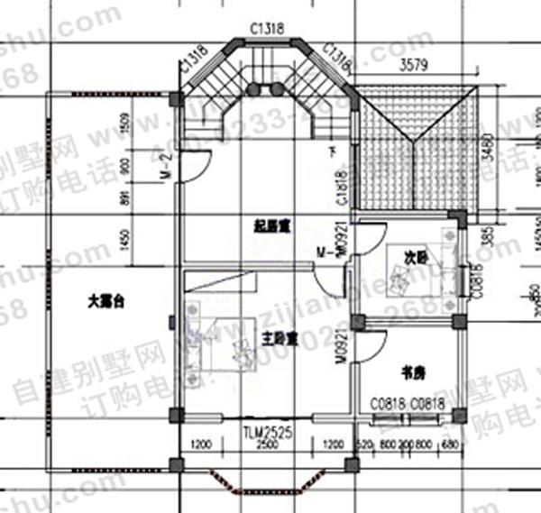
三 層:客廳、主臥、(附書房,陽臺)、次臥、露臺 圖紙之家-專注農村別墅/自建房設計18年,集合國內200余位經驗豐富的設計師,被評為口碑最好的農村建筑設計公司! |

二層歐式別墅設計圖,挑空客廳+柴火灶,12.5米乘12米
占地:131.25平方米
150平方米農村二層磚混結構別墅施工建筑設計圖,平頂設計
占地:150平方米
二開間二層別墅設計圖,面寬9米,不可多得的好選擇!
占地:93.24平方米
210平方米新農村三層雙拼全套別墅設計圖紙帶效果圖
占地:207.25平方米
農村建房的“面子天花板”!新中式簡歐結合三層別墅,進門就被
占地:225.98平方米
帶大露臺二層現代風別墅設計圖,去繁從簡,好看不過時
占地:122.25平方米
帶車庫,帶露臺的三層復式樓房設計圖,新農村房屋方案推薦
占地:140平方米
漂亮實用三層自建別墅設計圖紙,超高的性價比
占地:160平方米
徽派3層農村小別墅設計圖,廣東新農村住宅設計圖集
占地:110平方米
實用三層新農村住宅設計圖,鄉村別墅設計圖(含外觀效果圖)
占地:102.34平方米
雙戶168平方米小戶型新農村雙拼樓房設計建筑圖紙帶外觀圖
占地:168平方米
一層三間別墅設計圖,經濟實用 + 好看不貴,養老自住都適配
占地:119.31平方米
四層豪華歐式別墅自建樓房設計圖紙,帶效果圖和全套施工圖
占地:300平方米
農村四層復式房屋設計圖紙,占地105平方米預算35萬左右
占地:105平方米
外觀高檔大氣的三層別墅房屋設計圖,高端別墅設計展示
占地:147平方米
帶車庫四層別墅外觀效果圖及設計圖紙,戶型方正通透
占地:115平方米
農村五間房子設計圖,大戶型別墅設計圖推薦
占地:240平方米
新中式三層樓房設計圖紙,帶地下室,地下車庫,帶電梯
占地:230平方米
現代風格三層別墅設計圖紙和效果圖,農村自建精選
占地:129平方米
農村二層別墅設計圖,帶外觀效果圖,兄弟自建推薦
占地:多種戶型
推薦:10套新農村自建房設計圖,2026年最新設計
閱讀次數:4825737次
100套鄉村別墅圖片大全,2026年最新設計
閱讀次數:2492203次
6款農村蓋一層平房的設計圖,10萬元就能建起來
閱讀次數:1852637次
這11個一層農村自建房別墅火爆了朋友圈!我最喜歡戶型十!你呢
閱讀次數:750268次
農村6萬元建一層小別墅圖,你敢相信嗎
閱讀次數:567686次
農村5萬塊就能自建房,6套普通房子設計圖分享,你沒看錯!
閱讀次數:419410次
8套農村漂亮三間平房圖片,非常適合在農村修建!
閱讀次數:411197次
農村自建房化糞池怎么做?附方案及施工過程
閱讀次數:391783次
農村一層三間平房設計圖,告別土氣養老房,讓人忍不住點贊
閱讀次數:350581次
新農村二層樓房圖片造價12萬,挑一套回家建房吧!
閱讀次數:349126次
