
|
20萬30萬40萬也能建別墅?很多人不相信。因為城里房價動則幾萬一平起,所以很多人理所應當的認為房子是很貴的,別墅的話那就更不敢想像了。其實城里的房子貴主要是土地貴,而農村的宅基地家家都有,不要錢,只要花建房子的費用。而一般農村建套房子,一層的主體10幾萬,二層的20來萬,這個價格很正常,上個有個朋友說他們那邊的房子磚混結構才700一平,對于那些1200-1600一平的地區也是不能想像的。每個地區的材料、人工造價都不同,發達地區貴一些,基本上都是1000一平以上,一些偏遠地區700-800一平也很正常。總的來說農村建房子真的沒有想像的那么貴,建個主體要不了多少,后期的裝修和美化是大頭,所以也很多的農村人,回家先把房子的主體建好,過兩年再慢慢裝修。今天給大家推薦一些漂亮的別墅,含施工案例,雖然造價便宜,但建出來的效果堪比城里的豪宅。 20萬的農村別墅戶型一
基本信息 開間:10.5米 進深:9.9米 占地面積:103平方 建筑面積:207平方 平面圖
戶型二
基本信息 開間:11.8米 進深:8.6米 占地面積:103.4平方 建筑面積:206.79平方
30萬的農村別墅戶型一
基本信息 開間:11.34米 進深:13.31米 占地面積:136.4平方 建筑面積:254.44平方 平面圖
施工案例一
施工案例二
施工案例三
戶型二
基本信息 開間:12.5米 進深:11米 占地面積:130平方 建筑面積:248平方 平面圖
施工案例一
施工案例二
施工案例三
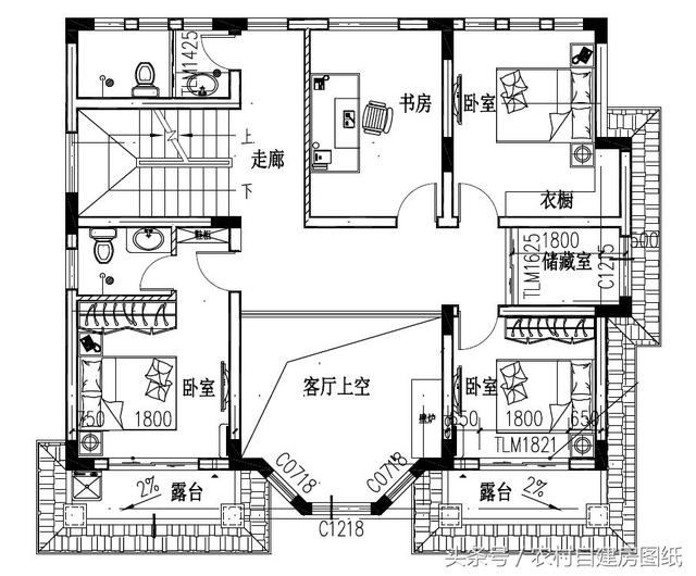
戶型三
基本信息 開間:11.5米 進深:10.1米 占地面積:109.68平方 建筑面積:287.82平方 平面圖
施工案例一
施工案例二
40萬的農村別墅戶型一
基本信息 開間:11.92米 進深:12.8米 占地面積:148平方 平面圖
施工案例
戶型二
基本信息 開間:11米 進深:12米 占地面積:138.34平方 建筑面積:351.69平方 平面圖
施工案例一
施工案例二
施工案例三
戶型三
基本信息 開間:12.9米 進深:11.6米 占地面積:130平方 建筑面積:310平方 平面圖
施工案例一
施工案例二
施工案例三
這么多的小別墅,原來都悄悄的在農村建起來了,造價不高,建出來比傳統的農村房子漂亮,時尚,大氣,功能更適合現代的生活方式。能夠住在這樣的鄉村別墅里,就算城里有2套房子,那也是萬萬不能換的。 圖紙之家-專注農村別墅/自建房設計18年,集合國內200余位經驗豐富的設計師,被評為口碑最好的農村建筑設計公司! |

帶車庫二層農村豪華別墅設計圖,主體25萬左右
占地:170平方米左右
占地110平米兩層半農村房子設計圖,簡單實用
占地:110.25平方米
新中式二層農村小樓房設計圖,戶型圖方正,外觀大氣
占地:143平方米
2026年獨棟三層雙拼別墅戶型圖,總占地面積300平方米左右
占地:300平方米
帶地下室三間二層農村自建房設計圖,現代平屋頂設計
占地:99.98平方米
農村10萬元一層小別墅設計圖紙,戶型實用又合理
占地:130平方米
140平方米一層歐式新農村平房設計圖,主體造價僅11萬
占地:141.218平方米
農村三層樓房圖造價26萬,客廳中空,占地90平米
占地:90平方米
現代風格建房圖紙二層別墅設計方案,外觀百看不厭
占地:多戶型可選
適合回鄉建的三合院平房設計圖,舒適又接地氣
占地:213.96平方米
地中海風格二層別墅房屋設計圖,帶外觀效果圖
占地:150平方米
新式帶挑空客廳三層鄉村別墅設計圖,占地170平左右
占地:170平方米
三間三層房子設計圖,高端三層樓房設計圖,三層兩個大露臺
占地:170平方米
開間9到10米簡約別墅設計圖紙帶效果圖,全套別墅設計方案
占地:122平方米
豪華二層別墅設計圖紙及別墅圖片,旋轉樓梯,內設佛堂,大大落
占地:260平方米
小戶型三層現代風別墅設計圖,可別再說農村不適合現代風了
占地:92.34平方米
農村4間2層樓房設計圖,戶型方正,四平八穩的二層農村別墅
占地:180平方米
一層農村自建房別墅設計方案,左右對稱布局好
占地:154平方米
單棟多戶三層別墅設計圖,適合兩三家一起住
占地:125平米
90平方米農村二層房屋設計施工圖紙及效果圖,11x8.5米
占地:90平方米
推薦:10套新農村自建房設計圖,2026年最新設計
閱讀次數:4825737次
100套鄉村別墅圖片大全,2026年最新設計
閱讀次數:2492203次
6款農村蓋一層平房的設計圖,10萬元就能建起來
閱讀次數:1852637次
這11個一層農村自建房別墅火爆了朋友圈!我最喜歡戶型十!你呢
閱讀次數:750268次
農村6萬元建一層小別墅圖,你敢相信嗎
閱讀次數:567686次
農村5萬塊就能自建房,6套普通房子設計圖分享,你沒看錯!
閱讀次數:419410次
8套農村漂亮三間平房圖片,非常適合在農村修建!
閱讀次數:411197次
農村自建房化糞池怎么做?附方案及施工過程
閱讀次數:391783次
農村一層三間平房設計圖,告別土氣養老房,讓人忍不住點贊
閱讀次數:350581次
新農村二層樓房圖片造價12萬,挑一套回家建房吧!
閱讀次數:349126次
