
|
隨著國家經濟的快速發展,現在人們的生活水平也越來越高,很多人在外邊掙錢之后,就會回到農村老家,把自家的老房子翻新或者重蓋,小日子別提多美了! 今天給大家推薦2套農村兩層簡歐別墅,148平米只要25萬就能建好,你心動了嗎? 第一套
正面效果圖
背面效果圖 占地面積:14.0m*10.6m,148平方米左右; 建筑層高:二層; 建筑高度:9.36米(含屋頂); 設計功能: 住宅一層戶型:門廳、客廳(挑高)、臥室(衣帽間)、廚房、餐廳、衛生間 住宅二層戶型:起居室、主臥(帶衛生間)、臥室(帶衣帽間)、臥室、衛生間、屋頂花園
一層平面圖
二層平面圖 第二套
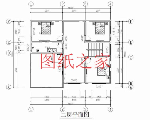
別墅效果圖 占地面積:13.3m*11.0m,146平方米左右; 建筑層高:二層; 建筑高度:9.30米(含屋頂); 設計功能: 住宅一層戶型:客廳、臥室x2、廚房、餐廳、衛生間; 住宅二層戶型:臥室x3、衛生間、屋頂花園(臥室可以作為書房使用);
一層平面圖
二層平面圖 這幾套別墅的設計圖,你最喜歡哪一套? 圖紙之家-專注農村別墅/自建房設計18年,集合國內200余位經驗豐富的設計師,被評為口碑最好的農村建筑設計公司! |

鄉下三層大氣房子設計圖,外觀挺高大上的,主體29萬多
占地:132.48平方米
最美二層樓別墅圖片大全及全套建筑設計圖紙,20萬左右
占地:140平方米
農村四間兩層別墅房屋設計圖,含外觀圖片
占地:160平方米
15×10米農村二層四合院自建房戶型圖,小型四合院設計圖
占地:150平方米
開間12米的三層簡歐別墅設計圖,農村建房布局實用住的舒服
占地:108.15平方米
農村小戶型三層復式樓房設計圖,100平左右
占地:100平方米
經典20萬左右二層別墅設計圖紙,造型頗具設計感的小別墅
占地:多戶型可選
90平方米新農村住宅設計二層小別墅設計圖紙11x9米
占地:90平方米
農村18萬元二層小樓圖紙,漂亮實用的農村二層樓房設計圖
占地:140平方米
帶院子的四間二層別墅房屋設計圖,帶獨立車庫
占地:350平方米
美式風格鄉村兩層小別墅自建房設計圖,外觀圖好看
占地:150平方米
經典三層小別墅設計圖紙(效果圖+全套cad建筑圖),新農村自建
占地:120平方米
20萬左右農村雙拼別墅住宅設計圖,簡單小戶型設計
占地:120平方米
農村二間二層房子設計方案圖,造型小巧精致,10米乘12米
占地:110平方米
帶堂屋設計一層三合院設計圖,白墻黛瓦古韻悠悠,比高層舒服接
占地:179.37平方米
簡單時尚二層住宅設計圖紙,簡單的設計,不平凡的視覺感受
占地:110平方米
160平方米二層小別墅設計圖紙及效果圖大全,12X13米
占地:162平方米
新中式三層雙拼別墅設計圖,外觀圖片美觀、大氣
占地:176平方米
面寬15米大氣的農村二層復式戶型別墅設計圖紙及外觀圖片
占地:173.28平方米
豪華雙拼三層別墅設計圖,在農村建一棟,將是最靚的風景!
占地:186.85平方米
推薦:10套新農村自建房設計圖,2026年最新設計
閱讀次數:4825737次
100套鄉村別墅圖片大全,2026年最新設計
閱讀次數:2492203次
6款農村蓋一層平房的設計圖,10萬元就能建起來
閱讀次數:1852637次
這11個一層農村自建房別墅火爆了朋友圈!我最喜歡戶型十!你呢
閱讀次數:750268次
農村6萬元建一層小別墅圖,你敢相信嗎
閱讀次數:567686次
農村5萬塊就能自建房,6套普通房子設計圖分享,你沒看錯!
閱讀次數:419410次
8套農村漂亮三間平房圖片,非常適合在農村修建!
閱讀次數:411197次
農村自建房化糞池怎么做?附方案及施工過程
閱讀次數:391783次
農村一層三間平房設計圖,告別土氣養老房,讓人忍不住點贊
閱讀次數:350581次
新農村二層樓房圖片造價12萬,挑一套回家建房吧!
閱讀次數:349126次
