
|
最近有朋友向小編反應,因為家里的宅基地受限,所以希望推薦一些窄開間的自建房,開間小、進深大,如果沒有專業設計師設計,建出來的房屋外表有可能不倫不類,內部空間的設計也可能會存在問題,畢竟房子是要住幾十年的,還是要好好設計一下,至少要外部美觀,住起來也要舒適。
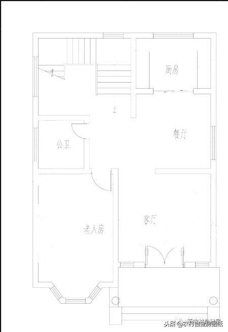
房屋基本信息: 開間:8米 進深:11.3米 占地面積:99.64平方米 建筑面積:203.32平方米 主體造價:18萬—28萬 外觀精致的一套二層別墅,洋紅色的屋頂一定是村子里最矚目的風景,墻體上半部分是使用清新的淡黃色,一層外墻則是使用深色涂料,主要也是考慮耐臟性,符合農村家庭的生活習慣。左側窗戶設計精美高端,有畫龍點睛的既視感。臺階入戶,視野開闊,弧形拱門,精美大氣,羅馬柱氣派十足,一切都在彰顯著主人家非同凡響的品味。
一層設計客廳、餐廳、廚房、公衛、老人房,一樓為平時的生活場所,所以設置了簡單的功能區,臥室主要是給老人家居住,雖然沒有設計內衛,但是公共衛生間就在老人房旁,考慮的很周到。餐廳遠離廚房,也避免了油鹽對生活區的污染。
二樓設計臥室、主臥(帶露臺)、臥室(帶衛生間)、公衛,帶露臺的臥室可以給年輕夫妻居住,增加了生活的小情趣,平時還可以在這里擺上兩張小桌小椅,朋友來了小酌一杯,或者吃個下午茶,別提有多么愜意了。帶內衛的臥室可以給家里的小朋友住,也可以用來招待客人,都非常方便。 如果你覺得這樣的設計過于單調,也可以根據自己的需求來設計功能房,或者家里人有不同的想法,根據自己的家庭情況重新構思。 圖紙之家-專注農村別墅/自建房設計18年,集合國內200余位經驗豐富的設計師,被評為口碑最好的農村建筑設計公司! |

2026新款新式農村50萬三層別墅圖片,帶地下室,美觀大氣
占地:130平方米左右
一層中式四合院別墅設計方案圖,含外觀效果圖
占地:360平方米含院子
三層新中式別墅建筑設計圖紙及圖片,11.66m*9.76m,典雅耐看
占地:114平方米
簡歐風格三層別墅設計圖,外觀看起來很高端、上檔次
占地:139平方米
農村三層雙拼別墅戶型圖及全套施工圖紙,帶書房,帶衣帽間
占地:260平方米
新農村二層客廳挑高樓房設計圖,外觀歐式風格
占地:178平方米
農村兩間三層房屋設計圖,含外觀圖片
占地:120平方米
大面寬一層別墅設計圖紙,新中式風格兩款戶型
占地:多戶型可選
一層中式七字型房屋設計圖,帶院子經典設計,耐看不過時
占地:163.18平方米
農村三層別墅新款圖片及戶型設計圖紙大全,110平簡歐風格
占地:110平方米左右
二層農村房子圖片及全套施工圖紙,占地150平面左右
占地:150平方米
歐式三層小洋樓設計圖,歐式最美三層別墅外觀效果圖
占地:124.28平方米
堂屋共用的三層雙拼別墅設計圖,總占地面積245平米
占地:245平方米
農村四間二層別墅設計圖,七室二廳帶車庫,室內寬敞鄰居都羨慕
占地:217.1平方米
農村三層半別墅設計圖及外觀效果圖,三層半樓房設計方案推薦
占地:100平方米
大開間小進深的一層別墅設計圖,進深僅8.7米,獨立餐廚照樣美觀
占地:130.32平方米
135平方米新農村三層別墅設計圖紙,外觀效果圖很漂亮
占地:134平方米
105平一層簡單農村別墅設計圖,造價8萬左右
占地:105平方米
陽臺封閉的簡約實用二層別墅設計圖,15x12.8米
占地:165平方米
農村二層樓房設計圖帶外觀圖片,造價20多萬,13.3x11
占地:146平方米
推薦:10套新農村自建房設計圖,2026年最新設計
閱讀次數:4825737次
100套鄉村別墅圖片大全,2026年最新設計
閱讀次數:2492203次
6款農村蓋一層平房的設計圖,10萬元就能建起來
閱讀次數:1852637次
這11個一層農村自建房別墅火爆了朋友圈!我最喜歡戶型十!你呢
閱讀次數:750268次
農村6萬元建一層小別墅圖,你敢相信嗎
閱讀次數:567686次
農村5萬塊就能自建房,6套普通房子設計圖分享,你沒看錯!
閱讀次數:419410次
8套農村漂亮三間平房圖片,非常適合在農村修建!
閱讀次數:411197次
農村自建房化糞池怎么做?附方案及施工過程
閱讀次數:391783次
農村一層三間平房設計圖,告別土氣養老房,讓人忍不住點贊
閱讀次數:350581次
新農村二層樓房圖片造價12萬,挑一套回家建房吧!
閱讀次數:349126次
