
|
據小編的經驗來看,以往每次發大宅地豪華別墅的時候總有網友在評論說,等著被拆吧,哪里還能蓋這么大宅地。所以小面寬戶型在農村很受歡迎,不知道怎么建好看的,下面這2棟就是參考。
總建筑設有 5臥室、1餐廳、1廚房、3客廳、4衛生間、堂屋、旋轉樓梯、1書房、1棋牌室、1更衣室、挑空客廳。
戶型延續了小面寬除去復雜的布局結構,以簡約形式連接空間的宗旨。盡量減少實墻的隔離,注重公共區域的開闊和實用性。
第二款面寬稍大于進深的別墅,這么豪氣的美觀戶型造價卻不到30萬,怎么做到的?
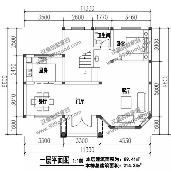
平面圖:總的建筑設計有 5臥室、1餐廳、1廚房、3衛生間、1客廳、1書房,露臺。
進門有臺階,中間為門廳,遵循建筑上的風水特點,將樓梯設置為從客廳處上去。廚房后面有空地可以做成土灶房。
二層的露臺可以根據實際需求進行改進,臥室空間布置比較密集。 ![]() 圖紙之家-專注農村別墅/自建房設計18年,集合國內200余位經驗豐富的設計師,被評為口碑最好的農村建筑設計公司! |

五開間一層農村平房設計圖,200平米大戶型,五間臥房足夠用了
占地:200.7平方米
農村4間2層樓房設計圖,帶車庫,外觀時尚,帶屋頂花園
占地:210平方米
100平方三層樓房設計圖及圖片,戶型設計簡約時尚
占地:100平方米
簡單二層農村別墅設計圖,占地適中,簡約造型,實用又經濟!
占地:128.4平方米
四開間一層半別墅設計圖,帶閣樓設計的戶型方案
占地:190.7平方米
漂亮的農村三層小樓房設計圖,簡單大氣,帶車庫
占地:150平方米
110平方米農村兩層別墅設計效果圖及圖紙,12X12米
占地:110平方米
16米乘11米接地氣農村二層自建房圖,帶配房設計
占地:149.8平方米
農村二層復式小別墅設計,進深12米,農村建房最受歡迎的款
占地:149.096 平方
農村四間二層別墅設計方案圖,外觀精致、時尚
占地:152平方米
三層新農村別墅設計圖片及全套圖紙,外形對稱,帶露臺,這個戶
占地:160平方米
農村一層養老別墅設計圖,14.8x17.9米,戶型對稱,實用布局
占地:193平方米
帶車庫的別墅設計圖紙,外觀效果圖二層半設計,全套建筑施工圖
占地:174平方米左右
好評不斷二層簡歐房屋設計圖,占地150平,農村建房就選它
占地:150平方米左右
80-90平米自建樓房設計圖,農村小別墅經典戶型圖
占地:86平方米
新農村雙拼別墅全套設計圖方案及效果圖,餐廳廚房獨立設計
占地:338.02平方米
120平米三層30萬別墅圖片大全及全套施工圖,外觀簡潔大方
占地:120平方米
帶露臺陽光房二層建房別墅設計圖,13米乘12米,享受農村悠然慢
占地:143.54平方米
14米乘10米農村二層別墅新款,外觀對稱設計,經久耐看!
占地:140平方米
新中式二層農村別墅設計圖紙及外觀圖,面寬15米左右
占地:148.86平方米
推薦:10套新農村自建房設計圖,2026年最新設計
閱讀次數:4825737次
100套鄉村別墅圖片大全,2026年最新設計
閱讀次數:2492203次
6款農村蓋一層平房的設計圖,10萬元就能建起來
閱讀次數:1852637次
這11個一層農村自建房別墅火爆了朋友圈!我最喜歡戶型十!你呢
閱讀次數:750268次
農村6萬元建一層小別墅圖,你敢相信嗎
閱讀次數:567686次
農村5萬塊就能自建房,6套普通房子設計圖分享,你沒看錯!
閱讀次數:419410次
8套農村漂亮三間平房圖片,非常適合在農村修建!
閱讀次數:411197次
農村自建房化糞池怎么做?附方案及施工過程
閱讀次數:391783次
農村一層三間平房設計圖,告別土氣養老房,讓人忍不住點贊
閱讀次數:350581次
新農村二層樓房圖片造價12萬,挑一套回家建房吧!
閱讀次數:349126次
