
|
農村蓋房最喜歡的房子外觀造型是什么樣的?經典的、門廳氣派的,左右對稱卻又有點變化的,最好戶型方正。這樣的造型不論布局什么樣,都有人愿意去蓋,下面推薦3套經典款的別墅設計圖。
別墅設計說明:廣西的陳先生,外觀上盡量簡約為主,材料的話追求經濟耐看。所以在外觀配色上設計師采用了活潑的黃色作點綴,棕色的文化石來凸顯質感。
背面避免單調,門窗都做成了窗套是設計,也為了突出立體感。
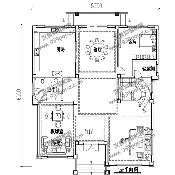
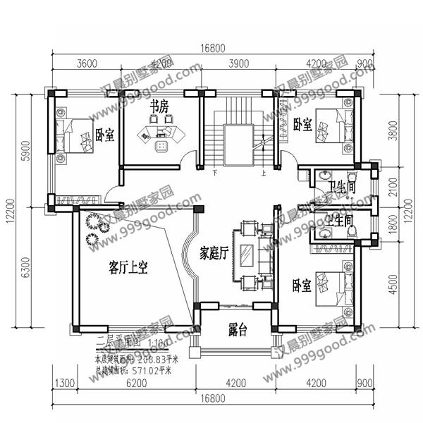
平面功能:廣西那邊要求有堂屋,私密性必須要高。除了堂屋,整個別墅的布局還有 10臥室、1餐廳、1廚房、6衛生間、2客廳。
臥室超級多,總之后面裝修的時候想做成什么就是什么,放個桌子便是書房,放個衣柜就是衣帽間。
連通的露臺顯得開闊大氣。上面的臥室可以是健身房或者娛樂室。
發現農村朋友對這類的戶型造型尤其青睞,上面是新圖重點介紹,下面這2套也是不錯的戶型
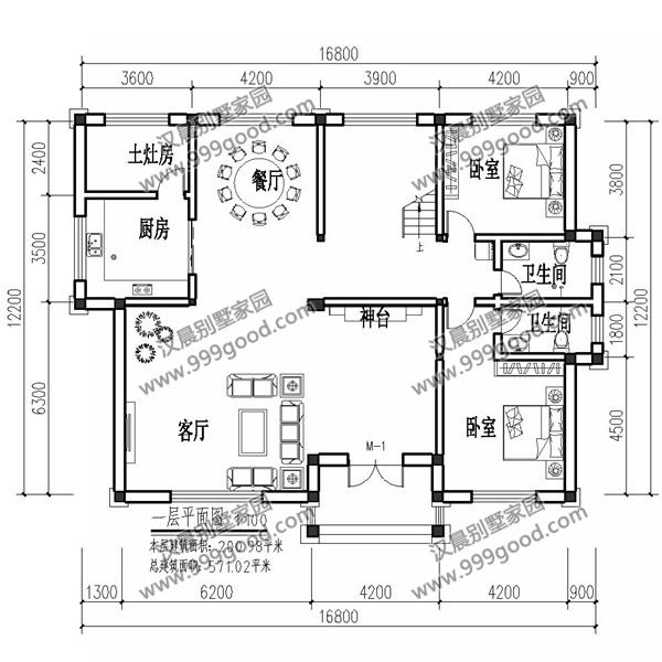
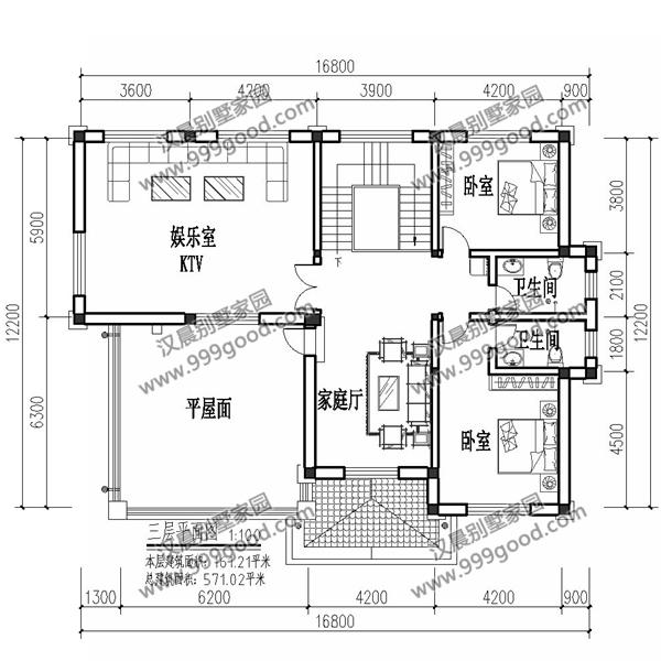
平面功能說明: 總功能有 土灶房,神臺,7臥室、1餐廳、1廚房、6衛生間、3客廳、1書房、1KTV娛樂室。
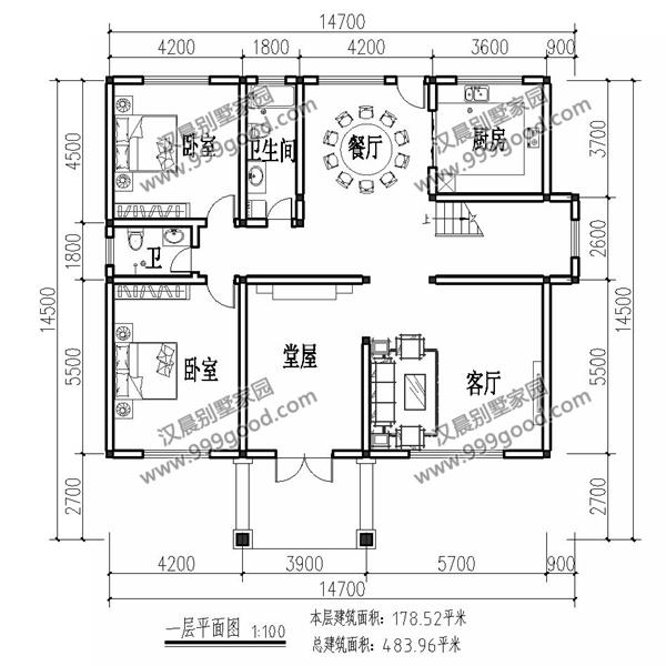
平面功能: 總功能有 1棋牌室,1儲藏間,4臥室、1餐廳、1廚房、5衛生間、1客廳、2書房、1健身房、3衣帽間,此戶型娛樂性比較高。
![]() 圖紙之家-專注農村別墅/自建房設計18年,集合國內200余位經驗豐富的設計師,被評為口碑最好的農村建筑設計公司! |

新款鄉村二層半別墅設計圖紙帶效果圖,三層別墅外觀圖片大全
占地:108.795平方米
120平帶車庫二層農村別墅施工圖,簡約時尚的外觀
占地:119.13平方米
造價30萬左右的三層樓房設計圖,占地120平米左右
占地:120平方米
現代二層樓房圖片造價25萬,含全套設計圖,風格獨特
占地:多戶型可選
農村簡單雙拼小戶型,總面積190平方米,合理的利用了每一個空間
占地:190平方米
二層美式花園洋房設計圖,帶堂屋戶型,外觀簡直美爆了
占地:159.32平方米
農村小別墅一層設計圖紙,外觀漂亮極了,130和160兩個戶型
占地:多種戶型可選
150平米農村兩層樓房設計圖,簡單大氣時尚
占地:150平方米
經典小戶型新農村房屋住宅設計圖,10萬左右
占地:80平方米
110平農村二層房屋設計圖,戶型特別接地氣,造價經濟還實用
占地:110.05平方米
人氣最旺的二層半別墅設計圖紙,復式挑空二層半自建房
占地:122.679平方米
2款帶露臺農村別墅設計圖二層精選,造價超值性價比
占地:多戶型可選
造價40萬三層大氣自建房設計圖紙,鄉村別墅建造圖
占地:159.609平方
簡單現代平屋頂兩層四間自建樓房設計圖紙施工方案,簡潔又實用
占地:192平方米
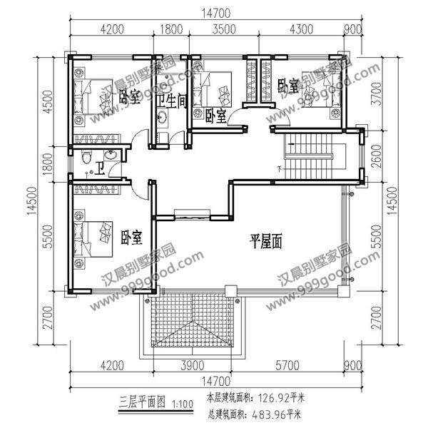
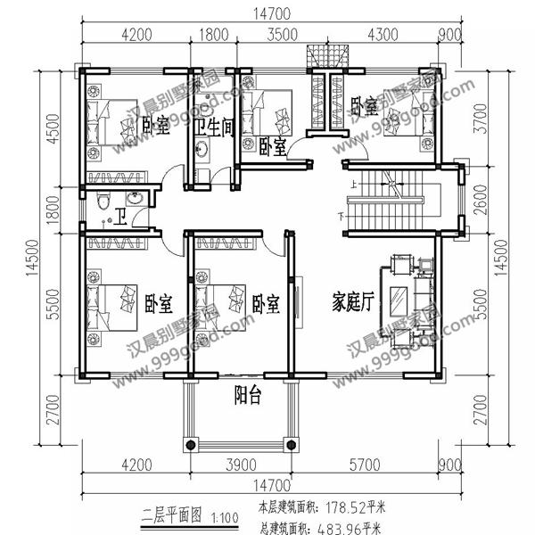
105平方米新農村三層別墅設計圖,全套CAD建筑圖+效果圖
占地:105平方米
經濟實惠一層戶型圖,農村養老房舒適至上,簡約而不失溫馨
占地:147.5平方米
二層精美偏法式風格別墅設計圖,不但顏值高,品質還高
占地:154.17平方米
簡簡單單的二層樓房的設計圖,24萬就能搞定
占地:120平方米
田園輕奢三層帶露臺的鄉村別墅設計圖紙,11x10米
占地:106.64平方米
倆兄弟蓋房子的雙拼設計圖,小宅基地設計方案
占地:151.91平方米
推薦:10套新農村自建房設計圖,2026年最新設計
閱讀次數:4825737次
100套鄉村別墅圖片大全,2026年最新設計
閱讀次數:2492203次
6款農村蓋一層平房的設計圖,10萬元就能建起來
閱讀次數:1852637次
這11個一層農村自建房別墅火爆了朋友圈!我最喜歡戶型十!你呢
閱讀次數:750268次
農村6萬元建一層小別墅圖,你敢相信嗎
閱讀次數:567686次
農村5萬塊就能自建房,6套普通房子設計圖分享,你沒看錯!
閱讀次數:419410次
8套農村漂亮三間平房圖片,非常適合在農村修建!
閱讀次數:411197次
農村自建房化糞池怎么做?附方案及施工過程
閱讀次數:391783次
農村一層三間平房設計圖,告別土氣養老房,讓人忍不住點贊
閱讀次數:350581次
新農村二層樓房圖片造價12萬,挑一套回家建房吧!
閱讀次數:349126次
