
|
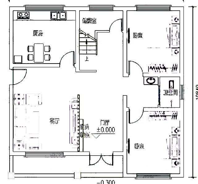
相對比城市的快節奏和高消費,其實很多人現在更喜歡在農村生活的慢和寧靜,什么都可以自給自足。 想對比城市的高樓大廈,鋼筋水泥,隨便就是幾千幾萬一平米的商品房,買一套房子要幾十萬甚至幾百萬;我更喜歡在農村的小房子,清新、自然,而且自己想怎么蓋,可以自己設計,蓋一幢屬于自己的具有歐式田園風的小別墅。 第一套 圖紙介紹 開間:11.04米 進深:10.84米 首層建筑面積:109.6平方米 總建筑面積:214.6平方米 層數:二層 結構形式:磚混結構 主體造價:20萬 建筑高度:9米
一層外墻采用自然古樸的黃色墻磚裝飾,二層采用米白色墻漆涂刷墻面,搭配橙黃色坡面屋頂,有走廊、陽臺、拱形窗,山花雕刻,室內還有多臥室設計,實用美觀。 功能設計
一層平面圖 一層:門廳、客廳、廚房、2臥室、儲藏室、衛生間
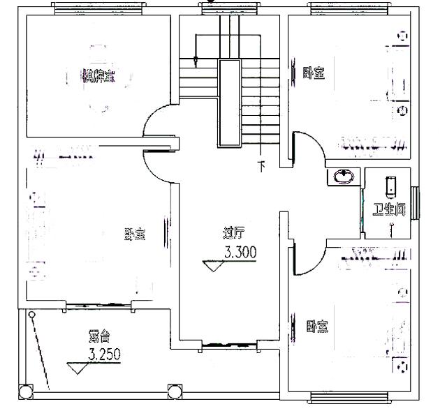
二層平面圖 二層:過廳、3臥室、棋牌室、衛生間、露臺 第二套 圖紙詳情 層數:二層 結構形式:磚混結構 主體造價:18-20萬 開間:12米 進深:9.1米 占地面積:122.38平方米 總建筑面積:211.08平方米
文化石底層 黃色真石漆外墻 橘黃色坡屋頂,搭配著半弧形窗戶,溫馨優雅,協調美觀時尚。二樓有露臺,布局緊湊合理,功能設計齊全。 平面布局圖:
一層平面圖 一 層:玄關、客廳、臥室、廚房、餐廳、雜物房、衛生間
二層平面圖 二 層:活動區、臥室(帶書房)、2臥室、衛生間、露臺 圖紙之家-專注農村別墅/自建房設計18年,集合國內200余位經驗豐富的設計師,被評為口碑最好的農村建筑設計公司! |

面寬20米四開間二層別墅,火爆全村的戶型,美好生活的起點
占地:245.73平方米
17X12米三層雙拼別墅自建房設計圖,歐式風格,戶型方正
占地:190平方米
鄉村最美三層別墅設計圖自建房戶型,外觀圖精致漂亮
占地:134平方米
南方新農村三層樓房設計圖紙,帶房屋效果圖
占地:110平方米
60多平三層現代風格別墅設計圖,小戶型平屋頂
占地:66.4平方米
18米寬一層中式小院設計圖,三合院戶型布局寬敞大氣
占地:232.75平方米
網紅農村一層小別墅設計圖,建一層的必看
占地:多戶型可選
簡易農村別墅房子設計圖,好看實惠,施工也簡單
占地:200平方米
普通農村二層房子設計圖 ,復式結構,帶車庫,占地160平米左右
占地:160平方米
150平方米農村二層磚混結構別墅施工建筑設計圖,平頂設計
占地:150平方米
2026新款戶型三層新農村別墅房屋設計圖紙,外觀對稱
占地:160平方米
新款三層農村自建別墅設計圖,中式風復式客廳
占地:158.96平方米
精致典雅的90平和100平方米二層樓房圖紙,藏不住的經典
占地:多種戶型
一層半中式合院別墅設計圖,帶配房,有庭有院有品位
占地:135平方米左右
新款中式二層四合院住宅設計圖,農村自建帶露臺設計
占地:223平方米
簡單實用的四層農村自建房屋設計圖,占地100平米左右
占地:100平方米
20多萬的造價一層三合院農村自建房效果圖
占地:225.048平方米
新農村中式三層四合院別墅設計戶型圖,農村自建四合院效果圖
占地:多種戶型
歐式三層樓房設計圖,客廳中空,旋轉樓梯,帶土灶房
占地:206平方米
大氣的美式三層別墅設計圖,外觀效果圖氣派、美觀
占地:148平方米
推薦:10套新農村自建房設計圖,2026年最新設計
閱讀次數:4825737次
100套鄉村別墅圖片大全,2026年最新設計
閱讀次數:2492203次
6款農村蓋一層平房的設計圖,10萬元就能建起來
閱讀次數:1852637次
這11個一層農村自建房別墅火爆了朋友圈!我最喜歡戶型十!你呢
閱讀次數:750268次
農村6萬元建一層小別墅圖,你敢相信嗎
閱讀次數:567686次
農村5萬塊就能自建房,6套普通房子設計圖分享,你沒看錯!
閱讀次數:419410次
8套農村漂亮三間平房圖片,非常適合在農村修建!
閱讀次數:411197次
農村自建房化糞池怎么做?附方案及施工過程
閱讀次數:391783次
農村一層三間平房設計圖,告別土氣養老房,讓人忍不住點贊
閱讀次數:350581次
新農村二層樓房圖片造價12萬,挑一套回家建房吧!
閱讀次數:349126次
