
|
現在農村里除了家里有礦的喜歡花上百萬去建造豪華的別墅之外,普通農民實在是沒必要去這么花錢,建個二三層的小洋房就已經足夠。看起來時尚大氣,住起來貼近農村生活習俗最好。今天推薦的這3款自建房,占地110平,不僅外觀讓人覺得舒適大氣,室內布局也是不可多得的好戶型,主要是造價也不會太高。 戶型一 開間:10.8米; 進深:10.1米 占地面積:109.28平方米 建筑面積:249.11平方米 主體造價:25萬—30萬
這套別墅主正面造型大氣簡單,其它三面墻體也做了別有新材的文化石點綴,耐看有經典。整體的顏色搭配沉穩肅靜,烘托出別墅高檔的格調。
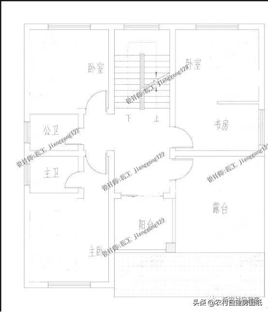
進門有一個門庭,接人待物可以過渡;北面設計廚房、衛生間和一間臥室。高質量的生活少不了豐富的配置,二層兩間朝南主臥都帶有內衛,書房的設計更是貼心實用。 戶型二 開間:10米; 進深:11米 占地面積:115.5平方米 建筑面積:202.44平方米 主體造價:22萬—26萬
這是一款熱情洋溢的歐式別墅,洋紅色的屋頂層次感豐富,和門檐相互呼應,成了一道亮麗的鄉村風景。牙黃色的真石漆涂料,搭配原汁原味的紅磚,配上大氣高挑的門庭,無處不在的設計感小心機。
農村的房子既要美觀還要實用舒適,不僅有滿足基本生活的客廳、餐廳、廚房、臥室、衛生間等,還提高了居住品質,一二層的主臥都帶有內衛,同時設計了增加活動空間的走廊、陽臺、露臺等,讓農村生活更加豐富和諧。 戶型三 開間:11米; 進深:10米 占地面積:109.26平方米 建筑面積:314.084平方米 主體造價:32萬—38萬
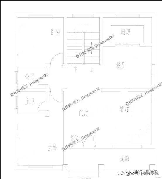
這一套為三層歐式自建房,深色調的外墻涂料搭配莫蘭迪色屋頂,沉靜有氣場,房屋四面都設有獨立采光窗,可以有效提升室內和光照通風,內部空間設計更是一應俱全。
一層設計有堂前、客廳、洗衣房、廚房、臥室、餐廳、衛生間。進大門是堂前,可以擺放神位;為了讓農村生活更加便利,特意設計了洗衣房,臥室靠近衛生間,十分便利。二層設計三間臥室,可以滿足農村大家庭的居住需求;活動室位于二層中間,方便家庭成員交流,還有餐廳功能。小陽臺的設計不僅提升書房的采光,居住舒適性更加強烈。二層的臥室可以自主也可以用來待客,露臺可以根據情況晾曬、擺放花草,或者設計成戶外活動室。 圖紙之家-專注農村別墅/自建房設計18年,集合國內200余位經驗豐富的設計師,被評為口碑最好的農村建筑設計公司! |

經濟實惠一層戶型圖,農村養老房舒適至上,簡約而不失溫馨
占地:147.5平方米
農村三層復式自建樓房設計圖,外觀圖大氣
占地:130平方米
230平方米豪華歐式二層別墅CAD設計圖紙帶外觀效果圖,21.6×15米
占地:236平方米
鄉村高檔四層別墅樓設計圖,二三層復式挑空客廳
占地:148.992平方米
農村建房的“面子天花板”!新中式簡歐結合三層別墅,進門就被
占地:225.98平方米
西班牙風格農村二層樓房設計圖及效果圖,實用美觀
占地:170平方米
四開間兩層別墅設計圖,農村自建住著舒適的好方案!
占地:187.04平方米
帶柴火房農村一層自建房設計圖,戶型布局接地氣
占地:126.29平方米
30萬農村小別墅設計圖片,30萬別墅設計戶型推薦
占地:130平方米
農村三層雙拼別墅設計圖,帶外觀效果圖,推薦
占地:190平方米
最漂亮五間一層自建別墅設計圖,布局實用顏值高!
占地:多戶型可選
帶堂屋新農村三層房屋別墅設計圖紙,帶外觀效果圖
占地:214平方米
一層4間自建平房別墅及全套戶型圖紙,占地160平左右,簡單實用
占地:162.13平方米
2026年獨棟三層雙拼別墅戶型圖,總占地面積300平方米左右
占地:300平方米
帶架空層的兩層別墅設計圖,通透又明亮,建在農村絕對有面子
占地:106.79平方米
農村20萬元二層小樓房設計圖,經典新農村自建房戶型
占地:120平方米
農村兄弟雙拼二層四合院別墅設計圖,戶型左右對稱
占地:430平方米
歐式獨棟二層小別墅設計圖,客廳中空,占地126平米
占地:120平方米
140平方米一層歐式新農村平房設計圖,主體造價僅11萬
占地:141.218平方米
農村一層中式三合院戶型設計圖,造型古香古色
占地:215平方米左右
推薦:10套新農村自建房設計圖,2026年最新設計
閱讀次數:4825737次
100套鄉村別墅圖片大全,2026年最新設計
閱讀次數:2492203次
6款農村蓋一層平房的設計圖,10萬元就能建起來
閱讀次數:1852637次
這11個一層農村自建房別墅火爆了朋友圈!我最喜歡戶型十!你呢
閱讀次數:750268次
農村6萬元建一層小別墅圖,你敢相信嗎
閱讀次數:567686次
農村5萬塊就能自建房,6套普通房子設計圖分享,你沒看錯!
閱讀次數:419410次
8套農村漂亮三間平房圖片,非常適合在農村修建!
閱讀次數:411197次
農村自建房化糞池怎么做?附方案及施工過程
閱讀次數:391783次
農村一層三間平房設計圖,告別土氣養老房,讓人忍不住點贊
閱讀次數:350581次
新農村二層樓房圖片造價12萬,挑一套回家建房吧!
閱讀次數:349126次
