
項目名稱:內蒙古歐式別墅
項目地點:內蒙古
建筑面積:511.5㎡
基地面積:934.3㎡
建筑尺寸:25m×11m
占地面積:237.1㎡
圖紙編號:646
戶型概況:6室4廳5衛1廚1棋牌1禪室2避風閣1鍋爐房1酒窖1儲藏1書房
建筑結構:磚混結構
主創建筑師:楊洋
土建參考造價:85萬元(不包含室內裝修費用)
項目概況

△總平面示意圖
項目位于內蒙古,基地東側距離業主家8米左右是一棟住宅,西側是鄰居家住宅,南、北兩側是道路。由于基地面積較大,建筑受到環境影響極其有限。
圖紙設計

△地下一層平面圖
地下空間主要布置酒窖和儲藏室等輔助功能。地上分為兩層,一層平面以客廳為中心,設計有兩個入戶路徑,考慮到北方冬天寒風凜冽,在入戶門的位置均設計有避風閣,以此保證室內溫度和宜人環境。

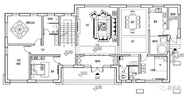
△一層平面圖
客廳采用挑空設計,豎向高度與較大空間結合讓客廳更加大氣。棋牌室等娛樂空間位于西側,較為明確的功能分區,使得室內環境一目了然,使用時也更加舒服。
考慮到老人使用房屋時間較長,廚房采用現代廚房和傳統鍋爐房兩種形式。同時鍋爐房與臥室相鄰,方便火炕布局。冬天時鍋爐房可通過煙道將煙霧排到室外,讓室內保持空氣清爽。

△二層平面圖
二層為起居空間,每間臥室均有很好采光,部分臥室具有多向采光。充足光照讓室內十分明亮,業主及其家人使用時也能有愉悅心情。東側兩處陽臺為室內提供了室外活動空間,無論是衣物晾曬還是觀景,都有較多選擇。
平面整體功能豐富,配合較大的空間讓豪華感和大氣感自然產生。
造型設計

△鳥瞰圖
建筑整體為歐式風格,立面全部采用大理石,石材表面光滑,顏色高貴。大量石材讓建筑更顯品質和檔次,相對自然的顏色也讓建筑整體更為和諧。


△南側效果圖
屋頂利用線條變化表現層次感,室內不同功能對應屋頂的不同起伏區域和高度。南側中心位置的老虎窗作為重點,將建筑中心自然突出,也讓造型更加多變。


△西側效果圖
陽臺和露臺位置選用歐式經典護欄,并通過不同柱式進行空間區分。一層和二層分界處采用紅色屋檐與屋頂進行呼應,同時也再次明確了空間劃分。


△西南側效果圖
入戶位置選用橫向空間和豎向高度結合,配合方正立柱和精美雕飾強調空間感。大氣柱體與拱形門洞搭配,歐式別墅的浪漫優雅被更好地表現出來。


△東南側效果圖
窗戶采用幾何劃分以及對稱處理,以此達到視覺上的極好效果。配合門前的綠化和開闊空間,讓室外區域與室內房間有所交流。建筑和環境緊密結合,讓整體感更好。


△西南側效果圖

△東立面圖

△西立面圖

△南立面圖

△北立面圖
施工過程

項目目前已經完成了主體部分施工,由于北方進入冬季,因此項目施工將于氣溫升高后繼續進行。

目前已經可以看出建筑的整體輪廓,大氣空間劃分使得建筑此刻看來也極有氣勢。












































