
|
在農村,因為家庭人數以及資金的情況限制,一層的樓房也有不少。那么一層的房子要如何設計呢?下面小編就要給大家介紹一個一層農村小別墅,外觀小巧精致,還透露著中國傳統氣息,快來看看吧。
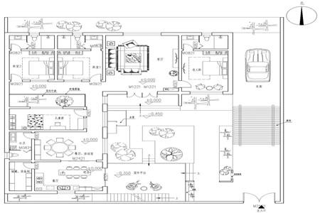
尺 寸: 面寬18.0米 進深20.9米 建筑面積: 238.0㎡ 土建造價: 35.0萬
房子設計為新中式風格,僅保留西廂房和正房,其余面積作為庭院和車庫使用。車庫位于東北角,正對著院門。整個庭院以正房東側為邊界分為車庫所在行車路和西側觀景休閑區域。涼亭橫跨車道,以半玻璃頂和木材形成造型,簡單卻耐看。
平面布局分為正房和西廂房兩部分,正房設計有三間臥室,老人房室內有較大面積,使用時也更加舒服。西側兩間臥室面積適中,因此向北退讓一部分空間,與西廂房退讓空間形成過渡,為臥室提供更多采光,也豐富了室內景色。
西廂房設計有兒童房和餐廳、廚房等輔助空間。兒童房既有開窗也有開門,在玻璃中庭外,入口附近也利用玻璃將陽光引入室內。除廚房位置常用餐廳外,旁邊設計有活動室。在過年期間,親戚朋友較多時可以用作餐廳,設備和儲物空間設計在西南角。
建筑立面采用白墻灰瓦形成簡約整潔的視覺效果。正房屋頂為傳統坡屋頂,西廂房屋頂選用平屋頂,通過室外樓梯配合鏤空護欄打造成屋頂露臺。
院內高大樹木較少,以草坪和低矮灌木為主,配合庭院內竹子和院墻鏤空裝飾讓側面視覺上豐富、有層次。入戶位置上方選用玻璃作為雨棚,既不會影響采光,也能配合木質邊框自然形成門頭。
庭院內木質休息平臺與入戶門相對,兩者通過帶有轉角的道路相通,道路兩旁植物和樹木在兩者中間作為遮擋,讓室內看到的庭院景色極有層次。
庭院內共有兩處影壁,在院門與室外樓梯之間設計有“福”字影壁,石雕樣式讓古韻更加濃厚,也帶有吉祥寓意。另一處影壁位于道路轉角上,利用木格柵將景色朦朧透出。兩個影壁共同作用讓院門附近視野極其純粹。
白墻青瓦搭配木門和綠色的庭院,將房子的精致和質感展現地淋漓盡致。 圖紙之家-專注農村別墅/自建房設計18年,集合國內200余位經驗豐富的設計師,被評為口碑最好的農村建筑設計公司! |

開間20米雙拼別墅三層設計圖,兄弟合建省時省力又省心
占地:205.8平方米
農村三層帶車庫、帶露臺別墅設計圖,經典自建別墅設計方案
占地:160平方米
110平預算20萬內三層別墅設計圖,含效果圖
占地:110平方米
新農村雙拼別墅全套設計圖方案及效果圖,餐廳廚房獨立設計
占地:338.02平方米
大氣農村三層歐式雙拼別墅全套施工圖紙,帶堂屋設計,外觀圖片
占地:196.056平方米
帶柴火房農村一層自建房設計圖,戶型布局接地氣
占地:126.29平方米
140平歐式二層半帶露臺的獨棟別墅圖片,含全套設計圖
占地:140平方米
美式風格鄉村兩層小別墅自建房設計圖,外觀圖好看
占地:150平方米
2026最美三層別墅設計圖紙及效果圖,十佳最美農村別墅
占地:151平方米
農村自建二層樓房設計圖及效果圖,二層房屋圖推薦
占地:105平方米
回老家蓋房就選這款新中式一層設計,16乘8米大小正合適
占地:130.1平方米
105平一層簡單農村別墅設計圖,造價8萬左右
占地:105平方米
一層農村自建房設計圖,造型美觀大氣,占地150平
占地:153.415平方米
12x13米豪華三層農村別墅設計圖,宅基地上的貴族人生
占地:156平方米
帶車庫二層農村豪華別墅設計圖,主體25萬左右
占地:170平方米左右
新中式風格二層住宅設計圖,農村自建房不土氣
占地:144.5平方米
獨棟三層樓房設計圖紙及效果圖,農村蓋房推薦
占地:125平方米
新農村私人別墅建筑設計施工圖,全套別墅設計圖紙
占地:多種戶型
200平方農村三層別墅房屋設計圖及效果圖,大戶型精選
占地:200平方米
130平方米農村兩層別墅圖紙及效果圖12X11米
占地:133平方米
推薦:10套新農村自建房設計圖,2026年最新設計
閱讀次數:4825737次
100套鄉村別墅圖片大全,2026年最新設計
閱讀次數:2492203次
6款農村蓋一層平房的設計圖,10萬元就能建起來
閱讀次數:1852637次
這11個一層農村自建房別墅火爆了朋友圈!我最喜歡戶型十!你呢
閱讀次數:750268次
農村6萬元建一層小別墅圖,你敢相信嗎
閱讀次數:567686次
農村5萬塊就能自建房,6套普通房子設計圖分享,你沒看錯!
閱讀次數:419410次
8套農村漂亮三間平房圖片,非常適合在農村修建!
閱讀次數:411197次
農村自建房化糞池怎么做?附方案及施工過程
閱讀次數:391783次
農村一層三間平房設計圖,告別土氣養老房,讓人忍不住點贊
閱讀次數:350581次
新農村二層樓房圖片造價12萬,挑一套回家建房吧!
閱讀次數:349126次
