
|
現如今特別流行農村自建房,原因也特別簡單,一是因為農村空氣質量好,二是因為農村自建房款式多,性價比高,所以越來越多的人們放棄在城市買房,而選擇回農村自己建房。 今天小編就帶大家來看看時下最火爆最實用的幾款農村建房~ 01
開間:12.4米 進深:8.94米 占地面積:99.2平方米 建筑面積:204平方米 結構形式: 框架結構 主體造價:約22~25萬
一層:采用的現在農村蓋房普遍流行的雙廳設計,朝南主臥也非常方便主人家起居,另外在樓梯間還設有雜物間,空間利用率高,也符合農村生活。
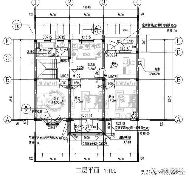
二層:設有三間臥室和一個書房,節假日子女回到老家或者家里來客人了都完全夠空間居住,除了臥室外,還設有一個大大的休息廳,布局相當合理。 02
開間:11.4米 進深:12.9米 占地面積:147.06平方米 建筑面積:234.97平方米 建筑高度:9.6米 結構形式: 框架結構 主體造價:約23~25萬
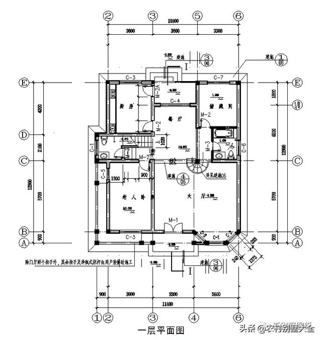
一層除了寬敞的堂屋外,還設有老人房和儲藏間,可以當成2間臥室使用,廚房設后門可直通屋后,方便生活垃圾的清運和潲水處理,非常人性化。
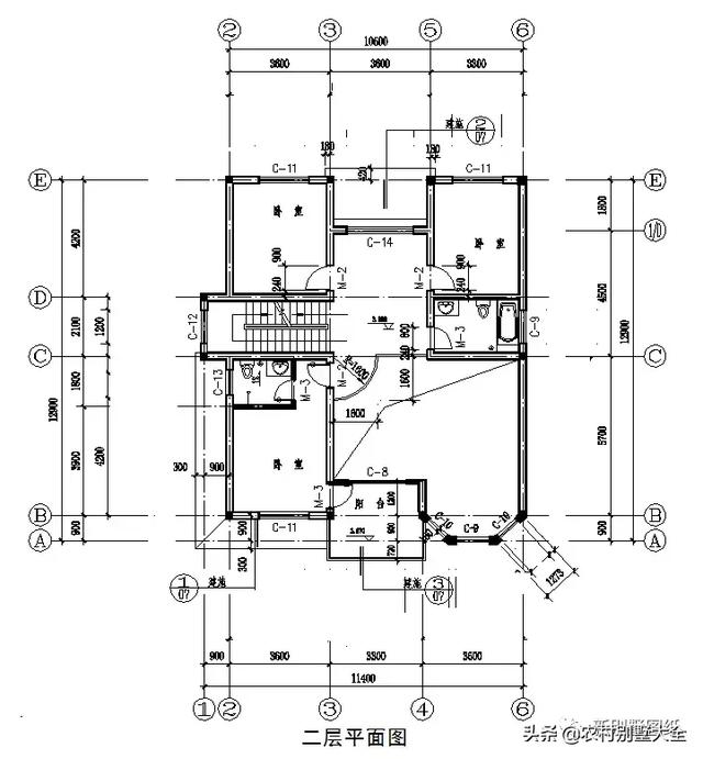
二層:二層為復式樓設計,設有3間臥室足夠家里人員居住,挑高的客廳顯得霸氣十足,也為別墅內部提供了更好的通風通光效果。 03
開間:13.3m(含車庫3.2米) 進深:14.6m 占地面積:152.2㎡ 建筑面積:366.4㎡ 建筑總高度:11.1米 結構形式:框架結構 主體造價:約34~38萬
這款別墅稱得上是經典中的經典了,一共三層,占地150多平方,對于農村蓋房而言是首選戶型。話不多說,你看看這些實建案例就知道了。
04
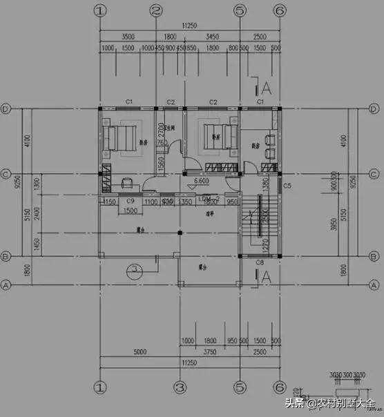
開間:11.25米 進深:9.25米 占地面積:109.4平方米 建筑總面積:294平方米 建筑總高度:11.52米 戶型結構:磚混結構 主體建筑參考造價:約23~26萬
同樣的爆款戶型,布局也是相當合理。各層分布上非常適合農村人的生活起居,兩層半設計,大陽臺和樓頂大露臺是農村人建房最喜歡的設計,也非常符合生活居住。 圖紙之家-專注農村別墅/自建房設計18年,集合國內200余位經驗豐富的設計師,被評為口碑最好的農村建筑設計公司! |

L“型”一層自建房小平層設計圖紙,180平方米
占地:179.355平方米
四層農村別墅設計圖,一二層都有廚房和餐廳的戶型方案
占地:128.52平方米
經典的農村三層小樓房設計圖,外觀圖片時尚、精致
占地:100平方米
村里蓋房圖紙大廳挑空的三層別墅設計圖,面寬不到10米
占地:122.4平方米
農村4間2層樓房設計圖,戶型方正,四平八穩的二層農村別墅
占地:180平方米
三層現代別墅設計圖紙,全套私人別墅圖紙(含外觀效果圖)
占地:170.38平方米
面寬12米新中式三層別墅設計圖,回家建房就選它,全家人都愛的
占地:180平方米
現代風格建房圖紙二層別墅設計方案,外觀百看不厭
占地:多戶型可選
客廳中空的三層豪華小別墅設計圖,時尚靚麗,鄉下建一棟有面子
占地:171.25平方米
歐式四層(三層半)獨棟別墅設計圖復式,設計豪華時尚
占地:194平方米
100平左右鄉下三層樓房設計圖,戶型方正,小面積宅基地的福音
占地:100平方米
雙拼二層大別墅設計圖,大面寬小進深,讓兄弟永遠不分家
占地:207.15平方米
20多萬的造價一層三合院農村自建房效果圖
占地:225.048平方米
95平米二層別墅必蓋戶型圖,造型洋氣,布局接地氣,趕緊回村建
占地:95.38平方米
大二間三層別墅戶型圖,三層新農村自建房設計圖紙及效果圖
占地:116平方米
100平米兩間三層樓房設計圖,農村蓋房舒服實用最重要
占地:100平方米
一層半中式合院別墅設計圖,帶配房,有庭有院有品位
占地:135平方米左右
二層農村自建四合院設計圖,中式外觀古樸有質感200-300平方米
占地:270平方米左右
大戶型三層別墅設計圖,高貴大氣,占地面積將近300平
占地:273.33平方米
135平方米新農村三層別墅設計圖紙,外觀效果圖很漂亮
占地:134平方米
推薦:10套新農村自建房設計圖,2026年最新設計
閱讀次數:4825737次
100套鄉村別墅圖片大全,2026年最新設計
閱讀次數:2492203次
6款農村蓋一層平房的設計圖,10萬元就能建起來
閱讀次數:1852637次
這11個一層農村自建房別墅火爆了朋友圈!我最喜歡戶型十!你呢
閱讀次數:750268次
農村6萬元建一層小別墅圖,你敢相信嗎
閱讀次數:567686次
農村5萬塊就能自建房,6套普通房子設計圖分享,你沒看錯!
閱讀次數:419410次
8套農村漂亮三間平房圖片,非常適合在農村修建!
閱讀次數:411197次
農村自建房化糞池怎么做?附方案及施工過程
閱讀次數:391783次
農村一層三間平房設計圖,告別土氣養老房,讓人忍不住點贊
閱讀次數:350581次
新農村二層樓房圖片造價12萬,挑一套回家建房吧!
閱讀次數:349126次
