
|
這款圖紙戶型比較實用,四開間,占地面積120平方米。有兩種外觀配色方案可選,一種是比較清新時尚的,一種是比較簡約大氣的,看個人喜歡什么樣的風格。
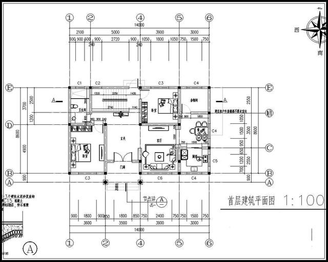
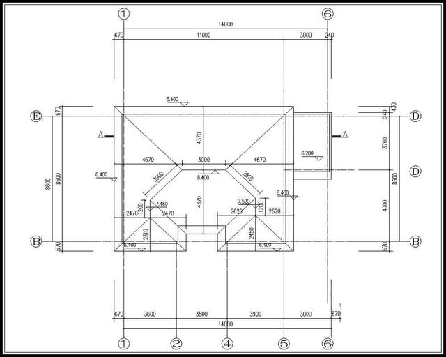
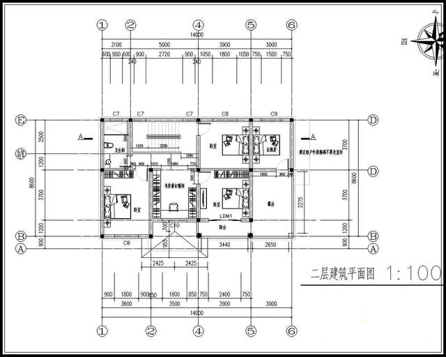
基本信息 占地尺寸:面寬14米x進深8.6米 占地面積:121.9平方 建筑總面積:224.2平米(不含入戶平臺、陽臺、露臺) 建筑層高:總高8.4米,屋檐口高6.4米 建筑結構:磚混結構 各立面圖
各層平面圖
設計功能說明: 一層設計有2間臥室,客廳、玄關可以作為堂屋,布置神位,方便農村辦理紅白喜事等重要場所。另設計有廚房、餐廳、衛生間和雜屋間。二層設計有四間臥室,一個衛生間,書房可以作為衣帽間,也可以改作客廳,另帶有露臺和陽臺。頂層閣樓可以作為儲存空間,存放雜物。功能布局考慮的比較周全,也可跟據各人的喜好靈活調整。 圖紙之家-專注農村別墅/自建房設計18年,集合國內200余位經驗豐富的設計師,被評為口碑最好的農村建筑設計公司! |

四層自建別墅設計圖,有車庫帶露臺,時尚大氣給你一個五星級的
占地:152.51平方米
簡約大氣四開間二層自建房設計圖,16x10米,經典耐看高顏值
占地:160平方米
15×12米一層農村寶藏戶型,適合養老房,看完鄰居直接要圖紙!
占地:180平方米
簡歐風格二層別墅設計圖,經典不過時大氣時尚,漂亮的不像話!
占地:205.68平方米
一層農村自建房別墅設計方案,左右對稱布局好
占地:154平方米
村里三層新中式風自建別墅圖,對稱設計,氣派好看
占地:135.3平方米
2026新款三層小別墅設計圖,占地150平米,帶地下室
占地:150平方米
大面積農村一層房子設計圖,戶型實用、合理
占地:190平方米
農村新款二層中式別墅設計圖效果圖,帶堂屋設計
占地:144平方米
150平二層別墅房屋設計圖,現代風格,造型精致
占地:150平方米
185平方米二層自建別墅設計施工圖紙及外觀效果圖,15x13米
占地:186平方米
農村三間兩層樓房設計圖,帶外觀效果圖
占地:140平方米
二層平頂別墅設計圖,漂亮經濟實用二層農村小別墅最新房屋設計
占地:多種戶型
帶車庫現代三層房屋別墅設計圖,占地110平米左右,功能齊全
占地:110平米
偏中式徽派的二層房屋農村別墅設計圖,馬頭墻小青瓦
占地:123.36平方米
農村120平方房子設計圖,三層房屋設計圖精選
占地:120平方米
帶地下室的農村三層雙拼別墅設計圖,復式戶型,面寬23米
占地:261.6平方米左右
新式帶挑空客廳三層鄉村別墅設計圖,占地170平左右
占地:170平方米
預算10萬左右新農村自建房屋設計圖紙,帶效果圖
占地:82平方米
150平左右新農村自建房設計圖,含外觀效果圖
占地:150平方米
推薦:10套新農村自建房設計圖,2026年最新設計
閱讀次數:4825737次
100套鄉村別墅圖片大全,2026年最新設計
閱讀次數:2492203次
6款農村蓋一層平房的設計圖,10萬元就能建起來
閱讀次數:1852637次
這11個一層農村自建房別墅火爆了朋友圈!我最喜歡戶型十!你呢
閱讀次數:750268次
農村6萬元建一層小別墅圖,你敢相信嗎
閱讀次數:567686次
農村5萬塊就能自建房,6套普通房子設計圖分享,你沒看錯!
閱讀次數:419410次
8套農村漂亮三間平房圖片,非常適合在農村修建!
閱讀次數:411197次
農村自建房化糞池怎么做?附方案及施工過程
閱讀次數:391783次
農村一層三間平房設計圖,告別土氣養老房,讓人忍不住點贊
閱讀次數:350581次
新農村二層樓房圖片造價12萬,挑一套回家建房吧!
閱讀次數:349126次
