
|
久在樊籠里,復得返自然。 不管一個人在城市里待多久,總有一天他都要回到自己家鄉,因為這是中國人落葉歸根的夙愿,回到家鄉過愜意的田園生活這是城市人口羨慕不已的日子。 今天農村小別墅就推薦這套別墅是一套實用性兼具高品質的戶型,適合廣大鄉村地區建造。別墅立面外觀精簡,多層四坡頂,但建筑線條流暢,無多余裝飾,降低施工難度,控制造價;在室內布局設計上注重空間品質感及居住舒適度,不奢侈也不局促;
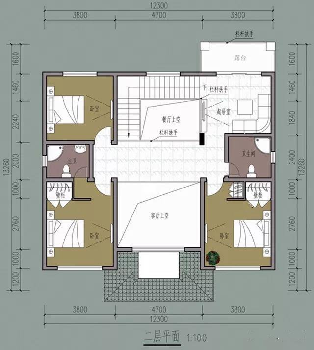
農村別墅基本信息 ? 占地尺寸:12.3米*13.2米 ? 占地面積:142平方米 ? 建筑面積:256平方米 ? 建筑結構:磚混結構 ?主體造價:20-25萬
這套戶型的特別之處在于客廳與餐廳的雙挑高設計,極大的增加了視野的闊度,大氣通透;
由于一層的雙挑空,二層連接東西房間之間的變成了一條空中走廊;整個室內空間層次性非常好。 圖紙之家-專注農村別墅/自建房設計18年,集合國內200余位經驗豐富的設計師,被評為口碑最好的農村建筑設計公司! |

農村三層雙拼別墅設計圖,兄弟建房開間20米,單戶80平方
占地:160平方米
新式帶挑空客廳三層鄉村別墅設計圖,占地170平左右
占地:170平方米
20萬左右歐式二層小別墅設計圖,100平米和130兩個戶型
占地:多種戶型
陽臺封閉的簡約實用二層別墅設計圖,15x12.8米
占地:165平方米
2026二層農村新款別墅新式二層樓房設計圖,非常時尚
占地:多種戶型
經典美式二層小別墅設計圖,回鄉建房不可不看的經典之作
占地:109.33平方米
農村120平三層樓房設計圖,造型現代,帶屋頂花園
占地:120平方米
不帶廚房餐廳的二層別墅設計圖,農村建房很多人都這樣做
占地:124平方米左右
三層兩開間小面寬別墅設計圖紙帶外觀效果圖,95平方米
占地:94.61平方米
歐式三層小洋樓設計圖,歐式最美三層別墅外觀效果圖
占地:124.28平方米
獨棟小別墅設計圖,造價30萬左右的獨棟小別墅設計推薦
占地:150平方米
二層農村房子圖片及全套施工圖紙,占地150平面左右
占地:150平方米
一層農村必蓋戶型設計方案,養老自住兩相宜,經濟實惠又耐用!
占地:150.36平方米
帶車庫的農村四合院別墅設計圖,富貴人家的象征,日子越過越興
占地:219.24平方米
2026帶車庫三層雙拼別墅房屋設計圖,配色淡雅低調
占地:224平方米
占地百平三層歐式別墅設計圖,回到家鄉建一棟,大氣美觀有內涵
占地:99.94平方米
2026新款三層小別墅設計圖,占地150平米,帶地下室
占地:150平方米
12.8乘10米一層平房別墅設計圖,四室二廳南北通透
占地:128.85平方米
120平方房子設計圖,農村120平建房設計圖推薦
占地:122平方米
農村10萬自建一層平房設計圖,占地面積120平米
占地:120平方米
推薦:10套新農村自建房設計圖,2026年最新設計
閱讀次數:4825737次
100套鄉村別墅圖片大全,2026年最新設計
閱讀次數:2492203次
6款農村蓋一層平房的設計圖,10萬元就能建起來
閱讀次數:1852637次
這11個一層農村自建房別墅火爆了朋友圈!我最喜歡戶型十!你呢
閱讀次數:750268次
農村6萬元建一層小別墅圖,你敢相信嗎
閱讀次數:567686次
農村5萬塊就能自建房,6套普通房子設計圖分享,你沒看錯!
閱讀次數:419410次
8套農村漂亮三間平房圖片,非常適合在農村修建!
閱讀次數:411197次
農村自建房化糞池怎么做?附方案及施工過程
閱讀次數:391783次
農村一層三間平房設計圖,告別土氣養老房,讓人忍不住點贊
閱讀次數:350581次
新農村二層樓房圖片造價12萬,挑一套回家建房吧!
閱讀次數:349126次
