
戶型一:農村三層別墅設計圖,占地110平米,帶全套施工圖圖紙介紹:這款戶型看起來非常高檔,歐式風格的設計給人一種豪氣的感覺,多窗設計增加房間的采光,三樓還有涼亭的設計,室內有儲藏室、書房、健身房等多功能設計。
別墅效果圖展示 占地面積:10m*12.35m,110平方米左右; 建筑層高:三層; 建筑高度:12.75米(含屋頂); 設計功能: 一層戶型:玄關、客廳、餐廳、廚房、儲物間、衛生間; 二層戶型:小客廳、臥室x3、書房、衛生間、陽臺; 三層戶型:臥室、健身房、衛生間、露臺;
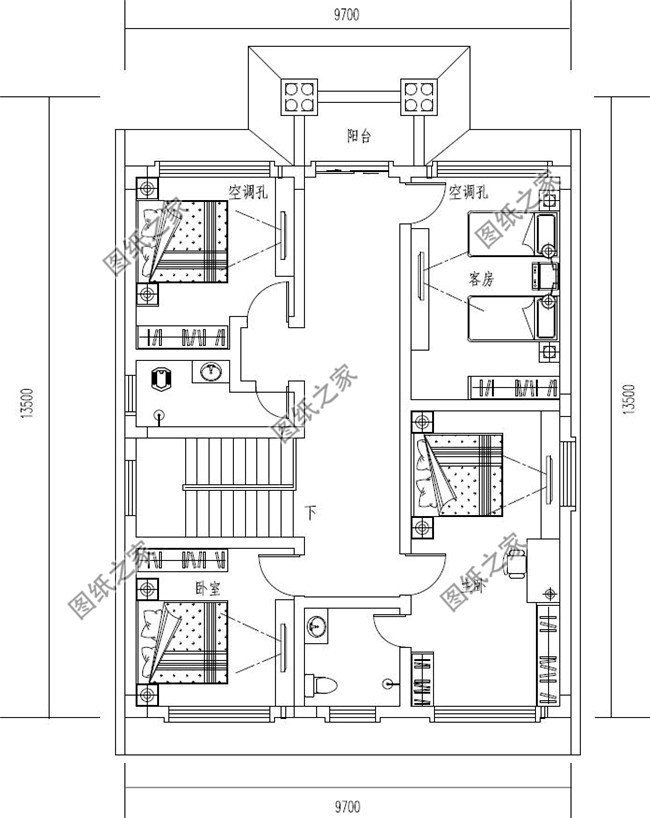
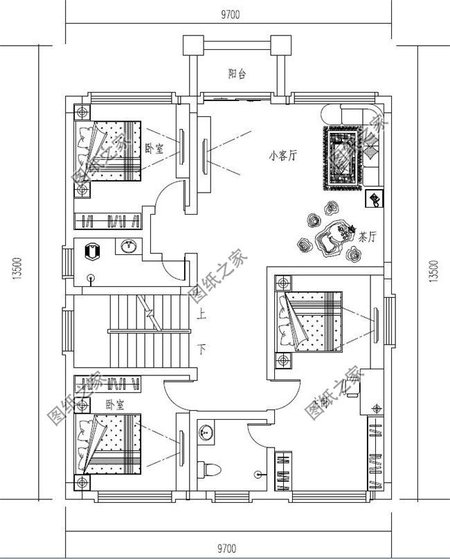
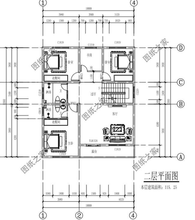
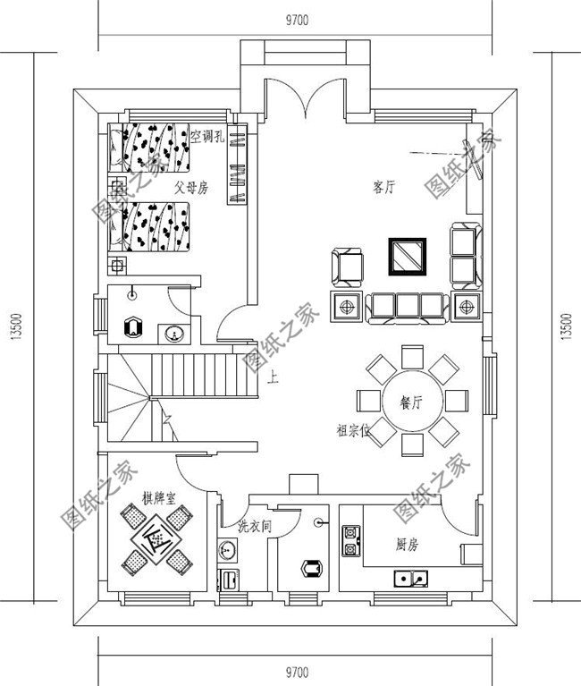
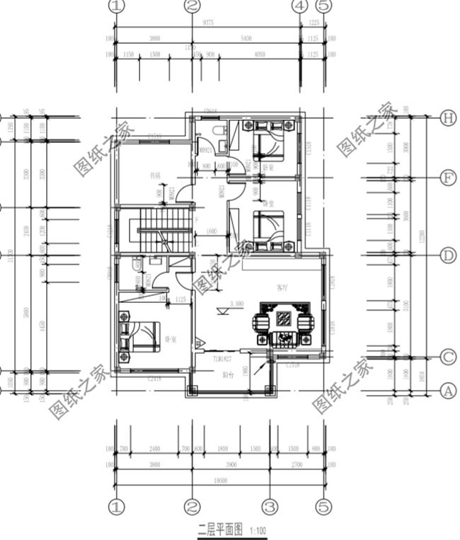
別墅戶型圖展示 戶型二:三層自建房設計效果圖,新農村自建房圖紙圖紙介紹:這款開間近10米,進深12米,總占地116平方米左右,復式落地窗,增強屋內采光,外觀歐式風格,堪稱豪宅。
別墅外觀效果圖展示 占地面積:9.7m*12m,116平方米左右; 建筑層高:三層; 建筑高度:12.92米(含屋頂); 設計功能: 一層戶型:客廳、餐廳、廚房、洗衣間、棋牌室、父母房; 二層戶型:小客廳、茶廳、臥室(帶衛生間)、臥室x2、衛生間、陽臺; 三層戶型:臥室(帶衛生間)、臥室x3、衛生間、陽臺;
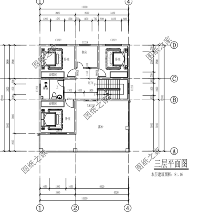
別墅平面圖展示 戶型三:農村自建房三層豪華別墅圖,占地120平米,主體造價30萬以內圖紙介紹:別墅外觀豪華,豪宅既視感,占地120平米左右,門頭典型的歐式風格;室內結構布局合理,客廳中空。
三層別墅效果圖展示 占地面積:10.0m*12.0m,一層占地123平方米左右; 建筑層高:三層; 建筑高度:13.00米(含屋頂); 設計功能: 一 層:客廳、廚房、餐廳、臥室(帶衛生間)、棋牌室、衛生間; 二 層:客廳上空、起居室、臥室(帶衣帽間,衛生間)、臥室x2、衛生間、陽臺; 三 層:佛堂、健身區、臥室(帶衣帽間,衛生間)、臥室、書房;
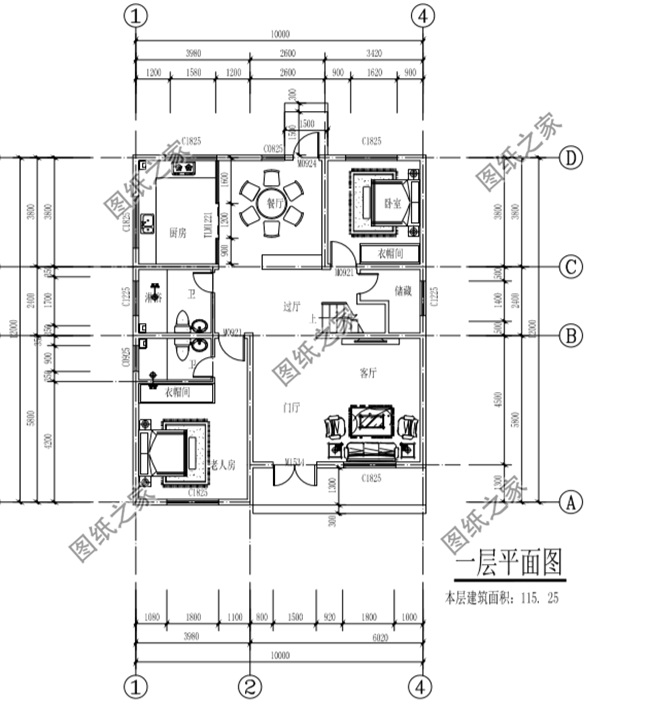
別墅戶型圖展示 戶型四:三間三層樓房設計圖,理想住宅圖紙介紹:這款戶型簡直就是農村理想住宅,設計符合各個家庭成員的需求,住起來非常舒適,關鍵是外觀簡約大氣,內部布局也非常合適。
別墅外觀效果圖展示 占地面積:10.0m*12.0m,一層占地120平方米左右; 建筑層高:三層; 建筑高度:12.0米(含屋頂); 設計功能: 一 層:客廳、廚房、餐廳、臥室(帶衛生間)、臥室、儲藏室、衛生間; 二 層:客廳、臥室(帶衛生間)、臥室x2、書房、衛生間、露臺; 三 層:臥室x3、書房、衛生間、大露臺;
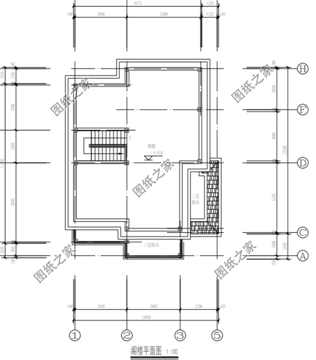
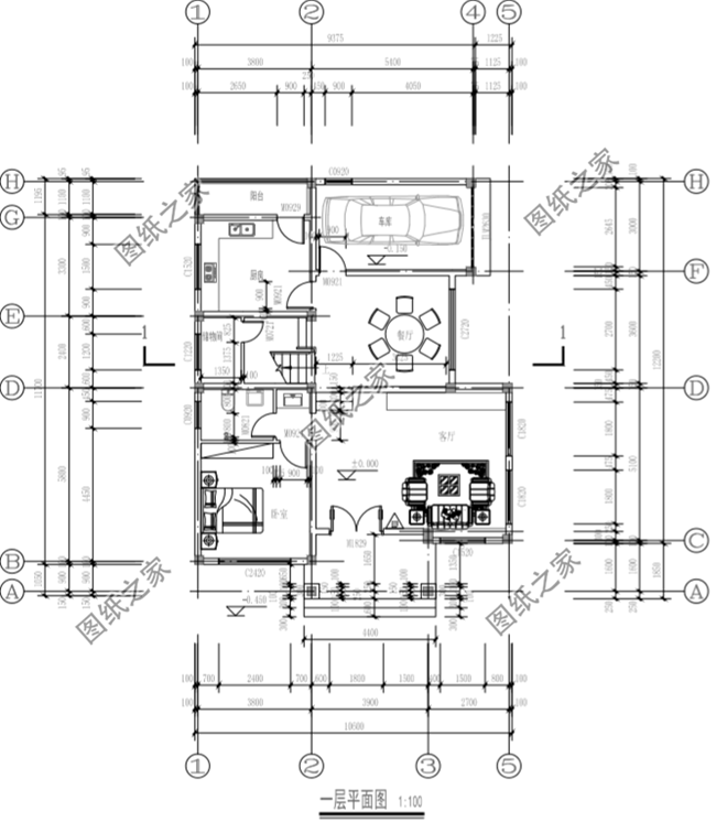
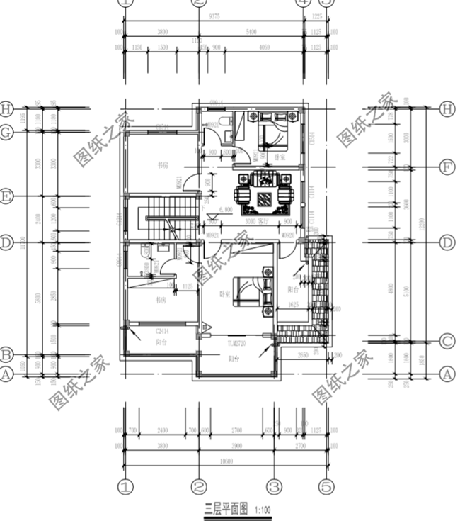
別墅平面圖展示 戶型五:占地120平米三層別墅設計圖,帶車庫和閣樓圖紙介紹:這款戶型帶車庫和閣樓,非常合理的利用每一寸空間,內部布局看上去非常舒適。
別墅效果圖展示 占地面積:10.6m*12.2m,一層占地120平方米左右; 建筑層高:三層; 建筑高度:14.03米(含屋頂); 設計功能: 一 層:客廳、廚房、餐廳、臥室、衛生間、儲藏間、車庫(不需要車庫可以做成臥室); 二 層:客廳、臥室(帶衛生間)、臥室x2、書房、衛生間、陽臺; 三 層:客廳、臥室(帶書房、衛生間、陽臺)、臥室、書房、衛生間、陽臺; 閣樓
別墅平面圖展示 看完這么多套設計圖紙想好選哪一套給自己家房子安排上了嗎? 圖紙之家-專注農村別墅/自建房設計18年,集合國內200余位經驗豐富的設計師,被評為口碑最好的農村建筑設計公司! |

農村蓋房三層自建別墅設計圖紙,11米乘12米戶型方案
占地:132.55平方米
好看又簡單的二層樓房設計,經濟實用型的農村小別墅
占地:135平方米
現代新中式四層復式別墅房屋設計圖,旋轉樓梯,含效果圖
占地:150平方米
自建房共堂屋雙拼別墅設計圖方案,三層挑空復式戶型
占地:199.5平方米左右
農村二層帶車庫四合院別墅設計圖,新中式外觀圖片,戶型實用方
占地:247平方米
新中式三層雙拼別墅設計圖,外觀圖片美觀、大氣
占地:176平方米
200平農村二層別墅設計圖,外觀現代簡約
占地:204平方米
農村四間兩層樓房設計圖,帶車庫,時尚經濟,最適合農村施工的
占地:180平方米
歐式豪華三層別墅設計圖,占地面積170平米,高端大氣帶露臺
占地:170平方米
新中式復式三層別墅設計圖紙,最美的新中式別墅
占地:130平方米
占地180平方米二層鄉村小洋樓設計戶型圖及圖紙,外觀華麗
占地:180平方米
美式田園二層別墅設計方案圖,全套設計圖+效果圖
占地:235平方米
占地180平豪華三層農村別墅自建房設計圖,歐式與現代相融合
占地:183.706平方米
農村二層半別墅設計圖,簡單實用,造價低
占地:140平方米
鄉村最美四合院設計圖及外觀效果圖片,國人的理想住宅
占地:280.62平方米
110平左右二層小洋樓設計圖,含效果圖片
占地:108平方米
105平方米新農村三層別墅設計圖,全套CAD建筑圖+效果圖
占地:105平方米
復式客廳挑空三層別墅設計圖,帶外觀效果圖片,推薦
占地:150平方米
新中式農村自建房三層設計圖,外觀布局均滿分
占地:142.18平方米
造價30萬的三層簡歐新農村別墅設計施工圖紙及效果圖
占地:133平方米
推薦:10套新農村自建房設計圖,2026年最新設計
閱讀次數:4825737次
100套鄉村別墅圖片大全,2026年最新設計
閱讀次數:2492203次
6款農村蓋一層平房的設計圖,10萬元就能建起來
閱讀次數:1852637次
這11個一層農村自建房別墅火爆了朋友圈!我最喜歡戶型十!你呢
閱讀次數:750268次
農村6萬元建一層小別墅圖,你敢相信嗎
閱讀次數:567686次
農村5萬塊就能自建房,6套普通房子設計圖分享,你沒看錯!
閱讀次數:419410次
8套農村漂亮三間平房圖片,非常適合在農村修建!
閱讀次數:411197次
農村自建房化糞池怎么做?附方案及施工過程
閱讀次數:391783次
農村一層三間平房設計圖,告別土氣養老房,讓人忍不住點贊
閱讀次數:350581次
新農村二層樓房圖片造價12萬,挑一套回家建房吧!
閱讀次數:349126次
