
|
在農村建房已經是普通的不能再普通的事了。有人歡喜有人憂,歡喜的人是自己家的宅基地大,想怎么蓋就怎么蓋;憂愁的人是自己家宅基地小,不知道怎么蓋,網上搜那么一大推,沒有自己中意的,發愁了好長時間。今天遇到我算對了,下面給大家總結了一下宅基地90平方設計圖,有4款,一層、二層、三層、四層都有。下面就來看看吧。
第一套:一層三開間平方農村別墅設計圖美觀大氣的農村簡單一層三間平房小型農村別墅設計方案戶型圖,占地90平。入戶設大客廳,門廳附帶門外廊,客廳后設餐廳,餐廳西側設大廚房,內設3件臥室,滿足普通的三口之家沒有任何問題。建筑裝飾簡潔,藍色屋頂,白色外墻漆,美觀又大方。 占地面積:10.5m*9.2m,91.036平方米左右; 建筑層高:一層; 建筑高度:5.903米(含屋頂); 設計功能: 一層戶型:入戶大廳、客廳、臥室x3、廚房、餐廳;
第二套:帶開放式車庫二層農村自建別墅設計方案外觀非常的清新優雅,開放式設計,又能作為休閑下午茶場所。二層還有層頂露臺,可以做個花架,又陽光的午后,可以在露臺上喝茶,休息。室內總局既合理又實用,空間布局緊湊實用,利用率高。一層設計有兩間臥室,可供家里的老人居住,另設計有客廳、餐廳、廚房和衛生間;二層主要作為生活起居場所,設計有三間臥室,還有兩個屋頂露臺。 占地面積:12.2m*9.42m,89.412平方米左右; 建筑層高:二層; 建筑高度:10.037米(含屋頂); 設計功能: 一層戶型:客廳、廚房、餐廳、車庫、臥室x2、衛生間; 二層戶型:客廳、臥室x3、衛生間、陽臺x2、露臺;
第三套:新農村三層住宅設計圖紙,帶效果圖戶型為3層獨棟別墅,新農村三層住宅設計方案,帶全套建筑施工圖、結構施工圖、外觀效果圖,總建筑面積248平方米,本戶型平面功能分區明確,布置合理;立面造型樸素大方而又活潑別致,色彩清新淡雅,具有濃郁的田園氣息。 占地面積:8.64m*10.43m,90平方米左右; 建筑層高:三層; 建筑高度:10米(含屋頂); 設計功能:一樓設有客廳、餐廳、廚房、臥室、衛生間;二樓設有客廳(帶陽臺)、2間臥室、衛生間;三樓設有2間臥室、衛生間、露臺;
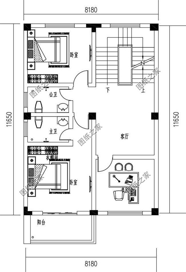
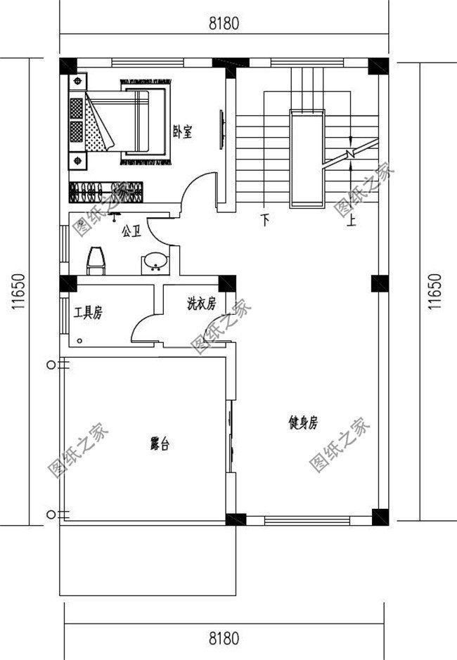
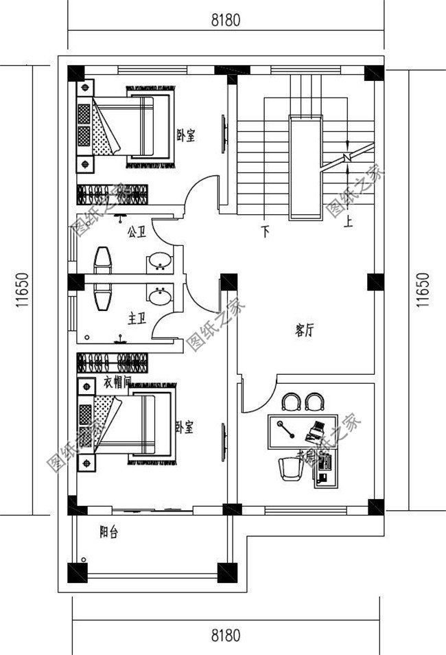
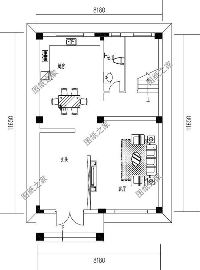
第四套:新農村小戶型4層自建房三層半別墅設計圖,平頂屋設計 新農村小戶型4層別墅設計圖紙及效果圖大全,三層半自建房戶型圖,平屋頂設計,帶健身房,這款四層別墅是經典的平頂屋設計,平屋頂用在高層的別墅當中是比較美觀的。四層的別墅一般造價都不低,但是建這一棟別墅,不僅顏值有了、面子占了,且能給自己省錢,好的不能再好的戶型了。 占地面積:8.18m*11.65m,95平方米左右; 建筑層高:四層; 建筑高度:15.74米(含屋頂); 設計功能: 一層戶型:玄關、客廳、廚房、餐廳、衛生間; 二層戶型:客廳、書房、臥室(帶衛生間衣帽間)、臥室、衛生間、陽臺; 三層戶型:客廳、書房、臥室(帶衛生間衣帽間)、臥室、衛生間、陽臺; 四層戶型:臥室、健身房、工具房、洗衣房、衛生間、露臺;
以上就是4款宅基地90平方設計圖,有一層、二層、三層、四層,如果沒有中意的,歡迎搜索圖紙之家。
圖紙之家-專注農村別墅/自建房設計18年,集合國內200余位經驗豐富的設計師,被評為口碑最好的農村建筑設計公司! |

新中式農村三層樓房設計圖,帶地下室,主體建筑面積110平米
占地:110平方米
帶配房的農村三層別墅設計圖,全家享精致生活
占地:167.29平方米
農村三間三層豪宅設計圖,自建別墅推薦戶型,帶地下室
占地:170平方米
共用中堂雙拼兄弟三層別墅設計圖,簡歐式風格
占地:230平方米
農村大氣四層樓房圖片及全套設計圖紙,復式客廳旋轉樓梯
占地:143平方米
二層新中式小別墅設計圖紙,舒適實用,16米乘12米
占地:189.88平方米
南方新農村三層房屋設計圖大全,預算30萬內
占地:145平方米
180平方米新農村三層別墅設計圖紙,效果圖+全套cad施工圖
占地:180平方米
農村二層住宅樓圖紙及效果圖,帶地下室,戶型好
占地:220平方米
復式三層別墅設計圖片及全套圖紙,客廳中空,外觀為歐式建筑的
占地:175平方米
最新款農村三層自建房戶型設計圖及外觀圖片照片,鄉村蓋房精選
占地:112.56平方米
歐式三層小洋樓設計圖,歐式最美三層別墅外觀效果圖
占地:124.28平方米
帶地下室的一層別墅設計圖,農村自建很實用
占地:192平方米
七字形農村自建房二層設計圖,“L”型別墅設計,簡約時尚!
占地:209平米左右
不帶廚房的一層別墅設計圖,三臥二廳超巴適,室外獨立廚房
占地:120平方米
三層兩開間小面寬別墅設計圖紙帶外觀效果圖,95平方米
占地:94.61平方米
好看的三層樓別墅圖片及全套建筑施工設計圖紙
占地:多種戶型
三層獨棟別墅設計圖紙帶效果圖,全套施工方案(建筑圖+結構圖
占地:144平方米
12米面寬一層農村別墅設計圖,實用又舒適
占地:110.41平方米
復式挑空現代簡約風三層別墅設計圖,簡單時尚最受年輕人最愛
占地:149.7平方米
推薦:10套新農村自建房設計圖,2026年最新設計
閱讀次數:4825737次
100套鄉村別墅圖片大全,2026年最新設計
閱讀次數:2492203次
6款農村蓋一層平房的設計圖,10萬元就能建起來
閱讀次數:1852637次
這11個一層農村自建房別墅火爆了朋友圈!我最喜歡戶型十!你呢
閱讀次數:750268次
農村6萬元建一層小別墅圖,你敢相信嗎
閱讀次數:567686次
農村5萬塊就能自建房,6套普通房子設計圖分享,你沒看錯!
閱讀次數:419410次
8套農村漂亮三間平房圖片,非常適合在農村修建!
閱讀次數:411197次
農村自建房化糞池怎么做?附方案及施工過程
閱讀次數:391783次
農村一層三間平房設計圖,告別土氣養老房,讓人忍不住點贊
閱讀次數:350581次
新農村二層樓房圖片造價12萬,挑一套回家建房吧!
閱讀次數:349126次
