
第一套:新農村帶陽臺三層樓房圖紙,豪華大氣,帶陽臺![]() 別墅效果圖
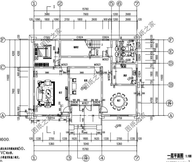
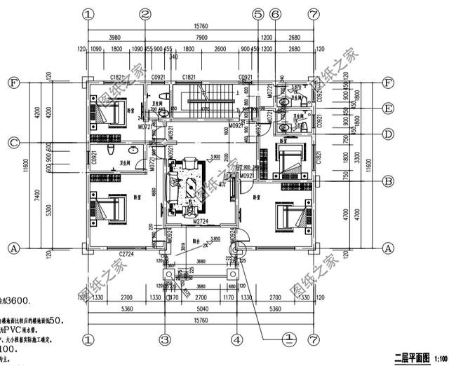
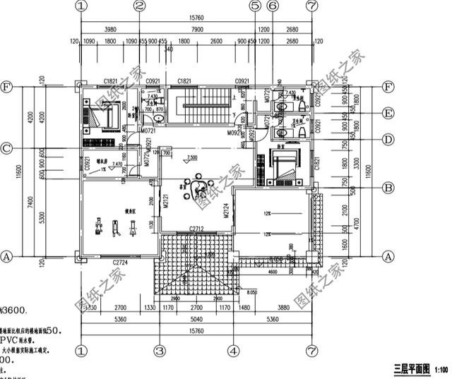
圖紙介紹:新農村帶陽臺三層樓房圖紙,占地180平米左右,豪華大氣。這棟三層歐式漂亮別墅,外觀真是讓人不禁豎大拇指。室內布局舒適大氣。農村蓋漂亮別墅是非常有臉面的事情。蓋一棟村里最漂亮的別墅,父母高興,鄰居羨慕的天天來串門,恨不得把你的門檻給踩爛。 占地面積:15.7m*11.6m,一層占地180平方米左右; 建筑層高:三層; 建筑高度:14.2米(含屋頂); 設計功能: 一 層:堂屋、客廳、廚房、餐廳、臥室、儲藏室、衛生間×2; 二 層:客廳、臥室(帶衛生間)×3、臥室、衛生間、陽臺; 三 層:茶室、臥室(帶衛生間)、臥室、晾衣房衛生間、健身區、大露臺、陽臺; ![]() ![]()
![]() 別墅戶型圖
第二套:農村房子設計圖三層獨棟別墅方案,占地130平方米,帶陽臺
![]() 別墅效果圖
圖紙介紹:農村房子設計圖三層獨棟別墅,占地130平方米,客廳中空+旋轉樓梯設計,寬敞大氣。造型美觀,外觀設計的非常養眼,讓外人看著就是一種享受。 占地面積:11.0m*13.6m,一層占地130平方米左右; 建筑層高:三層; 建筑高度:12.78米(含屋頂); 設計功能: 一 層:客廳、廚房、餐廳、臥室×2、休息室、衛生間; 二 層:客廳上空、臥室(帶衛生間,衣帽間)、臥室x2、衛生間、陽臺; 三 層:健身房、臥室(帶書房、陽臺)、臥室(帶涼亭)、臥室x2、衛生間、露臺; ![]() ![]() ![]() 別墅戶型圖
第三套:帶地下室三層別墅設計圖紙含外觀效果圖,帶陽臺
![]() 別墅效果圖
圖紙介紹:帶地下室三層別墅設計圖紙(含外觀效果圖),別墅設計方案,獨棟三層別墅,外墻裝飾采用淡黃色、灰綠色面磚,屋頂斜瓦采用紅色西瓦。一樓有入戶門廳,二樓有陽臺、三樓均有露臺。看到這種時尚簡約、不失氣質的別墅造型,很多農村朋友表示非常喜歡。 占地面積:14.14m*9.64m,134平方米左右; 建筑層高:三層; 建筑高度:12.6米(含屋頂); 設計功能: 一層戶型:門廳、客廳、餐廳、廚房、臥室(帶衛生間)、衛生間; 二層戶型:客廳上空、起居室、臥室、臥室(帶衛生間)、臥室(帶衣帽間)、衛生間、陽臺; 三層戶型:客廳、臥室x2、臥室(帶衛生間)、衛生間、露臺; ![]() ![]() 別墅戶型圖以上就是農村三層樓帶陽臺圖片,喜歡哪款,歡迎下方留言。 圖紙之家-專注農村別墅/自建房設計18年,集合國內200余位經驗豐富的設計師,被評為口碑最好的農村建筑設計公司! |

經典的農村三層小樓房設計圖,外觀圖片時尚、精致
占地:100平方米
13米開間的獨棟經濟型二層小別墅房屋設計圖,現代簡約
占地:150.39平方米
單棟多戶三層別墅設計圖,適合兩三家一起住
占地:125平米
二層雙拼別墅外觀效果圖及施工圖,帶露臺,14乘12米
占地:168平方米
30萬農村小別墅設計圖片,30萬別墅設計戶型推薦
占地:130平方米
農村小別墅設計圖二層,占地不大顏值高,最適合農村建造。
占地:108.66平方米
一層平房小面積雙拼房屋住宅設計圖,造價低,面積適中
占地:245.7平方米
造價30萬的三層簡歐新農村別墅設計施工圖紙及效果圖
占地:133平方米
二層農村房屋設計圖紙,帶效果圖和全套施工方案圖
占地:多種戶型
新中式小戶型二層別墅效果圖及全套施工設計圖,造價經濟實惠
占地:108平方米
簡單大氣二層兄弟雙拼樓房設計圖,外觀簡約
占地:268平方米
豪華大氣農村三層別墅圖紙,帶車庫、露臺,占地200平方米左右
占地:207平方米
180平方別墅房屋設計圖,外觀效果圖美觀
占地:180平方米
農村新款二層中式別墅設計圖效果圖,帶堂屋設計
占地:144平方米
二層帶車庫歐式尊貴別墅圖,客廳中空,美觀,大氣,實用
占地:300平方米
農村七字形獨棟一層別墅設計圖,設計感十足
占地:274.51平方米
100平方米實用二層半小別墅設計圖紙(帶閣樓層),住著安逸
占地:100平方米左右
160平小開間大進深農村三層別墅設計圖紙
占地:158.73平方米
農村簡易二層樓設計圖,外觀簡單漂亮,經典時尚
占地:140平方米
最美中式農村別墅二層三間的房子圖,帶土灶房,娛樂室,大露臺
占地:180平方米
推薦:10套新農村自建房設計圖,2026年最新設計
閱讀次數:4825737次
100套鄉村別墅圖片大全,2026年最新設計
閱讀次數:2492203次
6款農村蓋一層平房的設計圖,10萬元就能建起來
閱讀次數:1852637次
這11個一層農村自建房別墅火爆了朋友圈!我最喜歡戶型十!你呢
閱讀次數:750268次
農村6萬元建一層小別墅圖,你敢相信嗎
閱讀次數:567686次
農村5萬塊就能自建房,6套普通房子設計圖分享,你沒看錯!
閱讀次數:419410次
8套農村漂亮三間平房圖片,非常適合在農村修建!
閱讀次數:411197次
農村自建房化糞池怎么做?附方案及施工過程
閱讀次數:391783次
農村一層三間平房設計圖,告別土氣養老房,讓人忍不住點贊
閱讀次數:350581次
新農村二層樓房圖片造價12萬,挑一套回家建房吧!
閱讀次數:349126次
