
|
每次都會聽到很多人說,每次要回老家的時候都會感覺到全身心很放松,空氣都變得好了,大腦無時不運轉的想著,要是在農村蓋一層別墅,那日子就別提有多安逸了,每天都能感受到大自然的親近。 今天小編給大家帶來的四款農村別墅設計圖,五房一廳,簡單經濟,非常適合一家人居住。 款式一:農村一層自建房別墅設計圖,簡單實用
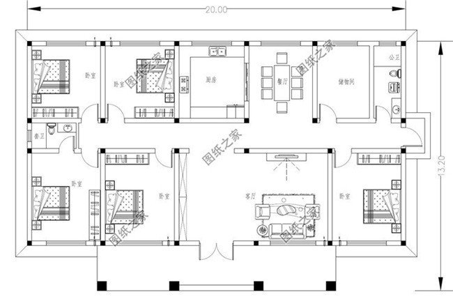
圖紙介紹:本戶型外觀設計的非常漂亮,磚紅色為主色,搭配灰色的屋頂,簡單美觀的配色讓人一眼愛上;室內布局合理實用,休閑娛樂的空間也有,非常合理。 占地面積:20m*12m,238平方米左右; 建筑層高:一層; 建筑高度:7.13米(含屋頂); 設計功能: 一層戶型:客廳、玄關、餐廳、廚房、儲藏室、娛樂室、主臥(帶衛生間)x2、臥室x3、衛生間; 款式二:農村一層別墅設計圖紙,色調清新,主體造價20萬左右
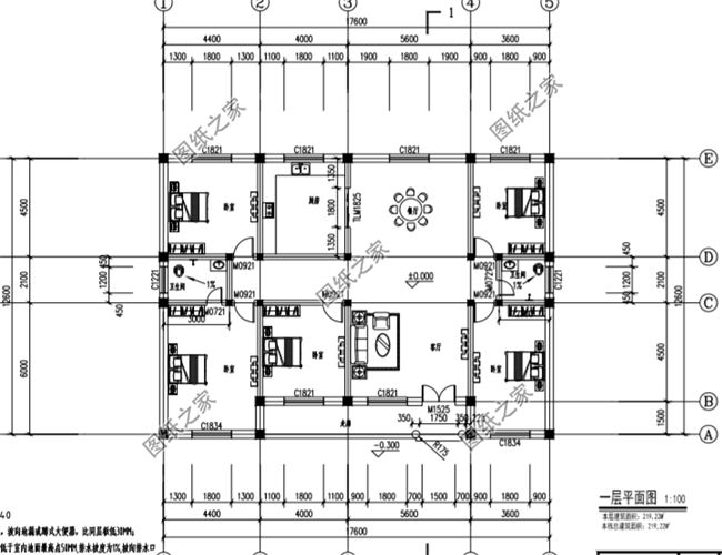
圖紙介紹:本戶型色調清新,門前的長廊可以供休閑以及晾曬東西,都是非常好的,外觀大氣優雅,內部合理。 占地面積:17.6m*12.6m,220平方米左右; 建筑層高:一層; 建筑高度:6.6米(含屋頂); 設計功能:客廳、餐廳、廚房、、臥室×5、衛生間×2; 款式三:一層平房新農村自建房設計圖,占地200平米左右,主體造價20萬以內
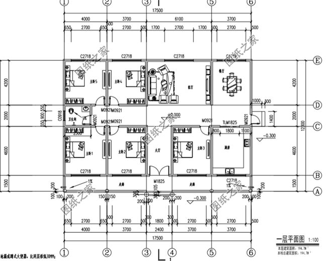
圖紙介紹:本戶型簡直就是獨家設計,款式可以說是非常的新穎了,沉穩大氣,在農村建一套這樣的房子簡直太美了。 占地面積:17.5m*12.3m,194平方米左右; 建筑層高:一層; 建筑高度:6.4米(含屋頂); 設計功能:過廳、客廳、餐廳、廚房、臥室×5、衛生間; 款式四:農村歐式小平房設計圖,大戶型一層別墅戶型
圖紙介紹:本戶型屬于大戶型別墅設計,歐式風格,簡約方正;顏色搭配非常好,既滿足了年輕人喜歡的精致,又有長輩喜歡的端莊大氣。 占地面積:20m*13.2m,216平方米左右; 建筑層高:一層; 建筑高度:6.59米(含屋頂); 設計功能: 一層戶型:客廳、儲物間、廚房、餐廳、臥室(衛生間)、臥室x4、衛生間; 這樣的農村一層別墅在老家蓋一棟,從此可以過上修閑安逸的生活,怎么樣?大家看這幾款別墅是否有你想要的呢?下方留言告訴小編。
圖紙之家-專注農村別墅/自建房設計18年,集合國內200余位經驗豐富的設計師,被評為口碑最好的農村建筑設計公司! |

歐式大氣新農村三層別墅豪宅設計圖,外觀高端,對稱設計
占地:225平方米左右
160平方米農村三層小別墅設計圖紙,13.8x12.7米
占地:163平方米
新中式農村自建房三層設計圖,外觀布局均滿分
占地:142.18平方米
外觀高檔大氣的三層別墅房屋設計圖,高端別墅設計展示
占地:147平方米
一層帶商鋪的四層樓房別墅設計圖紙和效果圖,房屋戶型圖
占地:133平方米
140平方米三層半新農村房屋別墅設計圖,帶車庫
占地:140平方米
農村四層復式房屋設計圖紙,占地105平方米預算35萬左右
占地:105平方米
帶地下室的一層別墅設計圖,農村自建房比較合適
占地:206平方米
農村一層中式三合院戶型設計圖,造型古香古色
占地:215平方米左右
農村120平三層樓房設計圖,造型現代,帶屋頂花園
占地:120平方米
高端大氣三層別墅設計圖,建好就是村里最靚的
占地:120平方米
一層中式七字型房屋設計圖,帶院子經典設計,耐看不過時
占地:163.18平方米
農村新款二層中式別墅設計圖效果圖,帶堂屋設計
占地:144平方米
帶架空層的三層農村別墅設計火了!雨季不怕返潮
占地:147.15平方米
簡單的二層樓房圖片及設計方案,自建樓房必看
占地:140平方米
二層簡歐風格自建房別墅戶型設計圖,造價26萬
占地:132.4平方米
18×15米新中式高檔農村三層別墅設計圖,低調奢華又實用
占地:195.91平方米
140平一層平房別墅設計圖,兩客廳兩衛四臥室
占地:140平方米
性價比超高一層農村自建別墅設計圖,戶型耐看不用爬樓
占地:158.6平方米
二層復式樓房設計圖,平實接地氣的平面布局
占地:180平方米
推薦:10套新農村自建房設計圖,2026年最新設計
閱讀次數:4825737次
100套鄉村別墅圖片大全,2026年最新設計
閱讀次數:2492203次
6款農村蓋一層平房的設計圖,10萬元就能建起來
閱讀次數:1852637次
這11個一層農村自建房別墅火爆了朋友圈!我最喜歡戶型十!你呢
閱讀次數:750268次
農村6萬元建一層小別墅圖,你敢相信嗎
閱讀次數:567686次
農村5萬塊就能自建房,6套普通房子設計圖分享,你沒看錯!
閱讀次數:419410次
8套農村漂亮三間平房圖片,非常適合在農村修建!
閱讀次數:411197次
農村自建房化糞池怎么做?附方案及施工過程
閱讀次數:391783次
農村一層三間平房設計圖,告別土氣養老房,讓人忍不住點贊
閱讀次數:350581次
新農村二層樓房圖片造價12萬,挑一套回家建房吧!
閱讀次數:349126次
