
|
平頂房看起來雖然平平無奇,但是在小編看來,在豐收的季節,我們可以用樓房房頂來晾曬農作物,既方便又實用。考慮到現在很多農村人種的莊稼不多,還可以把樓頂打造成一個樓頂花園或者陽光房,休閑娛樂。從而打造出一個屬于自己的私人空間。不要被坡屋頂限制想象,平屋頂房子也可以很時尚,今天分享的這三款二層平頂現代風別墅設計圖,美觀大氣,居住舒適,建在農村那就是一道美麗的風景線。 第一款:農村超現代平屋頂二層別墅設計圖,造價低,施工簡單圖紙介紹:本戶型造價低,施工簡單,簡約現代風格,讓戶主的生活層次都變的高雅。室內布局空間利用超高,一層設計有2室3廳2衛,;二層設計有臥室套間,超大的屋頂露臺,可以在屋頂做個泳池,不管是夏天還是冬天都非常享受。
占地面積:12.6m*13.1m,142平方米左右; 建筑層高:二層; 建筑高度:10.5米(含屋頂); 設計功能: 一層戶型:多功能廳、客廳、餐廳、廚房、臥室(帶衛生間)、臥室、衛生間; 二層戶型:起居室、臥室(帶書房、衣帽間、衛生間)、臥室、衛生間、陽臺、露臺;
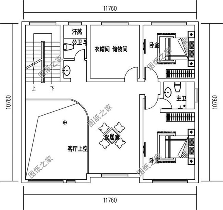
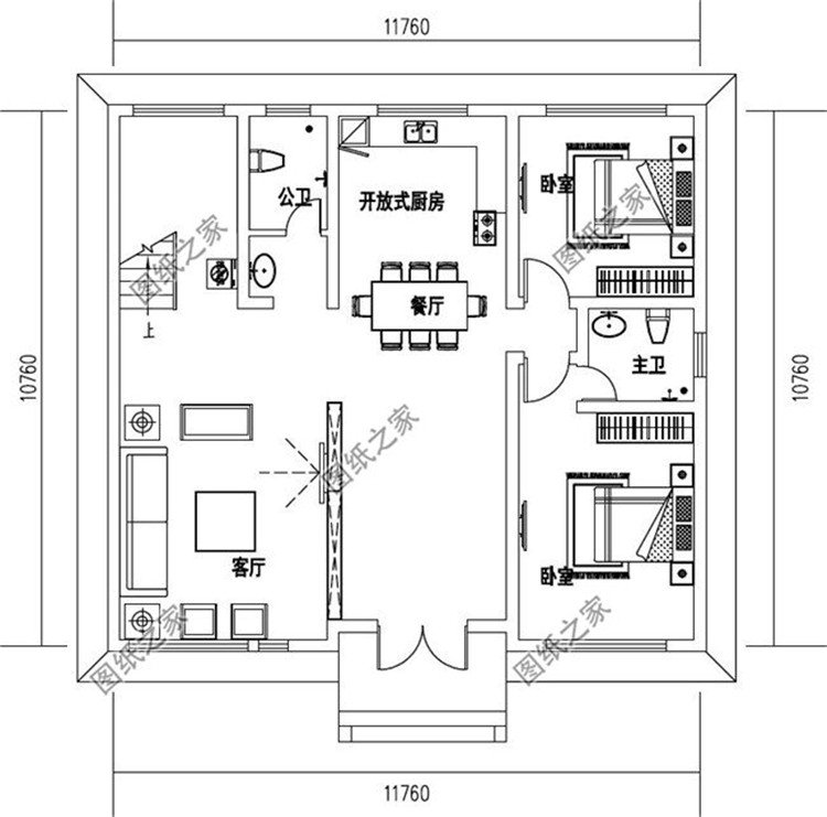
第二款:現代時尚二層別墅設計圖,平屋頂設計,占地130平方米圖紙介紹:本戶型平屋頂、現代風格的設計,別墅的上上下下無不充斥著現代、時尚的感覺;內部戶型十分合理,由于是平屋頂設計,屋頂的使用范圍很廣,為日常生活提供了便利。
占地面積:11.76m*10.76m,130平方米左右; 建筑層高:二層; 建筑高度:10米(含屋頂); 設計功能: 一層戶型:客廳、廚房、餐廳、臥室(帶衛生間)、臥室、衛生間; 二層戶型:客廳上空、起居室、臥室(帶衛生間)、臥室、衣帽間儲物間、衛生間;
第三款:簡單現代平屋頂四間二層自建房設計圖,簡潔實用圖紙介紹:本戶型平屋頂別墅設計,簡單實用,洋氣的不行!整體功能分區較為明確,公共區域較大,貼合農村生活;二層作為起居空間使用;采用平屋頂設計,為了騰出空間做屋頂的大露臺,可以做屋頂花園,還能觀賞美景,晾曬東西,實用性比較高。
占地面積:15.76m*13.26m,192平方米左右; 建筑層高:二層; 建筑高度:11.125米(含屋頂); 設計功能: 一層戶型:客廳、活動室、廚房、餐廳、臥室(帶衛生間)、臥室x2、衛生間; 二層戶型:起居室、書房、臥室(帶衣帽間、衛生間)、臥室x3、衛生間、陽臺x2;
你覺得農村建房時平屋頂好還是坡屋頂呢?下方留言告訴小編吧。
圖紙之家-專注農村別墅/自建房設計18年,集合國內200余位經驗豐富的設計師,被評為口碑最好的農村建筑設計公司! |

2026最美三層別墅設計圖紙及效果圖,十佳最美農村別墅
三層新農村別墅設計圖片及全套圖紙,外形對稱,帶露臺,這個戶
占地:160平方米
農村兩間兩層樓房設計圖,造價15萬左右,獨立的廚房設計,干凈
占地:95平方米
240平方米新農村漂亮的兄弟雙拼別墅設計圖紙,單戶120平
占地:239平方米
7字型一層半農村別墅設計圖,美觀舒適,買了別墅的都會羨慕你
占地:229.14平方米
農村最漂亮二層歐式別墅設計圖,面寬16.5米(含車庫)
占地:180.366
簡歐式三層半(4層)農村自建房別墅設計圖效果圖,帶車庫戶型
占地:127平方米
農村三層兄弟雙拼別墅設計圖及效果圖片,14X12米自建戶型
占地:154平方米
簡單的二層樓房圖片及設計方案,自建樓房必看
占地:140平方米
農村四間兩層別墅房屋設計圖,含外觀圖片
占地:160平方米
12×12米農村二層經濟型自建房設計圖,設計了6間臥室
占地:140平方米
新農村自建二層小樓圖,時尚大方,外型精美,室內布局也很贊
占地:137平方米
帶地下室的三層歐式別墅戶型設計圖,帶地下室農村自建房
占地:139.256平方米
三層新農村自建小型別墅設計圖及效果圖,三間三層樓房戶型
占地:114平方米
新農村140平米樓房圖四層獨棟別墅設計圖,簡歐外觀風格設計
占地:141平方米
120平方米新農村四層別墅設計圖紙12X10米50萬以內
占地:120平方米
三層平頂現代風格,農村自建房設計圖,可帶電梯,百看不厭
占地:259.55平方米
帶閣樓兩層半雙拼別墅房屋設計圖,帶外觀效果圖
占地:240平方米
歐式三層樓房設計圖,客廳中空,旋轉樓梯,帶土灶房
占地:206平方米
200平方米農村二層中式四合院設計圖,含外觀圖片
占地:200平方米
推薦:10套新農村自建房設計圖,2026年最新設計
閱讀次數:4825737次
100套鄉村別墅圖片大全,2026年最新設計
閱讀次數:2492203次
6款農村蓋一層平房的設計圖,10萬元就能建起來
閱讀次數:1852637次
這11個一層農村自建房別墅火爆了朋友圈!我最喜歡戶型十!你呢
閱讀次數:750268次
農村6萬元建一層小別墅圖,你敢相信嗎
閱讀次數:567686次
農村5萬塊就能自建房,6套普通房子設計圖分享,你沒看錯!
閱讀次數:419410次
8套農村漂亮三間平房圖片,非常適合在農村修建!
閱讀次數:411197次
農村自建房化糞池怎么做?附方案及施工過程
閱讀次數:391783次
農村一層三間平房設計圖,告別土氣養老房,讓人忍不住點贊
閱讀次數:350581次
新農村二層樓房圖片造價12萬,挑一套回家建房吧!
閱讀次數:349126次
