
第一款:130平方米現代時尚二層別墅設計施工圖及效果圖,平屋頂設計
![]() 別墅效果圖
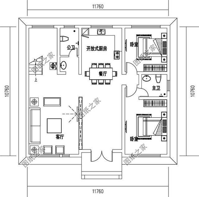
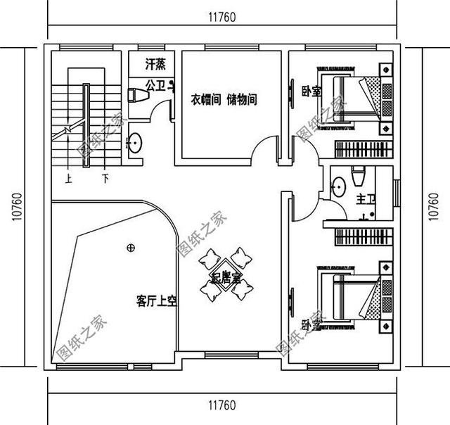
圖紙介紹:130平方米現代時尚二層別墅設計施工圖及效果圖,平屋頂設計,這款現代風格的別墅設計,別墅的上上下下無不充斥著現代、時尚的感覺,整體外立面的設計語言非常簡潔,除了筆直的白墻就是各種形狀的窗戶,為日常生活提供了便利。 占地面積:11.76m*10.76m,130平方米左右; 建筑層高:二層; 建筑高度:10米(含屋頂); 設計功能: 一層戶型:客廳、廚房、餐廳、臥室(帶衛生間)、臥室、衛生間; 二層戶型:客廳上空、起居室、臥室(帶衛生間)、臥室、衣帽間儲物間、衛生間; ![]() ![]() 別墅戶型圖
第二款:150平方米自建現代二層別墅施工設計圖帶外觀圖
![]() 別墅效果圖
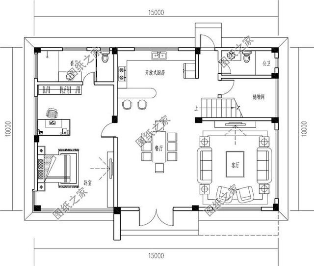
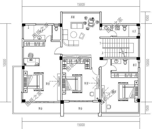
圖紙介紹:150平方米自建現代二層別墅施工設計圖帶外觀圖,平屋頂設計,15x10米,這款超現代風格的別墅設計, 新型材料的運用,幾何形狀的設計,藝術裝飾的設計,別墅的上上下下無不充斥著現代、時尚的感覺。 占地面積:15m*10m,150平方米左右; 建筑層高:二層; 建筑高度:10.2米(含屋頂); 設計功能: 一層戶型:客廳、廚房、餐廳、臥室(帶衛生間)、儲物間、衛生間; 二層戶型:茶座、臥室(帶衛生間)x2、臥室、衛生間、陽臺; ![]() ![]() 別墅戶型圖
第三款:農村自建房鄉村超現代平屋頂二層別墅圖
![]() 別墅效果圖
圖紙介紹:農村自建房鄉村超現代二層別墅圖設計方案,造價低,施工簡單,這款簡約現代風格農村別墅,立面用清水墻和文化石打造出極致的工藝氣息,空間留白的設計,展現出開闊通透的心境,置身其中,如入桃源又一村。 占地面積:12.6m*13.1m,142平方米左右; 建筑層高:二層; 建筑高度:10.5米(含屋頂); 設計功能: 一層戶型:多功能廳、客廳、餐廳、廚房、臥室(帶衛生間)、臥室、衛生間; 二層戶型:起居室、臥室(帶書房、衣帽間、衛生間)、臥室、衛生間、陽臺、露臺; ![]() ![]() 別墅戶型圖
以上就是平頂二層樓圖片大全,喜歡哪一款?歡迎下方留言。
圖紙之家-專注農村別墅/自建房設計18年,集合國內200余位經驗豐富的設計師,被評為口碑最好的農村建筑設計公司! |

新中式農村自建房三層設計圖,外觀布局均滿分
占地:142.18平方米
帶架空層車庫/地下室自建一層別墅設計圖,隔潮又能儲物
占地:91.32平方米
普通農村二層房子設計圖 ,復式結構,帶車庫,占地160平米左右
占地:160平方米
二層精美偏法式風格別墅設計圖,不但顏值高,品質還高
占地:154.17平方米
廚房餐廳在配房的歐式三層農村別墅設計方案,華麗又宜居
占地:177.58平方米
鄉村自建獨棟三層別墅樓房設計圖,預算30萬內
占地:120平方米
三層歐式豪華別墅設計方案,全套圖紙+效果圖
占地:168平方米
農村自建房別再做傳統客廳!“客廳+茶室”一體設計,寬敞明亮
占地:143.73平方米
面寬17米農村一層平房設計圖,簡約空間敞亮
占地:169.393平方米
最漂亮的農村二層小樓設計圖紙,簡約又大氣時尚
占地:120平方米
農村二層樓簡單大氣的樓房設計圖紙,帶車庫,帶露臺
占地:150平方米
雙戶168平方米小戶型新農村雙拼樓房設計建筑圖紙帶外觀圖
占地:168平方米
帶車庫三層自建別墅設計圖紙,客廳中空,外觀洋氣時尚,這款戶
占地:170平方米
13.5米乘11米兩層半別墅設計圖,中式與現代相融合
占地:148.5平方米
最新農村20萬元二層半別墅設計圖,占地僅110多平
占地:110平方米
新款的農村自建房子中式二層四合院別墅設計圖,占地300平左右
占地:304平方米
農村20萬元二層小樓房設計圖,經典新農村自建房戶型
占地:120平方米
農村二層中式小三合院別墅全套設計圖,民族特色風格
占地:122平方米
180平方別墅房屋設計圖,外觀效果圖美觀
占地:180平方米
高端大氣四層復式別墅房屋設計圖,含外觀效果圖
占地:270平方米
推薦:10套新農村自建房設計圖,2026年最新設計
閱讀次數:4825737次
100套鄉村別墅圖片大全,2026年最新設計
閱讀次數:2492203次
6款農村蓋一層平房的設計圖,10萬元就能建起來
閱讀次數:1852637次
這11個一層農村自建房別墅火爆了朋友圈!我最喜歡戶型十!你呢
閱讀次數:750268次
農村6萬元建一層小別墅圖,你敢相信嗎
閱讀次數:567686次
農村5萬塊就能自建房,6套普通房子設計圖分享,你沒看錯!
閱讀次數:419410次
8套農村漂亮三間平房圖片,非常適合在農村修建!
閱讀次數:411197次
農村自建房化糞池怎么做?附方案及施工過程
閱讀次數:391783次
農村一層三間平房設計圖,告別土氣養老房,讓人忍不住點贊
閱讀次數:350581次
新農村二層樓房圖片造價12萬,挑一套回家建房吧!
閱讀次數:349126次
