
|
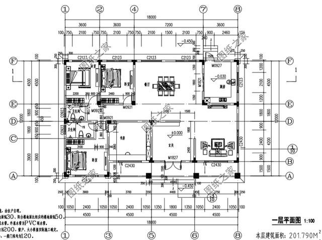
在父母的心中,總還是希望兒女不要離得太遠,在成家立業后可以回到自己身邊。兒女兒媳孫兒都能住在一起,享受天倫之樂。相比于在城市買房,回鄉建房還是容易多了,壓力也小了。 今天給大家分享三款適合農村五間房設計的戶型圖以及外觀圖,新穎大氣。 第一款:簡歐式一層自建房效果圖以及戶型圖![]() ![]() ![]() 這款農村一層別墅設計圖,3室2廳帶書房,造價20萬左右。別拿一層不當別墅,一層的房子建造起來省錢又美觀,簡單又好看,還別有一番風味,絲毫不比別墅差! 占地面積:18.0m*12.0m,200平方米左右 建筑層高:一層 建筑高度:6.14米(含屋頂) 設計功能:玄關、客廳、餐廳、廚房、、主臥(帶衛生間,書房)、臥室×2、衛生間 ![]() 第二款:中式一層自建房設計圖以及戶型圖![]() ![]() ![]() 這款簡單實用農村自建一層別墅設計圖,外觀設計非常漂亮,以磚紅色為主色調的外墻搭配灰色的屋頂,簡單美觀的配色。室內布局合理實用,休閑娛樂與日常生活于一體,屋頂上設有老虎窗,增強閣樓層上的采光及通風,又因為設有閣樓層,起到隔熱的作用,所以在夏天時,一層也不會悶熱。 占地面積:20m*12m,238平方米左右; 建筑層高:一層 建筑高度:7.13米(含屋頂) 功能: 一層戶型:客廳、玄關、餐廳、廚房、儲藏室、娛樂室、主臥(帶衛生間)x2、臥室x3、衛生間 ![]() 第三款; 簡歐式一層別墅效果圖以及戶型圖![]() ![]() ![]() 這款鄉村一層房屋設計圖,多臥室的設計,逢年過節家人也能有個體面的團聚之處。別墅外觀上是當下流行的簡歐風格,淺棕色外墻搭配大紅色坡屋頂,營造出一種休閑、浪漫的氛圍。 占地面積:17.0m*11.5m,195平方米左右 建筑層高:一層 建筑高度:6.2米(含屋頂) 設計功能:客廳、餐廳、廚房、臥室×6、衛生間 ![]()
以上就是小編分享的農村五間一層自建房戶型圖以及效果圖,有你喜歡的嗎?本文由圖紙之家原創,歡迎關注,帶你一起長知識! 圖紙之家-專注農村別墅/自建房設計18年,集合國內200余位經驗豐富的設計師,被評為口碑最好的農村建筑設計公司! |

80平方米新農村三層房屋設計圖,新農村住宅圖紙精選
占地:80平方米
現代風格二層別墅設計圖,外觀時尚、大氣
占地:153平方米
面寬13米二層鄉村自建別墅戶型圖,帶堂屋和露臺
占地:135.47平方米
新農村兩層樓房設計圖,占地110平米,戶型簡單實用
占地:110平方米
簡單大氣二層兄弟雙拼樓房設計圖,外觀簡約
占地:268平方米
五開間農村豪華三層別墅設計圖,大格局大氣派,大家庭建房首選
占地:227.04平方米
農村三層中式仿古別墅設計圖紙,中國風自建房戶型
占地:158.64平方米
二層自建房子最新款設計圖,平屋頂簡約經濟,美觀不失大方。
占地:115.64平方米
爆款農村兄弟雙拼自建房設計圖,占地不大舒適宜居
占地:147.2平方米
新農村三層樓房住宅設計方案,戶型圖、效果圖、全套施工圖
占地:180平方米
農村三層帶地下室住宅設計圖及圖片,房內設計了兩個套間
占地:210平方米
最漂亮的農村二層小樓房自建別墅設計圖紙及效果圖
占地:168平方米
帶閣樓二層別墅設計圖,帶外觀效果圖片
占地:160平方米
農村三層別墅新款圖片及戶型設計圖紙大全,110平簡歐風格
占地:110平方米左右
農村10萬元一層小別墅平房設計圖大全,含效果圖
占地:120平方米
二層別墅設計圖紙及效果圖,占地200平米,外觀精致優雅,小有情
占地:200平方米
帶小院七字形一層自建房戶型設計圖,平屋頂圖紙
占地:201.08平方米
對稱設計二層歐式別墅設計圖,優雅時尚有品位
占地:151.85平方米
經濟實用二層農村自建房設計圖,新中式風格12x11米
占地:114平方米
240平農村二層自建別墅設計圖紙,帶你體驗家的溫馨
占地:240平方米
推薦:10套新農村自建房設計圖,2026年最新設計
閱讀次數:4825737次
100套鄉村別墅圖片大全,2026年最新設計
閱讀次數:2492203次
6款農村蓋一層平房的設計圖,10萬元就能建起來
閱讀次數:1852637次
這11個一層農村自建房別墅火爆了朋友圈!我最喜歡戶型十!你呢
閱讀次數:750268次
農村6萬元建一層小別墅圖,你敢相信嗎
閱讀次數:567686次
農村5萬塊就能自建房,6套普通房子設計圖分享,你沒看錯!
閱讀次數:419410次
8套農村漂亮三間平房圖片,非常適合在農村修建!
閱讀次數:411197次
農村自建房化糞池怎么做?附方案及施工過程
閱讀次數:391783次
農村一層三間平房設計圖,告別土氣養老房,讓人忍不住點贊
閱讀次數:350581次
新農村二層樓房圖片造價12萬,挑一套回家建房吧!
閱讀次數:349126次
