
|
建房是人生大事,關乎到好幾代人居住的地方,在農村建房更是這樣。好面子是人的是本性,愛攀比是所有人的通病。以前農村窮,只為一日三餐發愁,顧不上攀比,現在有錢了,無論是城市還是農村,都開始攀比。就拿蓋房子來說,誰不希望自己家的房子是獨一無二的,生怕被比下去。說到這,小編就不得不給大家介紹這三款三間三層半別墅式樣圖了,誰見了都肯定心動。
方案一:三層半別墅設計圖,帶車庫,占地140平方米
圖紙介紹:這款別墅每間臥室都帶私衛,別墅外觀設計感十足,坡屋頂設計具有輕巧和空間延伸作用,與露臺配用起來非常有設計感。超大落地窗和多窗設計極 占地面積:12.0m*12.0m,140平方米; 建筑層高:四層; 建筑高度:16.2米(含屋頂); 設計功能: 一層戶型: 客廳,廚房,餐廳,公衛,車庫,臥室(帶主衛); 二層戶型:客廳上空,客廳,公衛,臥室(帶衛生間)X3; 三層戶型:臥室(帶衛生間)X3,陽臺,健身房,書房,起居室,公衛; 四層戶型:露臺,陽臺,書房,公衛,起居室,臥室(帶衛生間)X3; ![]() ![]() ![]() ![]() ![]() 方案二:鄉村建房三層半別墅設計圖紙,豪宅戶型
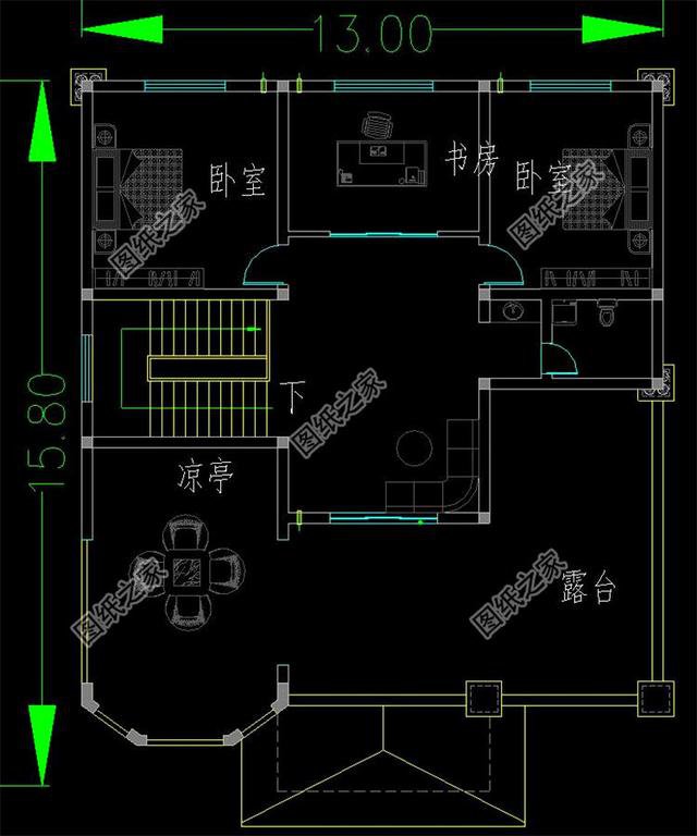
圖紙介紹:這款戶型背面有多個窗戶,加強室內采光,窗戶之間用浮雕裝飾,加強美觀性;多邊形窗的使用,同樣能加強造型的立體感,而且這樣室內采光更好,大門處的門廳設計很重要,配以方形羅馬柱很大氣。屋面的俯瞰效果,同樣很讓人心動,尤其是搭配涼亭,效果更好。 占地面積:13m*15.8m,185.04平方米左右; 建筑層高:四層; 建筑高度:16.144米(含屋頂); 設計功能: 一層戶型:玄關、客廳、廚房、餐廳、茶室(棋牌室)、臥室(帶衣帽間)、衛生間; 二層戶型:客廳、書房、臥室(帶衛生間)、臥室x3、衛生間、陽臺; 三層戶型:客廳、書房、臥室(帶衛生間)、臥室x3、衛生間、陽臺; 四層戶型:書房、臥室x2、衛生間、露臺、涼亭; ![]() ![]() ![]() ![]() ![]() 方案三:農村三層半自建別墅設計圖,占地90平方米
圖紙介紹:這款戶型造價低,外觀溫馨,多窗多柱的設計,營造了滿滿的歐式浪漫氣息。一層餐廳與廚房相連,干凈衛生;客廳寬敞,可供家人放松休息。二層有3間臥室,大小合理;陽臺和客廳相連,光線充足;三層臥室充足;四層大露臺寬敞,方便晾曬。 占地面積:9.35m*10.62m,92.17平方米左右; 建筑層高:四層; 建筑高度:15.836米(含屋頂); 設計功能: 一層戶型:客廳、廚房、餐廳、茶室、臥室、衛生間; 二層戶型:客廳、臥室(帶衛生間)、臥室x2、衛生間、陽臺; 三層戶型:臥室(帶衛生間)、臥室x3、衛生間、陽臺; 四層戶型:健身房、多功能區、衛生間、露臺、陽臺; ![]() ![]() ![]() ![]() ![]() 這三款別墅絕對的獨一無二,非常的亮眼。喜歡的朋友下方留言。
圖紙之家-專注農村別墅/自建房設計18年,集合國內200余位經驗豐富的設計師,被評為口碑最好的農村建筑設計公司! |

戶型簡單實用的三層農村房屋設計圖紙,復式結構,大面積開窗,
占地:170平方米
100平內簡單精致的小戶型自建房二層設計圖,旋轉樓梯
占地:97.08平方米
新農村兩層帶露臺自建房設計圖,造價30萬內
占地:170平方米
鄉村簡約經濟型二層別墅設計圖紙(效果圖+全套施工方案)
占地:145平方米
新農村現代簡約別墅建筑設計圖紙(含外觀效果圖),28萬左右
占地:107平方米
自建二層獨棟別墅建筑施工圖,含效果圖和全套設計圖紙
占地:198.72平方米
最新小別墅設計圖,復式三層,外觀非常漂亮
占地:158平方米
農村10萬元一層小別墅設計圖紙,戶型實用又合理
占地:130平方米
95平米二層別墅必蓋戶型圖,造型洋氣,布局接地氣,趕緊回村建
占地:95.38平方米
農村新戶型房子設計圖二層,占地120平米,布局實用
占地:120.29平方米
160平方米農村三層別墅CAD設計圖紙及效果圖,13.7x12.6米
占地:160平方米
80平方米三層農村自建民房設計圖,小戶型別墅方案
占地:81平方米
徽派自建房一層設計圖,七字型設計,獨立餐廚便捷實用
占地:171.65平方米
帶地下室的三層歐式別墅戶型設計圖,帶地下室農村自建房
占地:139.256平方米
私人二層中式四合院別墅建筑設計圖,新農村經濟實用戶型
占地:145平方米
最火現代風三層半別墅設計圖,時尚簡約寬敞舒適
占地:169平方米
一層農村小平房設計圖,功能齊全造價低,兩款戶型可選
占地:多戶型可選
帶車庫的一層雙拼別墅設計方案,出入方便保安全,大氣優雅還長
占地:179.7平方米
100平方建房子設計圖及效果圖,簡單實用的戶型設計
占地:97.3平方米
推薦:10套新農村自建房設計圖,2026年最新設計
閱讀次數:4825737次
100套鄉村別墅圖片大全,2026年最新設計
閱讀次數:2492203次
6款農村蓋一層平房的設計圖,10萬元就能建起來
閱讀次數:1852637次
這11個一層農村自建房別墅火爆了朋友圈!我最喜歡戶型十!你呢
閱讀次數:750268次
農村6萬元建一層小別墅圖,你敢相信嗎
閱讀次數:567686次
農村5萬塊就能自建房,6套普通房子設計圖分享,你沒看錯!
閱讀次數:419410次
8套農村漂亮三間平房圖片,非常適合在農村修建!
閱讀次數:411197次
農村自建房化糞池怎么做?附方案及施工過程
閱讀次數:391783次
農村一層三間平房設計圖,告別土氣養老房,讓人忍不住點贊
閱讀次數:350581次
新農村二層樓房圖片造價12萬,挑一套回家建房吧!
閱讀次數:349126次
