
|
對于農村建房子來說,考慮最多的可能就是造價方面了。誰不想花少錢建一個好看的房子,但是這樣的要求確實很讓人頭疼。今天小編就給大家帶來三款農村二層20萬自建房圖,每一款都很經典時尚,造價也都在20萬左右,可以說是又經濟又美觀的三款了,還有陽臺和露臺,可以晾曬衣物和農作物,這樣的戶型簡直太適合農村建造了。
方案一:農村二層小別墅設計圖,占地120平方米,漂亮實用
圖紙介紹:本戶型簡單實用造價低,一層進門就是入戶前廳,一間主臥一間次臥;二層設有三間臥室和一間儲藏室,另外就是陽臺設計了,晾曬衣物也是很方便的;別墅屋頂大露臺設計,可以作為家庭聚會的地方。 占地面積:13m*8.6m,116平方米; 建筑層高:二層; 建筑高度:10.45米(含屋頂); 設計功能: 一層戶型:廚房,餐廳,客廳,公衛,臥室X2; 二層戶型:儲藏室,主臥(帶衛生間),起居室,公衛,臥室X2,陽臺; 屋頂:大露臺; ![]() ![]() ![]() ![]() 方案二:農村兩層小別墅設計圖,時尚大方,外觀精致
圖紙介紹:這款別墅戶型時尚大方,外型精美,室內布局也很贊,是非常棒的一個戶型,關鍵是造價極低。 占地面積:12.6m*13.2m,137平方米左右; 建筑層高:二層; 建筑高度:10.5米(含屋頂); 設計功能: 一層戶型:客廳、餐廳、廚房、衛生間、主臥、車庫; 二層戶型:主臥(帶書房,衣帽間,露臺,衛生間)、臥室x2、衛生間、露臺; ![]() ![]() ![]() ![]() 方案三:新農村二層樓房設計圖,主體造價20萬左右
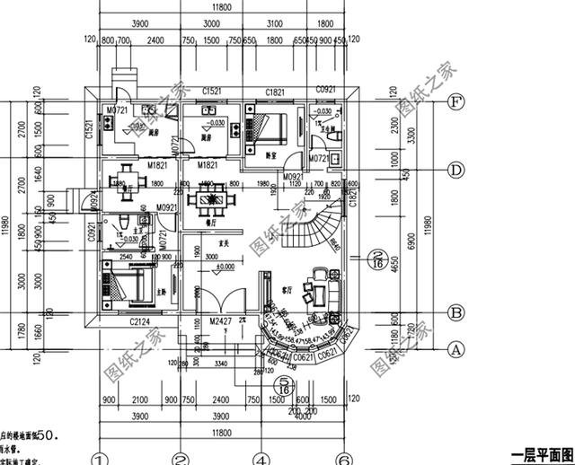
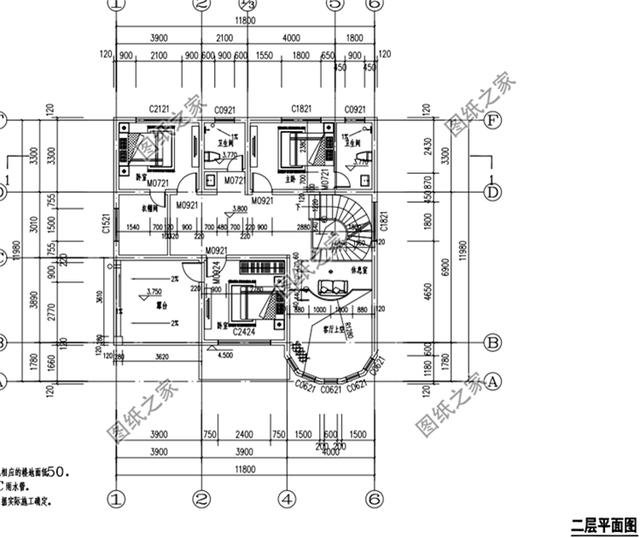
圖紙介紹:本戶型簡單大方,漂亮接地氣,雙廚房雙餐廳的設計和父母同住 占地面積:11.8m*11.98m,130平方米左右; 建筑層高:二層; 建筑高度:9.9米(含屋頂); 設計功能: 一層戶型:玄關、客廳、餐廳×2、廚房×2、衛生間、主臥(帶衛生間)、臥室; 二層戶型:客廳上空、休息室、主臥(帶衛生間)、臥室(帶衣帽間)、臥室、衛生間、陽臺、大露臺; ![]() ![]() ![]() ![]() 不知道這幾款別墅你們更喜歡哪一款呢?下方留言告訴小編吧。
圖紙之家-專注農村別墅/自建房設計18年,集合國內200余位經驗豐富的設計師,被評為口碑最好的農村建筑設計公司! |

帶小院七字形一層自建房戶型設計圖,平屋頂圖紙
占地:201.08平方米
一層農村三合院平房設計圖,可以倆兄弟或和父母兒女一起住
占地:202.79平方米
簡約大氣農村自建三層別墅設計圖,布局合理,很適合農村人自建
占地:139.471平方米
二層雙拼別墅外觀效果圖及施工圖,帶露臺,14乘12米
占地:168平方米
帶閣樓二層別墅設計圖,帶外觀效果圖片
占地:160平方米
大氣農村三層歐式雙拼別墅全套施工圖紙,帶堂屋設計,外觀圖片
占地:196.056平方米
150平方米大平層別墅設計圖,時尚大氣舒適實用
占地:149.43平方米
占地120平米清新脫俗簡單二層別墅設計方案,含效果圖
占地:119.01平方米
豪華二層別墅設計圖紙及效果圖,帶車庫,歐式別墅方案
占地:170平方米
農村一層別墅設計圖,3室2廳帶書房,占地面積200平米左右
占地:200平方米
鄉村三層別墅設計圖紙,帶屋頂花園(含效果圖)
占地:150平方米
時尚的農村二層別墅圖紙設計,現代風格,簡約的外觀
占地:152平方米左右
漂亮的二層中式現代別墅圖,配色非常的溫馨淡雅
占地:160平方米
農村三層四合院別墅設計圖紙,自建房建這棟面子十足
占地:227.49平方米
四開間2層別墅設計圖,外觀圖配色清新淡雅,占地200平米
占地:200平方米
現代二層農村別墅全套設計圖,大旋轉露臺+超大中空客廳
占地:133平方米
帶配房的二層農村小別墅設計圖,大方適用,耐看經濟
占地:152.28平方米
最新款二層半別墅圖片,占地115平米左右,帶地下室,帶露臺
占地:115平方米
進深14米的二層小別墅設計圖,農村自建房好方案
占地:144平方米左右
簡易農村別墅房子設計圖,好看實惠,施工也簡單
占地:200平方米
推薦:10套新農村自建房設計圖,2026年最新設計
閱讀次數:4825737次
100套鄉村別墅圖片大全,2026年最新設計
閱讀次數:2492203次
6款農村蓋一層平房的設計圖,10萬元就能建起來
閱讀次數:1852637次
這11個一層農村自建房別墅火爆了朋友圈!我最喜歡戶型十!你呢
閱讀次數:750268次
農村6萬元建一層小別墅圖,你敢相信嗎
閱讀次數:567686次
農村5萬塊就能自建房,6套普通房子設計圖分享,你沒看錯!
閱讀次數:419410次
8套農村漂亮三間平房圖片,非常適合在農村修建!
閱讀次數:411197次
農村自建房化糞池怎么做?附方案及施工過程
閱讀次數:391783次
農村一層三間平房設計圖,告別土氣養老房,讓人忍不住點贊
閱讀次數:350581次
新農村二層樓房圖片造價12萬,挑一套回家建房吧!
閱讀次數:349126次
