
|
戶型一:兩層半復式農村自建房設計圖,經典不過時戶型
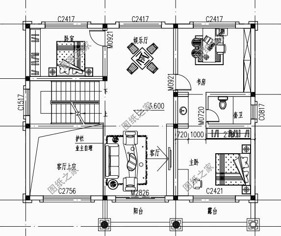
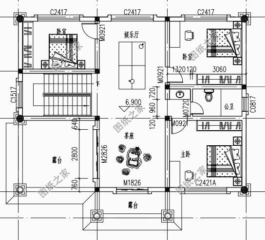
![]() 圖紙介紹:兩層半復式農村自建房設計圖,理想生活標配。占地11×12米,客廳中空,帶超大露臺。一家人和和睦睦 占地面積:11.0m*12.0m,一層占地125平方米左右; 建筑層高:三層; 建筑高度:12.68米(含屋頂); 設計功能: 一 層:客廳、廚房、餐廳、臥室(衛生間)、臥室、衛生間; 二 層:客廳上空、小客廳、臥室(帶書房)、臥室(帶衛生間)、臥室、衛生間、陽臺、露臺; 三 層:健身房、臥室(帶衛生間)、臥室、衛生間、大露臺; ![]() ![]() ![]() 戶型二:新農村兩層半小洋樓房設計圖
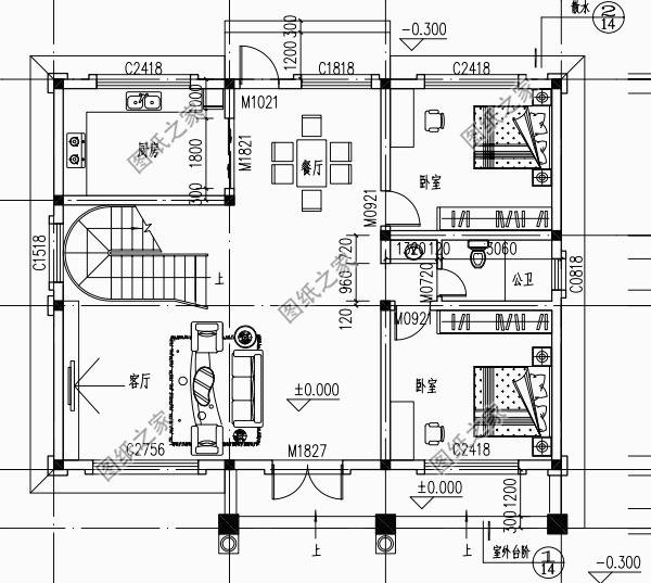
![]() 圖紙介紹:新農村兩層半樓房設計圖,典型的歐式風格小別墅,外觀時尚大氣,外墻采用了真石漆處理墻面,室內一二層分別設置了客廳,窗戶也是大落地窗,屋頂的紅瓦洋氣十足。蓋一幢這樣的房子,一定能在鄉親們面前感覺倍兒有面子。 占地面積:10.76m*10.5m,118平方米左右; 建筑層高:三層; 建筑高度:11.2米(含屋頂); 設計功能: 一層戶型:門廳、客廳、茶藝區、餐廳、臥室(帶衛生間)、臥室、洗衣房、衛生間; 二層戶型:客廳、臥室x2、臥室(帶衛生間衣帽間)、衛生間、露臺; 三層戶型:臥室(帶衣帽間)、臥室、衛生間、陽臺、露臺; ![]() ![]() ![]() 戶型三:兩層半農村自建房別墅設計圖紙,客廳挑空,帶大露臺
![]() 圖紙介紹:兩層半農村自建房別墅設計圖紙,客廳挑空,帶大露臺。室內布局通透大氣,多臥室的選擇豐富了家中人口的日常生活需要,除去必要的各種居室外,還設計了一個露臺供大家使用。 占地面積:13.0m*11.5m,一層占地136平方米左右; 建筑層高:三層; 建筑高度:12.78米(含屋頂); 設計功能: 一 層:客廳、廚房、餐廳、臥室×2、衛生間; 二 層:客廳上空、客廳、臥室(帶書房,衛生間)、臥室、娛樂廳、陽臺; 三 層:茶室、娛樂廳、臥室x3、衛生間、大露臺; ![]() ![]() ![]() 以上就是2020年新款別墅圖兩層半戶型圖,戶型實用,外觀漂亮,喜歡哪款,歡迎下方留言。
圖紙之家-專注農村別墅/自建房設計18年,集合國內200余位經驗豐富的設計師,被評為口碑最好的農村建筑設計公司! |

150平米一層7字型別墅設計方案,功能齊全舒適簡約,設計感十足
占地:154.48平方米
130平帶閣樓兩層半別墅房屋設計圖,含外觀效果圖
占地:130平方米
帶配房的農村三層別墅設計圖,全家享精致生活
占地:167.29平方米
帶土灶房一層四開間別墅設計方案,溫馨舒適的雅舍
占地:164.34平方米
廚房餐廳在配房的歐式三層農村別墅設計方案,華麗又宜居
占地:177.58平方米
時尚典雅歐式三層自建房設計圖,美觀大氣簡單舒適,好看到沒得
占地:153.12平方米
2026新款農村三層雙拼自建房設計圖,占地150平米左右
占地:150平方米
對稱型歐式別墅設計圖,穩重實用,開間18米,適合全國農村建
占地:228.2 平方米
130平左右三層樓房設計圖,新農村住宅自建推薦
占地:128平方米
歐式漂亮農村三層自建房設計圖紙,兩個戶型方案可選
占地:多戶型可選
陽臺封閉的簡約實用二層別墅設計圖,15x12.8米
占地:165平方米
帶架空層的農村二層別墅設計方案,造型大氣漂亮
占地:176平方米
三層別墅40萬左右氣派的外觀效果圖,含全套施工設計圖
占地:161.46平方米
豪華大氣農村三層別墅圖紙,帶車庫、露臺,占地200平方米左右
占地:207平方米
農村二間二層房子設計方案圖,造型小巧精致,10米乘12米
占地:110平方米
10萬內2層小洋樓設計圖,平屋頂,戶型設計合理
占地:90平方米
一層帶地下室雙拼別墅設計圖,理想鄉村生活的標配
占地:416平方米
現代風格精致兩層農村自建房住宅設計圖,帶儲藏室
占地:163平方米
農村20萬元二層小樓圖片及全套圖紙,外型美造價低
占地:多種戶型
95平米二層別墅必蓋戶型圖,造型洋氣,布局接地氣,趕緊回村建
占地:95.38平方米
推薦:10套新農村自建房設計圖,2026年最新設計
閱讀次數:4825737次
100套鄉村別墅圖片大全,2026年最新設計
閱讀次數:2492203次
6款農村蓋一層平房的設計圖,10萬元就能建起來
閱讀次數:1852637次
這11個一層農村自建房別墅火爆了朋友圈!我最喜歡戶型十!你呢
閱讀次數:750268次
農村6萬元建一層小別墅圖,你敢相信嗎
閱讀次數:567686次
農村5萬塊就能自建房,6套普通房子設計圖分享,你沒看錯!
閱讀次數:419410次
8套農村漂亮三間平房圖片,非常適合在農村修建!
閱讀次數:411197次
農村自建房化糞池怎么做?附方案及施工過程
閱讀次數:391783次
農村一層三間平房設計圖,告別土氣養老房,讓人忍不住點贊
閱讀次數:350581次
新農村二層樓房圖片造價12萬,挑一套回家建房吧!
閱讀次數:349126次
