
|
近年來,農村人都由在城里買房子轉變到了回村建別墅,一個個蓋的豪華大氣,比城里好多了。在農村什么樣的房子更受歡迎呢?當然是外觀大氣,內部結構合理的別墅了,住著舒適又有面子,這樣的別墅誰不喜歡?今天給大家推薦三款三層磚混結構別墅設計圖,外觀美觀,造價經濟,趕快收藏吧。
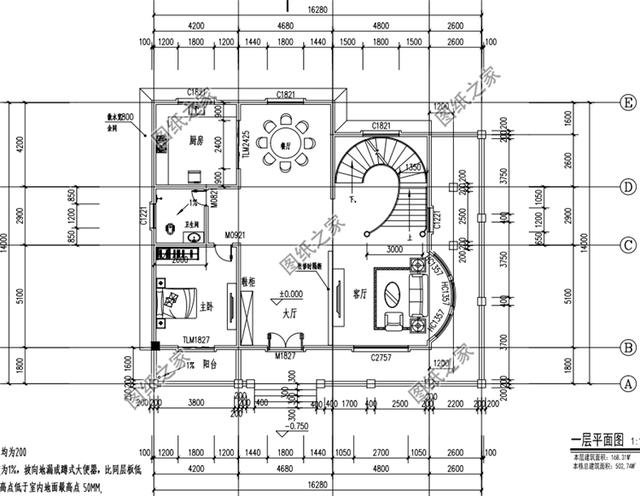
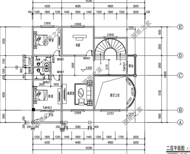
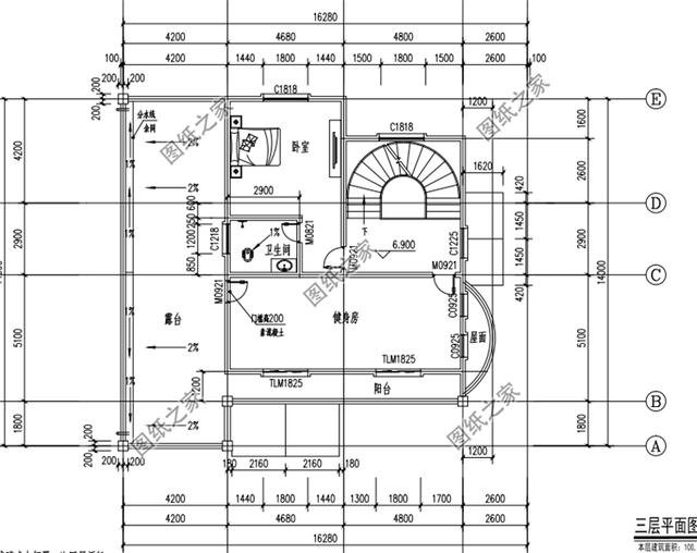
款式一:農村三層復式別墅設計圖,帶地下室設計
![]() ![]() ![]() ![]() ![]() 圖紙介紹:本戶型為帶地下室設計,客廳中空,帶旋轉樓梯,寬大的落地窗和弧形墻體上的玻璃提供良好的采光,造型也很別致、新穎,內部布局非常合理,實用、功能齊全,地下室可自定義功能,三層提供健身娛樂房和大露臺,滿足多種生活場景。 占地面積:16.28m*14.00m,一層建筑面積168平; 建筑層高:三層(帶地下室); 建筑高度:13.35米(含屋頂); 設計功能: 地下層:儲藏間、衛生間、KTV(可自定義功能) 一 層:大廳、客廳、廚房、餐廳、臥室、衛生間、走廊; 二 層:客廳上空、起居室、書房、主臥(帶衛生間)、臥室、衛生間、陽臺; 三 層:主臥(帶衛生間)、健身房、大露臺、陽臺;
款式二:造價30萬農村三層別墅設計圖,戶型利用率高
![]() ![]() ![]() ![]() 圖紙介紹:本戶型利用率高,設計經典時尚,有多個飄窗設計,延伸室內的空間,一樓客廳空間非常大,三樓設有方形大露臺,視野開闊,活動空間充足。 占地面積:11.76m*10.76m,130平方米左右; 建筑層高:三層; 建筑高度:13.44米(含屋頂); 設計功能: 一層戶型:客廳、神臺、餐廳、廚房、臥室(帶衛生間)、儲物間、洗衣房、衛生間; 二層戶型:客廳上空、客廳、臥室x2、主臥(帶衛生間)、衛生間、陽臺; 三層戶型:客廳、臥室x2、臥室(帶衛生間)、衛生間、陽臺、露臺;
款式三:占地140平米新農村三層復式樓房設計圖,造價不到30萬
![]() ![]() ![]() ![]() 圖紙介紹:本戶型占地140平米,整體戶型非常方正,外立面采用墻磚和文化石做涂裝,灰藍色的屋頂,暖色系搭配,使整個外觀都非常明朗與溫馨,造價也很經濟。 占地面積:11.76m*11.29m,138平方米左右; 建筑層高:三層; 建筑高度:12.58米(含屋頂); 設計功能: 一層戶型:客廳、餐廳、廚房、臥室(帶衛生間)、儲藏室、衛生間; 二層戶型:客廳上空、起居室、臥室(帶衛生間)、臥室x2、書房、衛生間、陽臺; 三層戶型:臥室(帶衛生間)、臥室x2、棋牌室、衛生間、露臺; 這樣的房子你不喜歡嗎?趕快收藏吧。
圖紙之家-專注農村別墅/自建房設計18年,集合國內200余位經驗豐富的設計師,被評為口碑最好的農村建筑設計公司! |

高端三層豪宅別墅設計方案圖,帶地下室,過悠然愜意生活
占地:127.06平方米
私人自建三層別墅設計圖紙帶效果圖,歐式風格、外觀大氣
占地:209.44平方米
一層中式三合院農村自建別墅圖,面寬18米帶堂屋設計
占地:165.72平方米
三層獨棟帶露臺房屋設計圖,含外觀圖片大全
占地:110平方米
130平帶閣樓兩層半別墅房屋設計圖,含外觀效果圖
占地:130平方米
豪華大氣三層農村自建房設計圖,經典大氣,百看不厭,新中式風
占地:141.75平方米
帶堂屋二層小別墅設計圖紙帶外觀圖,13.6米x9米
占地:122.4平方米
新農村全套四層別墅設計圖紙占地面積:190平方米造價預算:42萬
占地:190平方米
150平方米農村二層房屋建筑設計圖,15.2x9.4米
占地:148平方米
2026年新款一層住宅別墅設計圖紙,中式風格漂亮極了
占地:207平方米
不帶廚房的一層別墅設計圖,三臥二廳超巴適,室外獨立廚房
占地:120平方米
蓋別墅圖紙新農村簡歐二層房屋設計圖,12米×12米左右
占地:128平方米左右
12米×10米左右一層別墅平房戶型圖及設計圖,造價低
占地:110平方米
豪華復式三層別墅設計圖紙,效果圖+建筑施工圖+結構施工圖
占地:126平方米
新款漂亮農村三層別墅建筑設計圖紙帶效果圖片,3種戶型
占地:125平方米
簡歐復式四層別墅房屋設計圖,外觀圖高端、大氣
占地:143平方米
小型三層別墅cad建筑圖紙帶效果圖,帶屋頂露臺
占地:101平方米左右
150平米簡歐三層農村別墅設計圖,低調又奢華
占地:151.2平方米
農村三間三層豪宅設計圖,自建別墅推薦戶型,帶地下室
占地:170平方米
方方正正的二層農村別墅設計圖,普通農村人都能建
占地:201.05平方米
推薦:10套新農村自建房設計圖,2026年最新設計
閱讀次數:4825737次
100套鄉村別墅圖片大全,2026年最新設計
閱讀次數:2492203次
6款農村蓋一層平房的設計圖,10萬元就能建起來
閱讀次數:1852637次
這11個一層農村自建房別墅火爆了朋友圈!我最喜歡戶型十!你呢
閱讀次數:750268次
農村6萬元建一層小別墅圖,你敢相信嗎
閱讀次數:567686次
農村5萬塊就能自建房,6套普通房子設計圖分享,你沒看錯!
閱讀次數:419410次
8套農村漂亮三間平房圖片,非常適合在農村修建!
閱讀次數:411197次
農村自建房化糞池怎么做?附方案及施工過程
閱讀次數:391783次
農村一層三間平房設計圖,告別土氣養老房,讓人忍不住點贊
閱讀次數:350581次
新農村二層樓房圖片造價12萬,挑一套回家建房吧!
閱讀次數:349126次
