
|
建房子除了美觀,還要實用,這才是對于農村人建房的最大需求。所以,建一棟房子不僅要大氣美觀,還要戶型實用,這樣才滿足建房的的初衷。今天小編給大家推薦三款自建房16×12米設計圖紙,二層小樓住著非常舒適,而且內部結構功能布局都非常的合理。
第一款:農村開間16米二層別墅設計圖,外觀美觀時尚
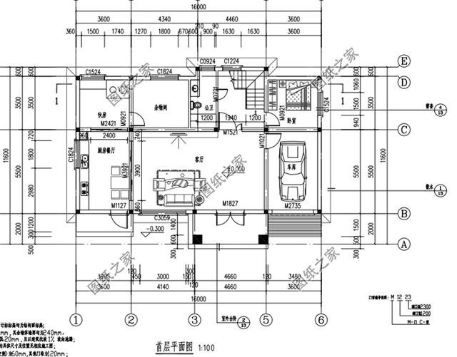
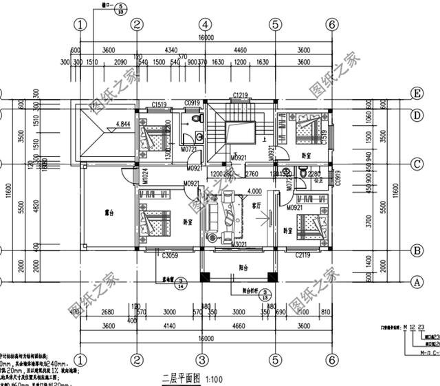
![]() ![]() 圖紙介紹:這款二層別墅占地200平米左右,大開間戶型,主體造價35萬左右就能建。外觀好看,多窗設計,增強室內采光和通風;房間多,家庭人口多也不怕。 占地面積:16.2m*11.7m,205平方米左右; 建筑層高:二層; 建筑高度:10.2米(含屋頂); 設計功能: 一層戶型:客廳、餐廳、廚房、衛生間、主臥(帶衛生間)、臥室×3、儲藏間; 二層戶型:客廳、臥室x4、書房、衛生間、陽臺、大露臺; ![]() ![]() 第二款:農村中式兩層別墅設計圖,帶車庫設計
![]() 圖紙介紹:這款別墅開間16米左右,帶車庫設計,共有七間臥室帶露臺。一層東側設計有烤火房,非常符合南方人的生活習慣,為冬日取暖提供條件;全屋一共布置7間臥室,足夠一家人居住使用。寬敞的大露臺方便晾曬衣物。 占地面積:16.26m*11.76m,198平方米左右; 建筑層高:二層; 建筑高度:8.875米(含屋頂); 設計功能: 一層戶型:客廳、烤火房、儲藏室、餐廳、廚房、臥室x2、衛生間x2、車庫; 二層戶型:臥室(帶衣帽間)、臥室x4、衛生間x2、露臺; ![]() ![]() 第三款:農村二層自建別墅設計圖,簡單大氣,帶車庫和露臺
![]() ![]() 圖紙介紹:本戶型帶車庫和大露臺,結構比較簡單,時尚又實用。屋頂采用藍色瓦,主墻外面采用黃色面磚搭配米白色欄桿,色彩明亮,簡單大氣。 占地面積:16.0m*11.6m,占地面積156平方米左右; 建筑層高:二層; 建筑高度:9.8米(含屋頂); 設計功能: 一層戶型:客廳、餐廳、廚房、衛生間、臥室、車庫、伙房、雜物間; 二層戶型:客廳、臥室(帶衛生間)、臥室x3、衛生間、陽臺、大露臺; ![]() ![]() 不知道這三款有沒有大家中意的款式呢?喜歡收藏。
圖紙之家-專注農村別墅/自建房設計18年,集合國內200余位經驗豐富的設計師,被評為口碑最好的農村建筑設計公司! |

二層半房子設計圖及效果圖,客廳中空,南北通透
占地:160平方米
100平方米新農村二層別墅設計圖紙,帶屋頂露臺
占地:100平方米
200平方農村三層別墅房屋設計圖及效果圖,大戶型精選
占地:200平方米
16米乘11米接地氣農村二層自建房圖,帶配房設計
占地:149.8平方米
經典三層農村房屋設計圖紙,占地100平米左右,外觀典雅精致,內
占地:100平方米
鄉村兄弟二層小戶型雙拼房屋別墅設計圖,造價低,面積小
占地:多種戶型
豪華農村帶露臺三層樓房別墅設計圖紙,占地200平方米左右
占地:200平方米
頂配三拼三層別墅設計,獨立入戶+共享庭院,兄弟三家共享奢華
占地:367.44平方米
四開間兩層別墅設計圖,農村自建住著舒適的好方案!
占地:187.04平方米
160平米三層別墅設計圖,功能齊全,外觀漂亮,適合和父母同住
占地:160平方米
10米×12米30萬以內農村建房三層豪華歐式別墅圖,處處顯品味
占地:120平方米
簡簡單單一層農村自建別墅方案,布局緊湊又不擁擠
占地:133.55平方米
新農村一層平屋頂簡單自建房別墅設計圖紙,全套設計
占地:130平方米
新古典中式風格別墅設計圖,全套施工圖+效果圖
占地:188平方米
二層平頂別墅設計圖,漂亮經濟實用二層農村小別墅最新房屋設計
占地:多種戶型
三層小別墅40萬造價,大氣農村三層新中式自建房設計圖紙
占地:171.656平方米
預算20萬左右三層別墅設計圖紙,新農村自建房推薦
占地:118平方米
歐式風格三層別墅建筑設計圖,復式樓中樓結構
占地:138平方米
80平農村房屋設計圖,小戶型自建房三層別墅推薦
占地:80平方米
18米寬一層中式小院設計圖,三合院戶型布局寬敞大氣
占地:232.75平方米
推薦:10套新農村自建房設計圖,2026年最新設計
閱讀次數:4825737次
100套鄉村別墅圖片大全,2026年最新設計
閱讀次數:2492203次
6款農村蓋一層平房的設計圖,10萬元就能建起來
閱讀次數:1852637次
這11個一層農村自建房別墅火爆了朋友圈!我最喜歡戶型十!你呢
閱讀次數:750268次
農村6萬元建一層小別墅圖,你敢相信嗎
閱讀次數:567686次
農村5萬塊就能自建房,6套普通房子設計圖分享,你沒看錯!
閱讀次數:419410次
8套農村漂亮三間平房圖片,非常適合在農村修建!
閱讀次數:411197次
農村自建房化糞池怎么做?附方案及施工過程
閱讀次數:391783次
農村一層三間平房設計圖,告別土氣養老房,讓人忍不住點贊
閱讀次數:350581次
新農村二層樓房圖片造價12萬,挑一套回家建房吧!
閱讀次數:349126次
