
|
如果你的家里也有兩個兄弟,不妨可以試試一起建個雙拼別墅吧,既可以戶型照顧還能省不少錢呢。今天推薦的這三款農村兄弟雙拼二層樓外觀圖,非常適合倆兄弟建造。時尚美觀不說,內部功能很齊全,而且造價不高。兄弟兩個住一塊平時有什么事情都可以戶型照顧,而且父母住著也方便,何樂而不為呢?
戶型一:農村簡單雙拼二層樓房設計圖,總占地面積190平方米
![]() ![]() 圖紙介紹:這款雙拼二層戶型總面積190平方米,造價30來萬,合理的利用了每一個空間,房屋的造型也是很美觀,讓人看了就喜歡。 占地面積:14m*12m,190平方米左右,單戶95平方米左右;(含門庭) 建筑層高:二層(含悶頂層); 建筑高度:9.3米(含屋頂); 設計功能: 一層房屋戶型:客廳、廚房、餐廳、衛生間; 二層房屋戶型:主臥(帶書房、;衣帽間)、次臥×2、衛生間; ![]() ![]() 戶型二:農村雙拼二層別墅設計圖,小戶型設計
![]() ![]() 圖紙介紹:這款農村簡單雙拼小戶型,總面積112平方米,造價20萬左右。外觀簡約,但是又不失氣度,內部設計合理,三室一廳也足夠一家人居住,適合農村建造的一款別墅。 占地面積:12.3m*9.04m,112.42平方米左右,單戶面積56平方米左右; 建筑層高:二層半(帶閣樓); 建筑高度:9.9米(含屋頂); 設計功能: 一層:客廳、廚房、餐廳、臥室、衛生間; 二層:臥室×2、公衛、書房、陽臺; ![]() ![]() 戶型三:農村小戶型雙拼別墅設計圖,簡約造價低
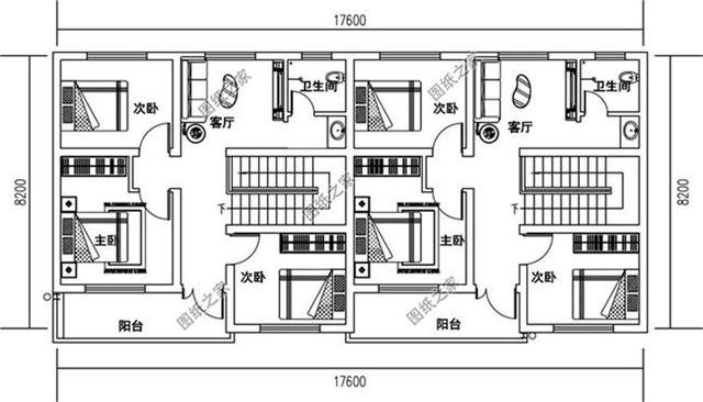
![]() ![]() 圖紙介紹:這款二層簡約雙拼別墅造價低,雖然占地面積不大,但是功能很齊全,在農村建造非常時尚好看。一層客廳、廚房、餐廳、衛生間、臥室都有,二層每家也有3間房,在農村足夠使用了。 占地面積:17.6m*8.2m,138平方米左右,單戶69平方米左右; 建筑層高:二層 建筑高度:8.37米 設計功能: 一層房屋戶型:客廳、廚房、餐廳、衛生間、臥室; 二層房屋戶型:客廳、主臥、次臥×2、衛生間、陽臺; ![]() ![]() 如果你也有兄弟,那就一起看看建一棟雙拼別墅吧。
圖紙之家-專注農村別墅/自建房設計18年,集合國內200余位經驗豐富的設計師,被評為口碑最好的農村建筑設計公司! |

二層精美偏法式風格別墅設計圖,不但顏值高,品質還高
占地:154.17平方米
最耐看的二層別墅設計圖,15米寬12米深,方正大氣經濟美觀!
占地:180平方米
小型雙拼一層平房設計圖,外觀古樸
占地:100平方米
五間兩層農村自建房設計圖,大門居中真氣派,空間寬敞生活質量
占地:219.94平方米
50萬以內的歐式三層房屋別墅施工設計圖紙及效果圖
占地:169平方米
占地200平農村二層自建房設計方案戶型,陽面臥室多
占地:208平方米
一層雙拼別墅獨立入戶+共用墻,兄弟合建,施工隊直呼太省料
占地:269.43平方米
農村二層樓房設計圖紙,含全套設計方案(施工圖+效果圖)
占地:98平方米
農村新戶型房子設計圖二層,占地120平米,布局實用
占地:120.29平方米
偏中式徽派的二層房屋農村別墅設計圖,馬頭墻小青瓦
占地:123.36平方米
農村三層雙拼別墅戶型圖及全套施工圖紙,帶書房,帶衣帽間
占地:260平方米
150平米左右歐式三層鄉村別墅設計圖,客廳中空
占地:150平方米
實用農村10萬一層小別墅戶型圖及圖紙,全套施工圖
占地:多種面積
最漂亮五間一層自建別墅設計圖,布局實用顏值高!
占地:多戶型可選
歐式農村三層小別墅設計圖,占地120平米,客廳中空,空間利用率
占地:120平方米
一層帶閣樓農村別墅設計圖,多得一層可變空間,太值了!
占地:165.89平方米
2026最新兄弟簡歐雙拼別墅設計圖紙,單戶130平米左右
占地:260平方米
經濟實用型二層農村小別墅設計圖,造價25萬內,外觀看起來時尚
占地:120平方米
農村二層復式小別墅設計,進深12米,農村建房最受歡迎的款
占地:149.096 平方
90平-100平小戶型一層三間平房農村別墅設計圖方案戶型
占地:多戶型可選
推薦:10套新農村自建房設計圖,2026年最新設計
閱讀次數:4825737次
100套鄉村別墅圖片大全,2026年最新設計
閱讀次數:2492203次
6款農村蓋一層平房的設計圖,10萬元就能建起來
閱讀次數:1852637次
這11個一層農村自建房別墅火爆了朋友圈!我最喜歡戶型十!你呢
閱讀次數:750268次
農村6萬元建一層小別墅圖,你敢相信嗎
閱讀次數:567686次
農村5萬塊就能自建房,6套普通房子設計圖分享,你沒看錯!
閱讀次數:419410次
8套農村漂亮三間平房圖片,非常適合在農村修建!
閱讀次數:411197次
農村自建房化糞池怎么做?附方案及施工過程
閱讀次數:391783次
農村一層三間平房設計圖,告別土氣養老房,讓人忍不住點贊
閱讀次數:350581次
新農村二層樓房圖片造價12萬,挑一套回家建房吧!
閱讀次數:349126次
