
|
其實在 城里上班的很多人早就已經在城里買了房子,所以老家也就不想
方案一:農村一層別墅設計圖,占地200平米左右
圖紙介紹:這款一層別墅占地200平米左右,造價20萬左右,三室兩廳帶書房。建造起來省錢又美觀,簡單又好看。 占地面積:18.0m*12.0m,200平方米左右; 建筑層高:一層; 建筑高度:6.14米(含屋頂); 設計功能:玄關、客廳、餐廳、廚房、、主臥(帶衛生間,書房)、臥室×2、衛生間; ![]() ![]() ![]() ![]() 方案二:農村占地98平米一層平房設計圖,歐式風格
圖紙介紹:本戶型占地98平米左右,歐式風格簡約氣派,外觀結構非常經典耐看,老虎窗的設計,讓整個建筑非常時尚。室內2間臥室套衛,一廚一餐一客廳的格局,基本滿足農村生活居住需求。 占地面積:14m*8m,98平方米左右; 建筑層高:一層; 建筑高度:6.1米(含屋頂); 設計功能: 一層戶型:客廳、廚房、餐廳、臥室(帶衛生間)x2; ![]() ![]() ![]() ![]() 方案三:農村一層仿古自建平房設計圖,占地170平方米,經典實用
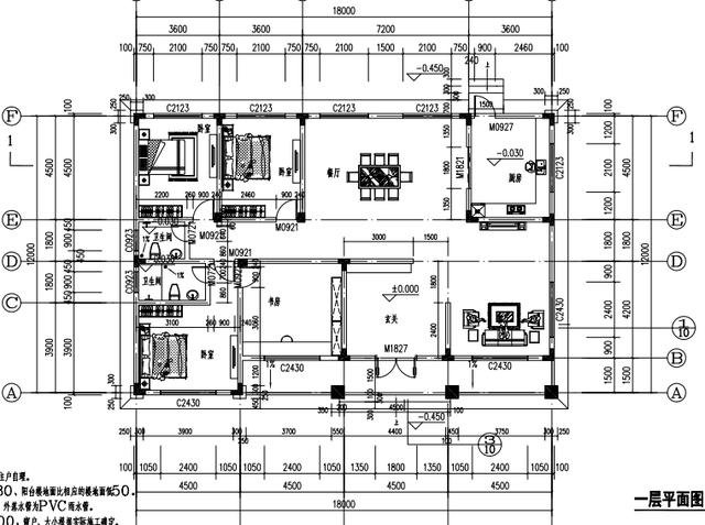
圖紙介紹:這款別墅占地170平米左右,經典實用,比別墅都美,造價經濟,施工簡單,適合農村的好戶型。 占地面積:15.3m*10.5m,167平方米左右; 建筑層高:一層; 建筑高度:6.59米(含屋頂); 設計功能:客廳、餐廳、廚房、主臥(帶衛生間)、臥室×2、衛生間、儲藏間、洗衣房; ![]() ![]() ![]() ![]() 以上就是小編分享的4間一層平房設計圖,有你喜歡的嗎?
圖紙之家-專注農村別墅/自建房設計18年,集合國內200余位經驗豐富的設計師,被評為口碑最好的農村建筑設計公司! |

鄉下120平米二層樓房設計圖,23萬就可以建漂亮別墅
占地:120平方米
新款現代一層小別墅設計圖,農村自建平房推薦戶型
占地:多戶型可選
140平方米新農村二層自建平屋頂房屋設計圖紙帶外觀效果圖
占地:140平方米左右
超現代風格平頂別墅設計圖,外觀時尚,80、90很喜歡
占地:112.18平方米
開間9到10米簡約別墅設計圖紙帶效果圖,全套別墅設計方案
占地:122平方米
三層現代簡約農村雙拼小別墅圖,好看精致,開間17米
占地:187平方米
最接農村地氣的二層農村小別墅,造價30萬左右,經濟實用
占地:170平方米
中式古風別墅設計圖,一層三合院設計,經濟舒適,時尚與傳統的
占地:275.7平方米
獨棟兩層四開間房子施工設計圖紙及效果圖片,大氣時尚
占地:170平方米
歐式三層小洋樓設計圖,外觀氣派,典雅、高貴
占地:145平方米
12米乘9米占地百平一層平房戶型設計圖,布局寬敞大氣又舒適
占地:108平方米
歐式三層雙拼別墅設計圖,精致大氣布局實用,兄弟建房上上之選
占地:234平方米
新農村四層獨棟復式別墅設計圖,設計豪華時尚
占地:140平方米
青瓦仿古中式大型三層別墅設計圖,韻味十足復古大氣
占地:300平方米
35萬內三層自建別墅設計圖,外觀美觀,戶型舒適
占地:135平方米
七字形農村自建房二層設計圖,“L”型別墅設計,簡約時尚!
占地:209平米左右
簡約偏現代三層別墅設計圖紙及效果圖,鄉村蓋房推薦方案
占地:130平方米左右
50萬農村自建三間三層別墅設計圖,占地130平米左右
占地:135平方米
140平方米新農村復式自建房子,三層別墅建筑圖紙及效果圖
占地:138平方米
100平米兩間三層樓房設計圖,農村蓋房舒服實用最重要
占地:100平方米
推薦:10套新農村自建房設計圖,2026年最新設計
閱讀次數:4825737次
100套鄉村別墅圖片大全,2026年最新設計
閱讀次數:2492203次
6款農村蓋一層平房的設計圖,10萬元就能建起來
閱讀次數:1852637次
這11個一層農村自建房別墅火爆了朋友圈!我最喜歡戶型十!你呢
閱讀次數:750268次
農村6萬元建一層小別墅圖,你敢相信嗎
閱讀次數:567686次
農村5萬塊就能自建房,6套普通房子設計圖分享,你沒看錯!
閱讀次數:419410次
8套農村漂亮三間平房圖片,非常適合在農村修建!
閱讀次數:411197次
農村自建房化糞池怎么做?附方案及施工過程
閱讀次數:391783次
農村一層三間平房設計圖,告別土氣養老房,讓人忍不住點贊
閱讀次數:350581次
新農村二層樓房圖片造價12萬,挑一套回家建房吧!
閱讀次數:349126次
