
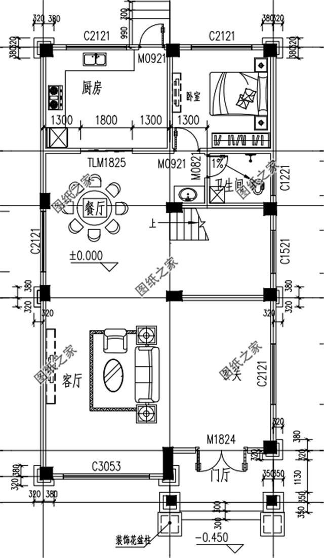
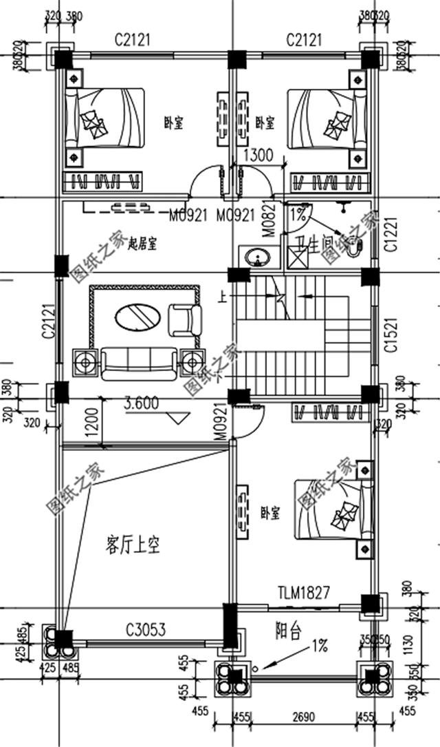
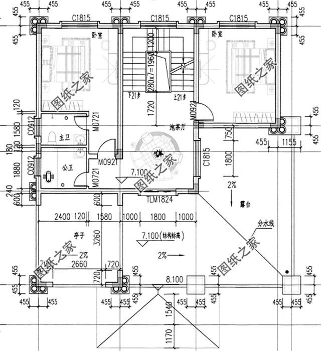
歐式三層別墅一:歐式農村三層小別墅設計圖歐式農村三層小別墅設計圖,占地120平米,客廳中空,空間利用率高。 ![]() 占地面積:8.0m*15.8m,一層占地120平方米左右; 建筑層高:三層; 建筑高度:13.6米(含屋頂); 設計功能: ![]() 一 層:客廳、廚房、餐廳、臥室、衛生間; ![]() 二 層:客廳上空、起居室、臥室x3、衛生間、陽臺; ![]() 三 層:起居室、臥室x2、衛生間、大露臺、涼亭; 歐式三層別墅二:三層歐式豪華別墅設計方案本戶型為三層歐式豪華別墅設計方案,外觀看起來恢弘大氣,超大的落地窗,美觀的羅馬柱,帶車庫的方案符合現代人的需求,寬大的中空客廳,旋轉樓梯,三層大露臺+室內露臺設計,滿足不同的需要。 ![]() 占地面積:13.44m*15.72m(尺寸含門廊),一層168建筑平方米,總計424建筑平方米; 建筑層高:三層; 建筑高度:12.98米(含屋頂); 設計功能: ![]() 一層戶型設計:玄關、客廳、餐廳、廚房、臥室、衛生間、車庫; ![]() 二層戶型設計:客廳上空、起居室、主臥套間(帶書房、衛生間)、臥室x2、衛生間、陽臺; ![]() 三層戶型設計:茶廳、主臥(帶衛生間)、臥室、衛生間、大露臺、涼亭; 歐式三層別墅三:150平歐式別墅房屋設計圖本戶型為150平歐式別墅房屋設計圖,外觀精美、氣派,二層、三層都有客廳、娛樂廳,方便客人來家玩,也讓整體布局看起來更豁亮。 ![]() 占地面積:14.0m*12.3m(進深含門廳),一層建筑面積150平方米左右; 建筑層高:三層; 建筑高度:14.1米(含屋頂); 設計功能: ![]() 一 層:門廳、客廳、餐廳、廚房、主臥(帶衛生間)、次臥、衛生間; ![]() 二 層:客廳、休閑廳、書房、主臥(帶衛生間)、臥室x2(帶衣帽間)、衛生間、陽臺; ![]() 三 層:客廳、休閑廳、臥室x2、衛生間、露臺; 以上就是農村歐式風格三層小洋樓外觀圖,外觀大氣,有全套施工圖哦。
圖紙之家-專注農村別墅/自建房設計18年,集合國內200余位經驗豐富的設計師,被評為口碑最好的農村建筑設計公司! |

帶地下室三層別墅設計圖紙(含外觀效果圖),別墅設計方案
占地:134平方米
140平三層自建房別墅設計圖,外觀圖大氣、美觀
占地:140平方米
農村10萬元一層小別墅設計圖,農村一層自建房屋設計圖
占地:多種戶型
200平農村二層別墅設計圖,外觀現代簡約
占地:204平方米
超好看的現代簡約別墅設計圖,占地100平米,城里一套房都不換
占地:102.21平方米
農村一層養老別墅設計圖,兩個戶型方案可選
占地:多種戶型
大戶型帶車庫的兩層農村自建房設計圖,施工簡單,戶型方正
占地:236平方米
一層半復式帶閣樓別墅設計圖,含外觀圖片
占地:150平方米
三層兩開間小面寬別墅設計圖紙帶外觀效果圖,95平方米
占地:94.61平方米
全套歐式二層別墅設計cad圖紙,含效果圖,帶車庫
占地:211平方米
新農村三層樓房住宅設計方案,戶型圖、效果圖、全套施工圖
占地:180平方米
140-150平方米新農村別墅設計圖紙,帶外觀效果圖,復式戶型
占地:146平方米
新中式三層樓房設計圖紙,帶地下室,地下車庫,帶電梯
占地:230平方米
田園風格別墅設計圖及外觀圖片,樓中樓結構
占地:140平方米
新徽派農村三層小別墅設計圖,白墻黛瓦中式風,12米乘11米
占地:115.46平方米
農村四間三層豪華別墅設計方案圖,造型輕奢雅致
占地:200平方米
鄉下建房一層戶型圖,一層住宅設計圖紙,誰說一層平房不能叫別
占地:200平方米
鄉村簡約經濟型二層別墅設計圖紙(效果圖+全套施工方案)
占地:145平方米
簡單實用農村自建小樓二層別墅設計圖,戶型造型簡約好看
占地:146平方米
推薦:10套新農村自建房設計圖,2026年最新設計
閱讀次數:4825737次
100套鄉村別墅圖片大全,2026年最新設計
閱讀次數:2492203次
6款農村蓋一層平房的設計圖,10萬元就能建起來
閱讀次數:1852637次
這11個一層農村自建房別墅火爆了朋友圈!我最喜歡戶型十!你呢
閱讀次數:750268次
農村6萬元建一層小別墅圖,你敢相信嗎
閱讀次數:567686次
農村5萬塊就能自建房,6套普通房子設計圖分享,你沒看錯!
閱讀次數:419410次
8套農村漂亮三間平房圖片,非常適合在農村修建!
閱讀次數:411197次
農村自建房化糞池怎么做?附方案及施工過程
閱讀次數:391783次
農村一層三間平房設計圖,告別土氣養老房,讓人忍不住點贊
閱讀次數:350581次
新農村二層樓房圖片造價12萬,挑一套回家建房吧!
閱讀次數:349126次
