
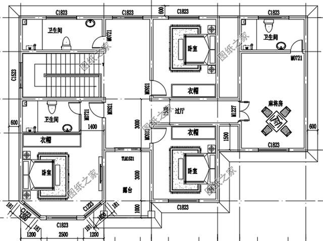
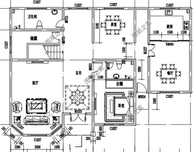
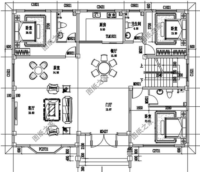
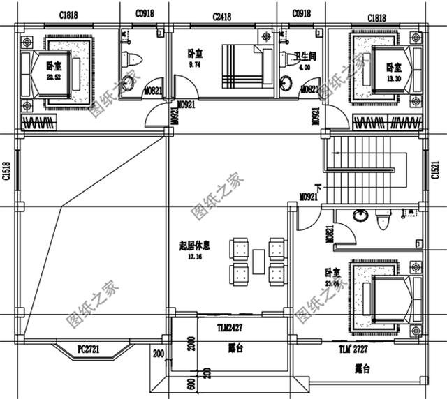
二層別墅一:新農村二層客廳挑高樓房設計圖本方案為新農村三層客廳挑高樓房設計圖,外觀歐式風格,精致美觀,戶型布局合理,空間利用率高。 ![]() 占地面積:11.48m*15.48m,178平方米左右; 建筑層高:二層; 建筑高度:8.4米(含屋頂); 設計功能: 一層戶型:門廳、客廳、餐廳、廚房、主臥(帶衛生間)、次臥、衛生間、儲藏間; 一層半:樓梯上到一層半,可以進入露臺; ![]() ![]() 二層戶型:客廳上空、主臥(帶衛生間)、臥室x2、衛生間、書房、衣帽間; 二層別墅二:農村二層自建房屋設計圖農村二層自建房屋設計圖,占地180平米,本戶型采用廚房餐廳和 ![]() 占地面積:16.8m*10.8m,占地180平方米左右; 建筑層高:二層; 建筑高度:10.4米(含屋頂); 設計功能: 一層戶型:客廳、餐廳、廚房、衛生間、臥室(衛生間)、茶室、儲藏間; 二層戶型:主臥(帶衛生間)、臥室×2、衛生間、棋牌室(帶衛生間)、露臺; ![]() ![]() 二層別墅三:多臥室復式二層別墅房屋設計圖本方案為多臥室復式二層別墅房屋設計圖,含外觀效果圖,臥室比較多,功能齊全,戶型布局合理,外觀精致。新穎,本公司最新獨家設計。 ![]() 占地面積:15.10m*11.70m,175平方米左右; 建筑層高:二層; 建筑高度:9.90米(含屋頂); 設計功能: 一層設計:門廳、客廳、餐廳、廚房、衛生間、臥室x3; 二層設計:客廳上空、休息區、臥室x3、衛生間、露臺x2; ![]() ![]() 以上就是農村二層別墅設計圖,設計師首推,要是你,你選擇哪款呢?
圖紙之家-專注農村別墅/自建房設計18年,集合國內200余位經驗豐富的設計師,被評為口碑最好的農村建筑設計公司! |

L字型自建房屋設計圖,一層別墅類型,外觀效果圖漂亮
占地:188.62平方米
一層鄉村別墅設計戶型圖,占地100平左右,外觀很時尚
占地:100平方米左右
110平方米新農村三層房屋設計圖紙,含效果圖,帶車庫
占地:113平方米
鄉村仿古一層別墅圖片及設計圖,經典實用,占地170平
占地:170平方米
二層復式農村別墅設計圖,進深12米,戶型堪稱完美
占地:193.2平方米
全新農村簡歐風格三層房屋別墅效果圖,110和210兩個戶型,帶電梯
占地:多種戶型
面寬8米也能建別墅,小面寬農村三層別墅設計圖
占地:93.83平方米
平頂三層別墅設計方案,簡潔舒適大氣通透,12乘9米,打造理想住
占地:98.21平方米
新中式120平米農村20萬元二層小樓圖,外觀柔和而雅致
占地:120平方米
帶地下室獨棟三層高端別墅房圖紙設計圖,復式客廳旋轉樓梯
占地:146.145平方米
高端三層新中式農村別墅設計圖,仿合院布局,外觀霸氣
占地:133.64平方米
新款三層豪華大氣歐式別墅設計圖,3種戶型設計方案
占地:125平方米左右
農村一層別墅設計圖,3室2廳帶書房,占地面積200平米左右
占地:200平方米
造價30萬的三層簡歐新農村別墅設計施工圖紙及效果圖
占地:133平方米
135平方米新農村三層別墅設計圖紙,外觀效果圖很漂亮
占地:134平方米
農村一層中式三合院別墅設計圖紙,外觀漂亮極了
占地:195平方米
農村一層帶小院房屋設計圖,帶院子一層自建房別墅戶型圖
占地:161.16平方米
帶院子的一層農村別墅設計圖,造價不高,養老房首選!
占地:144.819平方米
占地130平方米二層鄉村別墅自建房圖紙設計圖,效果圖好看
占地:131.658平方米
120平方房子設計圖,農村120平建房設計圖推薦
占地:122平方米
推薦:10套新農村自建房設計圖,2026年最新設計
閱讀次數:4825737次
100套鄉村別墅圖片大全,2026年最新設計
閱讀次數:2492203次
6款農村蓋一層平房的設計圖,10萬元就能建起來
閱讀次數:1852637次
這11個一層農村自建房別墅火爆了朋友圈!我最喜歡戶型十!你呢
閱讀次數:750268次
農村6萬元建一層小別墅圖,你敢相信嗎
閱讀次數:567686次
農村5萬塊就能自建房,6套普通房子設計圖分享,你沒看錯!
閱讀次數:419410次
8套農村漂亮三間平房圖片,非常適合在農村修建!
閱讀次數:411197次
農村自建房化糞池怎么做?附方案及施工過程
閱讀次數:391783次
農村一層三間平房設計圖,告別土氣養老房,讓人忍不住點贊
閱讀次數:350581次
新農村二層樓房圖片造價12萬,挑一套回家建房吧!
閱讀次數:349126次
