
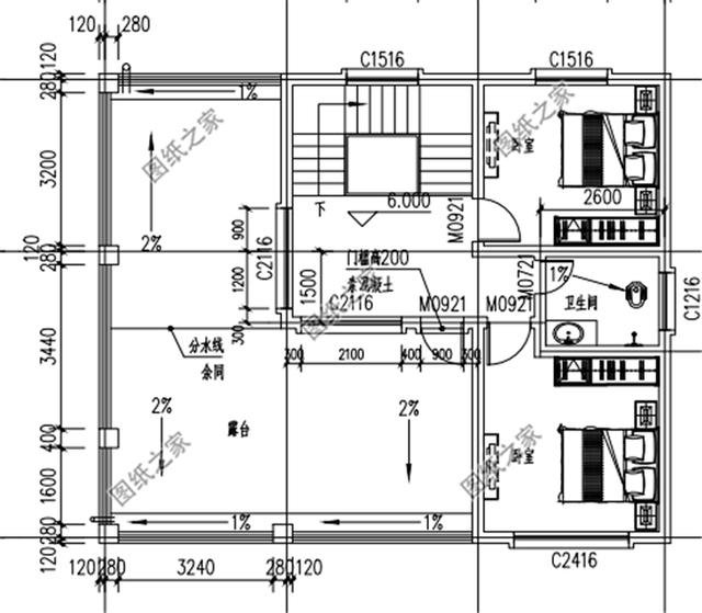
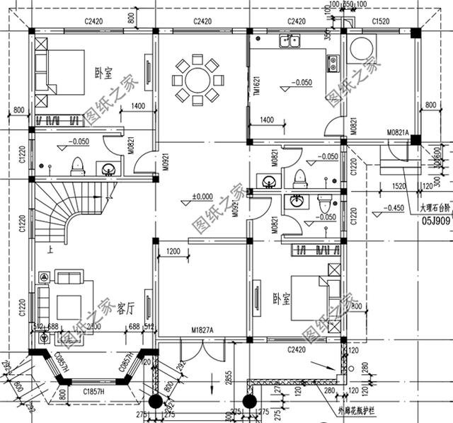
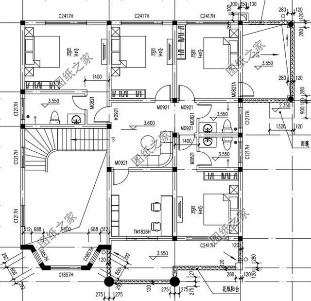
別墅圖一:農村一層帶小院房屋設計圖農村一層帶小院房屋設計圖,簡單大方,背面設立了4扇窗戶,保證室內采光的同時,還讓得整個建筑變得通透性十分的強,站在室內不管任何角度,都是明朗的。一層四室,足夠一家人居住使用。 ![]() 占地面積:13.01m*12m,161.16平方米左右; 建筑層高:一層; 建筑高度:6.2米(含屋頂); 設計功能: 一層戶型:客廳、廚房、餐廳、臥室x4、雜物間、衛生間x2、洗衣間; ![]() 別墅圖二:農村二層別墅設計圖紙農村二層別墅設計圖紙,客廳中空,帶鍋爐房,非常適合農村自建。 ![]() 占地面積:15.6m*15.0m,192平方米左右; 建筑層高:二層; 建筑高度:10.41米(含屋頂); 設計功能: 一層戶型:客廳、餐廳、廚房、衛生間、主臥(帶衛生間)、臥室、鍋爐房; 二層戶型:客廳上空、休閑廳、臥室(帶衛生間)×2、臥室x2、公衛、陽臺、露臺; ![]() ![]() 別墅圖三:帶車庫現代三層樓房設計圖本戶型為帶車庫現代三層樓房設計圖,外觀時尚、現代,整體給人的感覺很時尚,符合,戶型布局非常合理,該有的功能都有,如果不需要一層的車庫,可以改成臥室。 ![]() 占地面積:13.0m*12.6m,一層占地160平方米左右; 建筑層高:三層; 建筑高度:13.08米(含屋頂); 設計功能: 一 層:客廳、廚房、餐廳、臥室、棋牌室、衛生間、車庫(不需要車庫可以做成臥室); 二 層:客廳、臥室(帶書房)、臥室x3、衛生間、陽臺; 三 層:健身房、臥室x3、衛生間、大露臺、陽臺; ![]() ![]() ![]() 以上就是農村建房設計效果圖,內部的布局非常緊湊實用,農村建房的朋友可以參考。
圖紙之家-專注農村別墅/自建房設計18年,集合國內200余位經驗豐富的設計師,被評為口碑最好的農村建筑設計公司! |

10X13米新款歐式三層別墅樓房設計圖,外觀清新明亮
占地:140平方米
歐式大氣新農村三層別墅豪宅設計圖,外觀高端,對稱設計
占地:225平方米左右
農村三層雙拼房屋建筑施工設計圖紙,帶車庫
占地:180平方米
面寬13米二層鄉村自建別墅戶型圖,帶堂屋和露臺
占地:135.47平方米
農村一層平房別墅設計圖紙,130平米左右,主體十幾萬
占地:130平方米左右
簡約而不簡單的二層新中式鄉墅設計圖,占地150平左右
占地:150.78平方米
小面寬的農村簡單四層2建平屋頂別墅設計圖,農村自建房首選
占地:109.29平方米
70平農村小戶型二層別墅設計圖,小宅基地的福音
占地:70平方米
三層奢華歐式別墅圖片及全套設計圖,帶地下室和車庫
占地:208平方米左右
三層農村自建別墅設計圖紙及效果圖,占地110平米,外觀精致又大
占地:110平方米
145平方米新農村二層別墅設計效果圖及施工圖,12.6米x11.4米
占地:147平方米
30萬農村小別墅設計圖片,30萬別墅設計戶型推薦
占地:130平方米
占地170平米2026新款三層別墅設計圖片及設計方案
占地:170平方米
農村120方三層自建房子圖,好看又不貴的三層農村別墅
占地:120平方米
帶KTV的四開間的二層別墅設計圖,造型美觀經濟實用
占地:240.22平方米
120平現代實用三層別墅房屋設計圖,含外觀效果圖
占地:120平方米
20萬左右歐式二層小別墅設計圖,100平米和130兩個戶型
占地:多種戶型
2026年經典新中式三層別墅設計圖紙,新款自建房戶型圖
占地:158.19平方米
經典小戶型二層新農村房屋設計圖紙,客廳中空,造價20萬
占地:94平方米
農村二層小別墅圖片,二層別墅效果圖及設計圖
占地:153平方米
推薦:10套新農村自建房設計圖,2026年最新設計
閱讀次數:4825737次
100套鄉村別墅圖片大全,2026年最新設計
閱讀次數:2492203次
6款農村蓋一層平房的設計圖,10萬元就能建起來
閱讀次數:1852637次
這11個一層農村自建房別墅火爆了朋友圈!我最喜歡戶型十!你呢
閱讀次數:750268次
農村6萬元建一層小別墅圖,你敢相信嗎
閱讀次數:567686次
農村5萬塊就能自建房,6套普通房子設計圖分享,你沒看錯!
閱讀次數:419410次
8套農村漂亮三間平房圖片,非常適合在農村修建!
閱讀次數:411197次
農村自建房化糞池怎么做?附方案及施工過程
閱讀次數:391783次
農村一層三間平房設計圖,告別土氣養老房,讓人忍不住點贊
閱讀次數:350581次
新農村二層樓房圖片造價12萬,挑一套回家建房吧!
閱讀次數:349126次
