
|
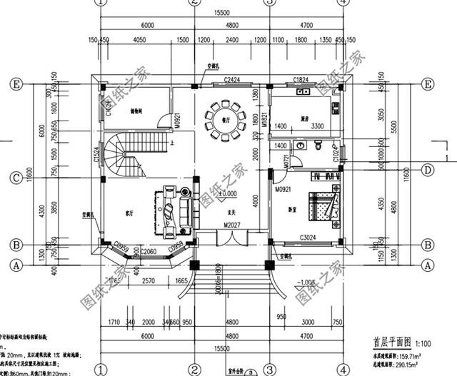
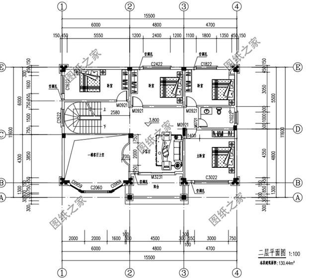
現在這個年頭誰家還不蓋棟別墅呢?有錢人越來越多了,都想著把老家的房子蓋好,這樣回老家臉上也有光。今天這三款二層別墅自建房設計圖,帶落地窗設計,戶型好看大氣,大落地窗時尚感強,同時能夠大 款式一:農村二層樓房設計圖,超大落地窗,外觀好看圖紙介紹:這款二層樓房占地140平米左右,造價20來萬,外型美造價低。外觀配色溫柔大方,藍色坡屋頂極具美感,時尚又大氣,住著很舒適的一個戶型。 占地面積:15.4m*10.2m,140平方米左右; 建筑層高:二層; 建筑高度:9.0米(含屋頂); 設計功能: 一層戶型:客廳、餐廳、廚房、衛(wèi)生間、臥室×2; 二層戶型:客廳上空、客廳、臥室x3、衛(wèi)生間、陽臺、大露臺; ![]() ![]() ![]() ![]() 款式二:鄉(xiāng)村兩層樓房設計圖,外觀漂亮,客廳中空設計圖紙介紹:這款二層別墅占地160平米左右,外觀精致,室內布局很大氣,客廳中空。客廳挑空采光很好,還有幾個臥室設計,衛(wèi)生間的配備也很充分,觀景陽臺也不缺少。 占地面積:15.5m*11.6m,160平方米左右; 建筑層高:三層 建筑高度:11.0米(含屋頂); 設計功能: 一層戶型:客廳、餐廳、廚房、衛(wèi)生間、主臥、衛(wèi)生間; 二層戶型:客廳上空、小客廳、臥室x4、衛(wèi)生間、陽臺; ![]() ![]() ![]() ![]() 款式三:農村二層樓房設計圖,面寬13米,外觀大氣圖紙介紹:這款二層別墅面寬13米,戶型功能實用,帶老虎窗設計,外觀沉穩(wěn)又大氣,大面積的采光窗,增強了室內的采光。房頂的老虎窗增加了房子整體的歐式感,又加強了室內采光。 占地面積:13.02m*12.62m,168.96平方米左右; 建筑層高:二層; 建筑高度:11.5米(含屋頂); 設計功能: 一層戶型:客廳、廚房、餐廳、臥室、臥室(帶衛(wèi)生間)、衛(wèi)生間; 二層戶型:客廳上空、臥室x2、臥室(帶衛(wèi)生間)、活動室、衛(wèi)生間、陽臺; ![]() ![]() ![]() 這三套二層別墅設計圖不知道大家看上哪一款了呢?喜歡的話千萬不要錯過。
圖紙之家-專注農村別墅/自建房設計18年,集合國內200余位經驗豐富的設計師,被評為口碑最好的農村建筑設計公司! |

農村三間兩層樓房設計圖,帶外觀效果圖
占地:140平方米
四層(三層半)復式別墅設計圖片大全,歐式風格
占地:174平方米
全網都在抄的二層別墅!爆款12米面寬設計戶型太實用
占地:139.51平方米
160平方米新農村自建二層樓房設計圖紙及效果圖,15x11米
占地:160平方米
農村四間二層半雙拼樓設計圖,住三帶人都沒有問題!
占地:270平方米
120平米三層小別墅設計方案和效果圖,端莊大氣很經典
占地:120平方米
210平米新農村自建二層施工圖紙,預留電梯位,美觀大氣舒適實用
占地:208.5平方米
豪華三層歐式風格別墅圖紙設計,挑空客廳大面寬大戶型
占地:225.72平方米
面寬11米現代風二層小別墅,平屋頂設計,緊跟潮流時尚前衛(wèi)
占地:94.43平方米
一層農村房子設計圖,含外觀效果圖,自建推薦戶型
占地:200平方米
鄉(xiāng)村一層房屋設計圖,養(yǎng)老還是一層好,多臥室的設計
占地:195平方米
農村2026新式好看又簡單的二層樓房設計圖,外形美觀,家用足夠
占地:200平方米
10套農村經典二層樓房設計圖紙,多戶型,多尺寸,總有一款適合
占地:多種
新徽派農村三層小別墅設計圖,白墻黛瓦中式風,12米乘11米
占地:115.46平方米
面寬20米四開間二層別墅,火爆全村的戶型,美好生活的起點
占地:245.73平方米
在農村30萬可以建造的三層別墅款式,帶別墅外觀圖片
占地:138平方米
3款三層農村自建別墅設計圖,氣派十足,準備建房的快快查看
占地:多戶型可選
230平米歐式帶地下室三層自建別墅設計施工圖紙及效果圖
占地:230平米
復式三層雙拼別墅設計圖,客廳中空,旋轉樓梯
占地:350平方米
農村小型四合院設計效果圖及施工圖,傳統(tǒng)中式,四面建房
占地:220平方米
推薦:10套新農村自建房設計圖,2026年最新設計
閱讀次數:4825737次
100套鄉(xiāng)村別墅圖片大全,2026年最新設計
閱讀次數:2492203次
6款農村蓋一層平房的設計圖,10萬元就能建起來
閱讀次數:1852637次
這11個一層農村自建房別墅火爆了朋友圈!我最喜歡戶型十!你呢
閱讀次數:750268次
農村6萬元建一層小別墅圖,你敢相信嗎
閱讀次數:567686次
農村5萬塊就能自建房,6套普通房子設計圖分享,你沒看錯!
閱讀次數:419410次
8套農村漂亮三間平房圖片,非常適合在農村修建!
閱讀次數:411197次
農村自建房化糞池怎么做?附方案及施工過程
閱讀次數:391783次
農村一層三間平房設計圖,告別土氣養(yǎng)老房,讓人忍不住點贊
閱讀次數:350581次
新農村二層樓房圖片造價12萬,挑一套回家建房吧!
閱讀次數:349126次
